25021
25021
25021
25021

Ce plan est offert en plusieurs variations. Vous pouvez consulter les variations en choissant un numéro de plan dans le menu ci-dessous. Les plans techniques dans les images ainsi que le tableau des caractéristiques et dimensions se mettront automatiquement à jour.


Jeux de plans - Sets of plans
Prix régulier$945.00
/

Ce site est protégé par hCaptcha, et la Politique de confidentialité et les Conditions de service de hCaptcha s’appliquent.

Description

L’intérieur de cette ravissante maison à étage offre de nombreuses possibilités (série Aménagements multiples).
Le rez-de-chaussée comprend une cuisine, une salle à manger et un salon à aire ouverte, ainsi qu’une salle d’eau avec ou sans espace pour la laveuse et sécheuse, tout dépendant du modèle choisi.
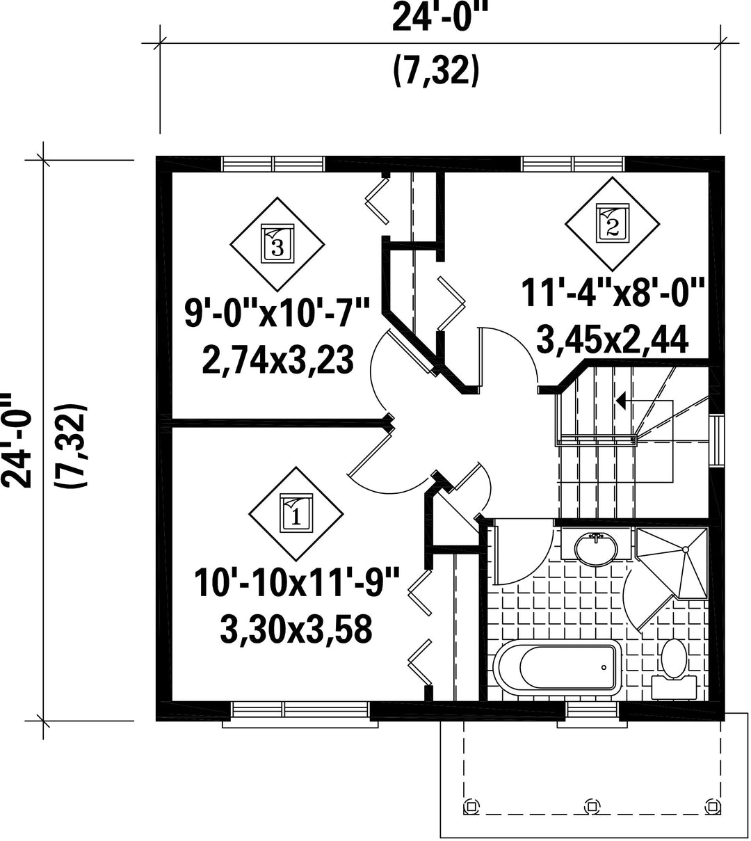
L’étage comprend deux ou trois chambres, selon le modèle qui vous convient le mieux, ainsi qu’une salle de bains. À vous de choisir !

Caractéristiques

Mesures : Impérial

Style d'architecture Urbain Coût de construction 
Montant approximatif équivalent à celui d'un entrepreneur général (région de la Rive-Sud de Montréal) pour une construction clé en main sans terrain ni infrastructures.
236574 $
Façade 24 pi Surface habitable totale 1152 pi²
Profondeur 24 piNombre de salles de bain 1
Hauteur 26 piNombre de chambres 3
Surface rez-de-chaussée 576 pi² Finition extérieure Aluminium + Brique
Surface étage 576 pi² Type de cuisine Coin repas + Forme en U
Garage 0
Mur rez-de-chaussée 8 pi
Mur étage 8 piInclinaison toit avant/arrière 6/12
Inclinaison toit gauche/droite 8/12
Style d'architecture Urbain
Coût de construction 
Montant approximatif équivalent à celui d'un entrepreneur général (région de la Rive-Sud de Montréal) pour une construction clé en main sans terrain ni infrastructures.
236574 $
Façade 24 pi
Surface habitable totale 1152 pi²
Profondeur 24 pi
Nombre de salles de bain 1
Hauteur 26 pi
Nombre de chambres 3
Surface rez-de-chaussée 576 pi²
Finition extérieure Aluminium + Brique
Surface étage 576 pi²
Type de cuisine Coin repas + Forme en U
Garage 0
Mur rez-de-chaussée 8 pi
Mur étage 8 pi
Inclinaison toit avant/arrière 6/12
Inclinaison toit gauche/droite 8/12

Ces plans de maison pourraient également vous intéresser


Vu récemment