Description
L’intérieur de cette ravissante maison à étage offre de nombreuses possibilités (série Aménagements multiples).
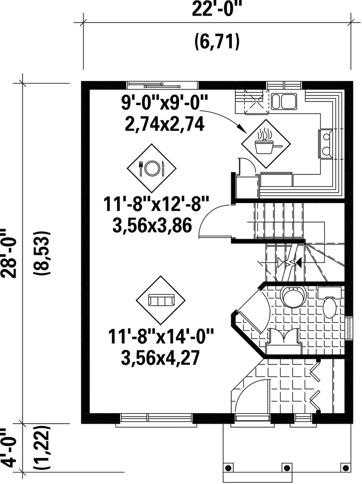
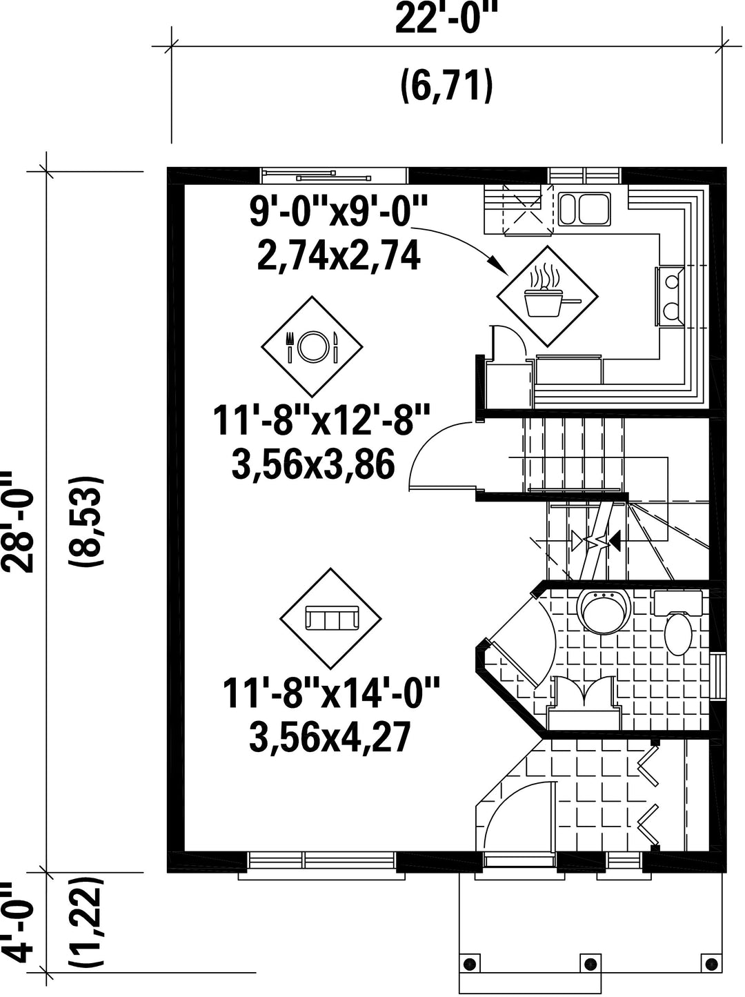
Le rez-de-chaussée comprend une cuisine, une salle à manger et un salon à aire ouverte, ainsi qu’une salle d’eau avec ou sans espace pour la laveuse et sécheuse, tout dépendant du modèle choisi.
L’étage comprend deux ou trois chambres, selon le modèle qui vous convient le mieux, ainsi qu’une salle de bains. À vous de choisir !
Le rez-de-chaussée comprend une cuisine, une salle à manger et un salon à aire ouverte, ainsi qu’une salle d’eau avec ou sans espace pour la laveuse et sécheuse, tout dépendant du modèle choisi.
L’étage comprend deux ou trois chambres, selon le modèle qui vous convient le mieux, ainsi qu’une salle de bains. À vous de choisir !
Caractéristiques
Mesures : Impérial| Style d'architecture | Urbain |
Coût de construction
Montant approximatif équivalent à celui d'un entrepreneur général (région de la Rive-Sud de Montréal) pour une construction clé en main sans terrain ni infrastructures.
|
251086 $ |
|---|---|---|---|
| Façade | 22 pi | Surface habitable totale | 1232 pi² |
| Profondeur | 28 pi | Nombre de salles de bain | 1 |
| Hauteur | 26 pi 10 po | Nombre de chambres | 3 |
| Chambre des maîtres - commentaires | Grande chambre des maîtres avec grand garde-robe | ||
| Surface rez-de-chaussée | 616 pi² | Finition extérieure | Aluminium + Brique |
| Surface étage | 616 pi² | Type de cuisine | Forme en U + Salle à manger |
| Garage | 0 | ||
| Mur rez-de-chaussée | 8 pi | ||
| Mur étage | 8 pi | Inclinaison toit avant/arrière | 6/12 |
| Inclinaison toit gauche/droite | 8/12 |
| Style d'architecture | Urbain |
|---|---|
|
Coût de construction
Montant approximatif équivalent à celui d'un entrepreneur général (région de la Rive-Sud de Montréal) pour une construction clé en main sans terrain ni infrastructures.
|
251086 $ |
| Façade | 22 pi |
| Surface habitable totale | 1232 pi² |
| Profondeur | 28 pi |
| Nombre de salles de bain | 1 |
| Hauteur | 26 pi 10 po |
| Nombre de chambres | 3 |
| Chambre des maîtres - commentaires | Grande chambre des maîtres avec grand garde-robe |
| Surface rez-de-chaussée | 616 pi² |
| Finition extérieure | Aluminium + Brique |
| Surface étage | 616 pi² |
| Type de cuisine | Forme en U + Salle à manger |
| Garage | 0 |
| Mur rez-de-chaussée | 8 pi |
| Mur étage | 8 pi |
| Inclinaison toit avant/arrière | 6/12 |
| Inclinaison toit gauche/droite | 8/12 |