24721
24721
24721
24721

Ce plan est offert en plusieurs variations. Vous pouvez consulter les variations en choissant un numéro de plan dans le menu ci-dessous. Les plans techniques dans les images ainsi que le tableau des caractéristiques et dimensions se mettront automatiquement à jour.


Jeux de plans - Sets of plans
Prix régulier$945.00
/

Ce site est protégé par hCaptcha, et la Politique de confidentialité et les Conditions de service de hCaptcha s’appliquent.

Description

L’intérieur de cette maison à étage à l’allure très contemporaine offre de nombreuses possibilités (série Aménagements multiples).
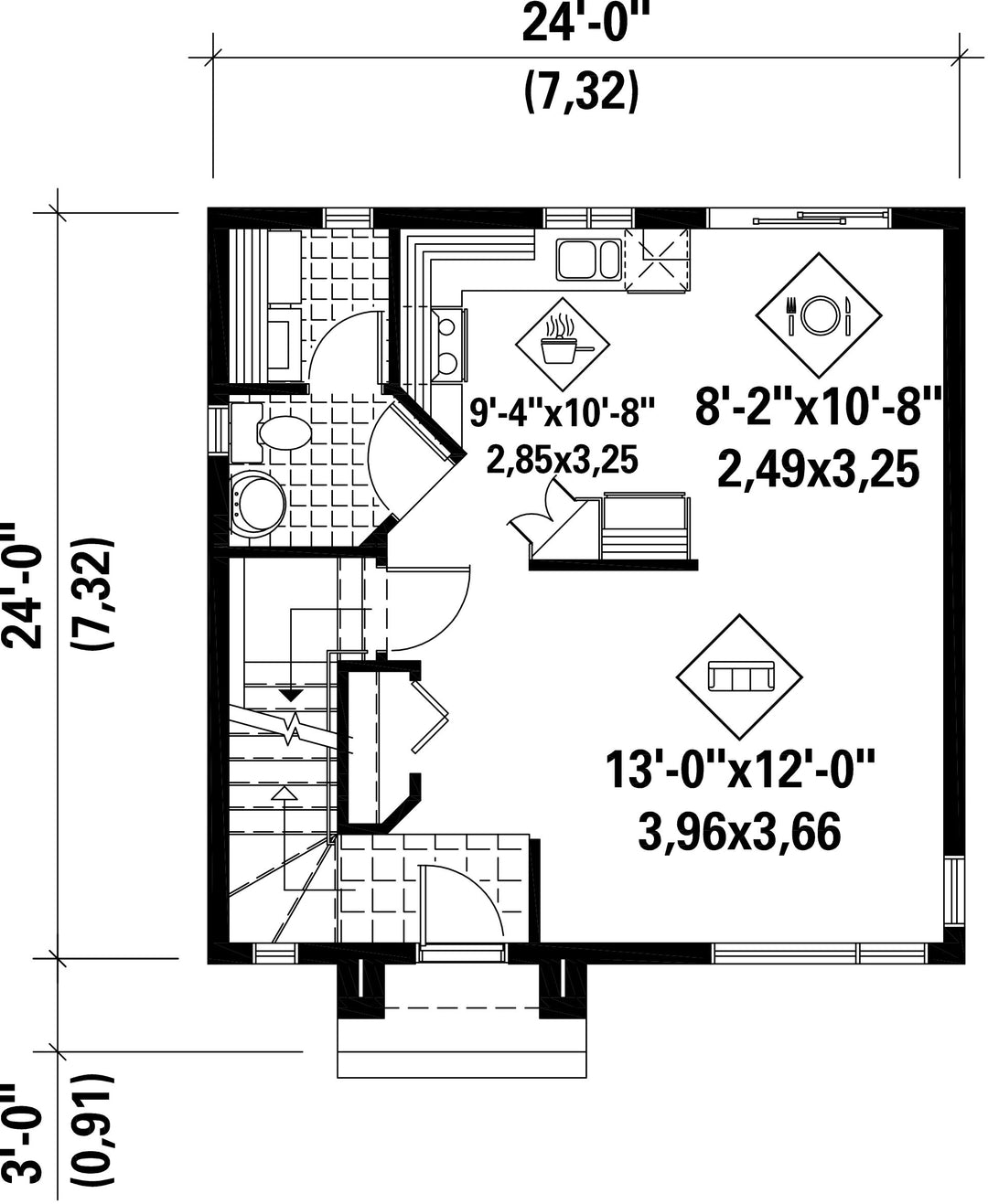
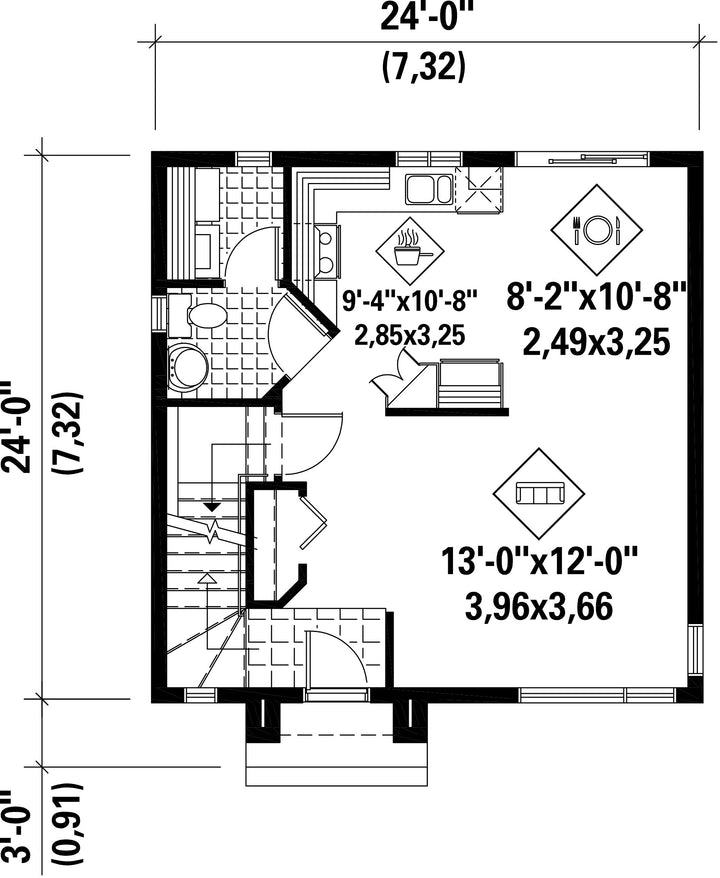
Le rez-de-chaussée, à aire ouverte, comprend une cuisine, une salle à manger, un salon ainsi qu’une salle d’eau avec espace pour la laveuse et sécheuse.
L’étage comprend deux ou trois chambres, selon le modèle qui vous convient le mieux, ainsi qu’une salle de bains. À vous de choisir !

Caractéristiques

Mesures : Impérial

Style d'architecture Urbain Coût de construction 
Montant approximatif équivalent à celui d'un entrepreneur général (région de la Rive-Sud de Montréal) pour une construction clé en main sans terrain ni infrastructures.
230303 $
Façade 24 pi Surface habitable totale 1168 pi²
Profondeur 24 piNombre de salles de bain 1
Hauteur 25 pi 10 poNombre de chambres 2
Chambre des maîtres Penderie + Portes doubles Chambre des maîtres - commentaires Grande chambre des maîtres avec penderie
Surface rez-de-chaussée 576 pi² Finition extérieure Aluminium + Pierre
Surface étage 592 pi² Type de cuisine Forme en L + Salle à manger
Garage 0
Mur rez-de-chaussée 8 pi
Mur étage 8 piInclinaison toit avant/arrière 6/12
Inclinaison toit gauche/droite 8/12
Style d'architecture Urbain
Coût de construction 
Montant approximatif équivalent à celui d'un entrepreneur général (région de la Rive-Sud de Montréal) pour une construction clé en main sans terrain ni infrastructures.
230303 $
Façade 24 pi
Surface habitable totale 1168 pi²
Profondeur 24 pi
Nombre de salles de bain 1
Hauteur 25 pi 10 po
Nombre de chambres 2
Chambre des maîtres Penderie + Portes doubles
Chambre des maîtres - commentaires Grande chambre des maîtres avec penderie
Surface rez-de-chaussée 576 pi²
Finition extérieure Aluminium + Pierre
Surface étage 592 pi²
Type de cuisine Forme en L + Salle à manger
Garage 0
Mur rez-de-chaussée 8 pi
Mur étage 8 pi
Inclinaison toit avant/arrière 6/12
Inclinaison toit gauche/droite 8/12

Ces plans de maison pourraient également vous intéresser


Vu récemment