Description
Cette élégante demeure mesure 44 pieds de largeur sur 30 pieds de profondeur et possède une surface habitable de 2 080 pieds carrés. Elle dispose d'un garage de 336 pieds carrés pouvant loger une voiture.
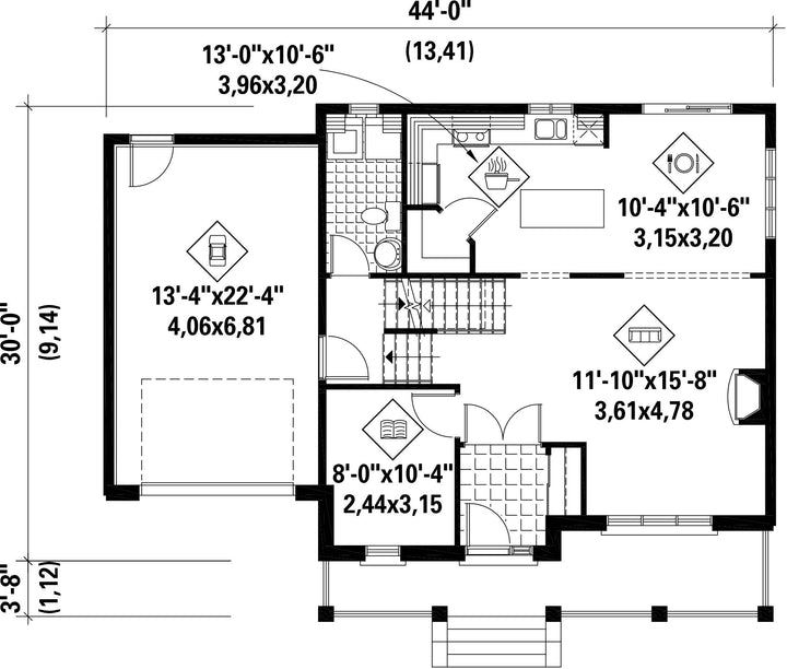
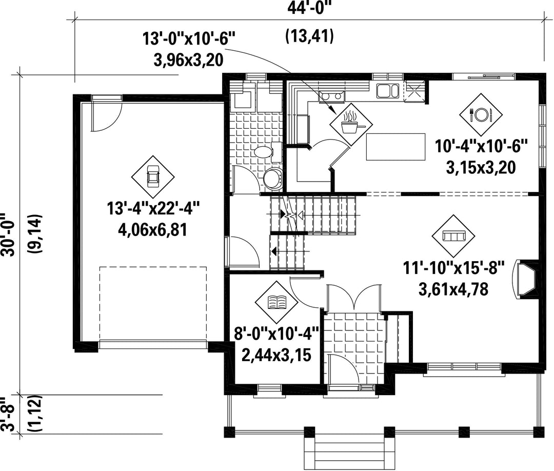
Le rez-de-chaussée de 872 pieds carrés comprend un vestibule fermé, une salle de lecture, un salon avec foyer, une salle à manger, une cuisine avec îlot, et une salle d'eau avec espace pour la laveuse et la sécheuse. Toutes ces pièces ont des plafonds de 9 pieds de hauteur.
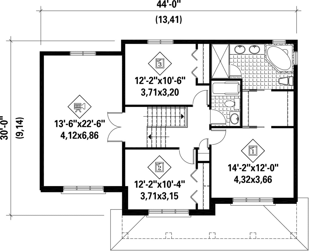
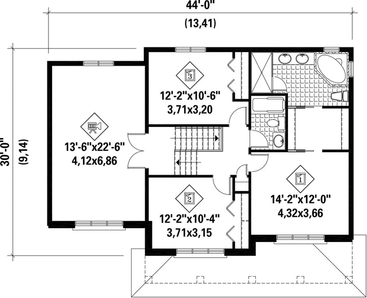
L'étage occupe 1 208 pieds carrés et comprend une pièce pouvant servir de cinéma maison située au-dessus du garage, une salle de bains familiale, et trois chambres, dont une chambre des maîtres dotée d'une grande penderie et d'une salle de bains privée.
Le rez-de-chaussée de 872 pieds carrés comprend un vestibule fermé, une salle de lecture, un salon avec foyer, une salle à manger, une cuisine avec îlot, et une salle d'eau avec espace pour la laveuse et la sécheuse. Toutes ces pièces ont des plafonds de 9 pieds de hauteur.
L'étage occupe 1 208 pieds carrés et comprend une pièce pouvant servir de cinéma maison située au-dessus du garage, une salle de bains familiale, et trois chambres, dont une chambre des maîtres dotée d'une grande penderie et d'une salle de bains privée.
Caractéristiques
Mesures : Impérial| Style d'architecture | Urbain |
Coût de construction
Montant approximatif équivalent à celui d'un entrepreneur général (région de la Rive-Sud de Montréal) pour une construction clé en main sans terrain ni infrastructures.
|
478051 $ |
|---|---|---|---|
| Façade | 44 pi | Surface habitable totale | 2080 pi² |
| Profondeur | 30 pi | Nombre de salles de bain | 2 |
| Hauteur | 33 pi 6 po | Nombre de chambres | 3 |
| Chambre des maîtres | Bain podium + Douche + Lavabo double + Penderie + Toilettes | Chambre des maîtres - commentaires | Grande penderie dans la chambre des maîtres |
| Surface rez-de-chaussée | 872 pi² | Finition extérieure | Aluminium + Pierre |
| Surface étage | 1208 pi² | Type de cuisine | Îlot |
| Surface garage | 336 pi² | Garage | 1 |
| Mur garage | 8 pi | Mur rez-de-chaussée | 9 pi |
| Mur étage | 8 pi | Inclinaison toit avant/arrière | 8/12 |
| Inclinaison toit gauche/droite | 8/12 |
| Style d'architecture | Urbain |
|---|---|
|
Coût de construction
Montant approximatif équivalent à celui d'un entrepreneur général (région de la Rive-Sud de Montréal) pour une construction clé en main sans terrain ni infrastructures.
|
478051 $ |
| Façade | 44 pi |
| Surface habitable totale | 2080 pi² |
| Profondeur | 30 pi |
| Nombre de salles de bain | 2 |
| Hauteur | 33 pi 6 po |
| Nombre de chambres | 3 |
| Chambre des maîtres | Bain podium + Douche + Lavabo double + Penderie + Toilettes |
| Chambre des maîtres - commentaires | Grande penderie dans la chambre des maîtres |
| Surface rez-de-chaussée | 872 pi² |
| Finition extérieure | Aluminium + Pierre |
| Surface étage | 1208 pi² |
| Type de cuisine | Îlot |
| Surface garage | 336 pi² |
| Garage | 1 |
| Mur garage | 8 pi |
| Mur rez-de-chaussée | 9 pi |
| Mur étage | 8 pi |
| Inclinaison toit avant/arrière | 8/12 |
| Inclinaison toit gauche/droite | 8/12 |