Description
Cette maison à étage affiche un style contemporain avec son grand porche surplombant l'entrée et l'agencement des revêtements et couleurs de sa façade. Elle mesure 37 pieds 4 pouces de largeur sur 32 pieds de profondeur et sa surface habitable est de 1 463 pieds carrés. Elle dispose également d'un garage de 312 pieds carrés pouvant loger une voiture.
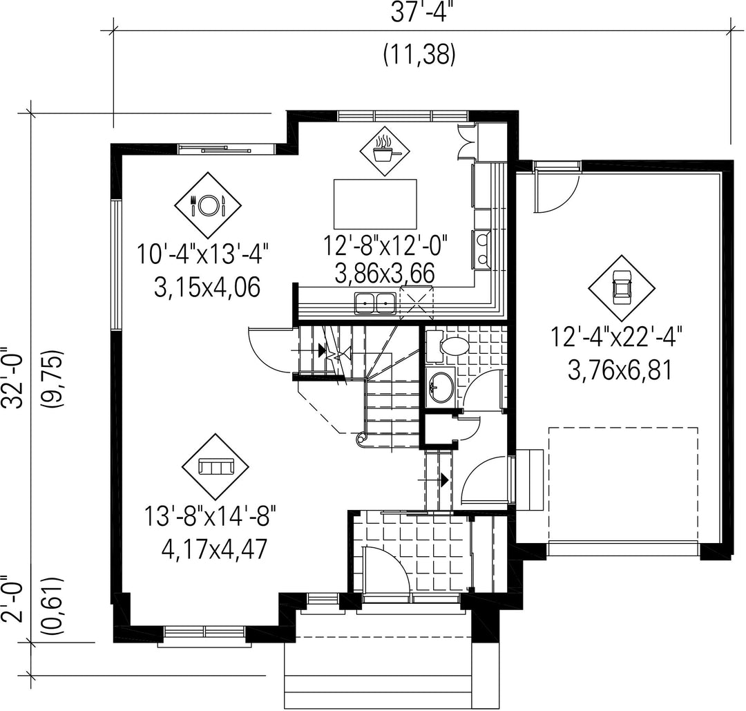
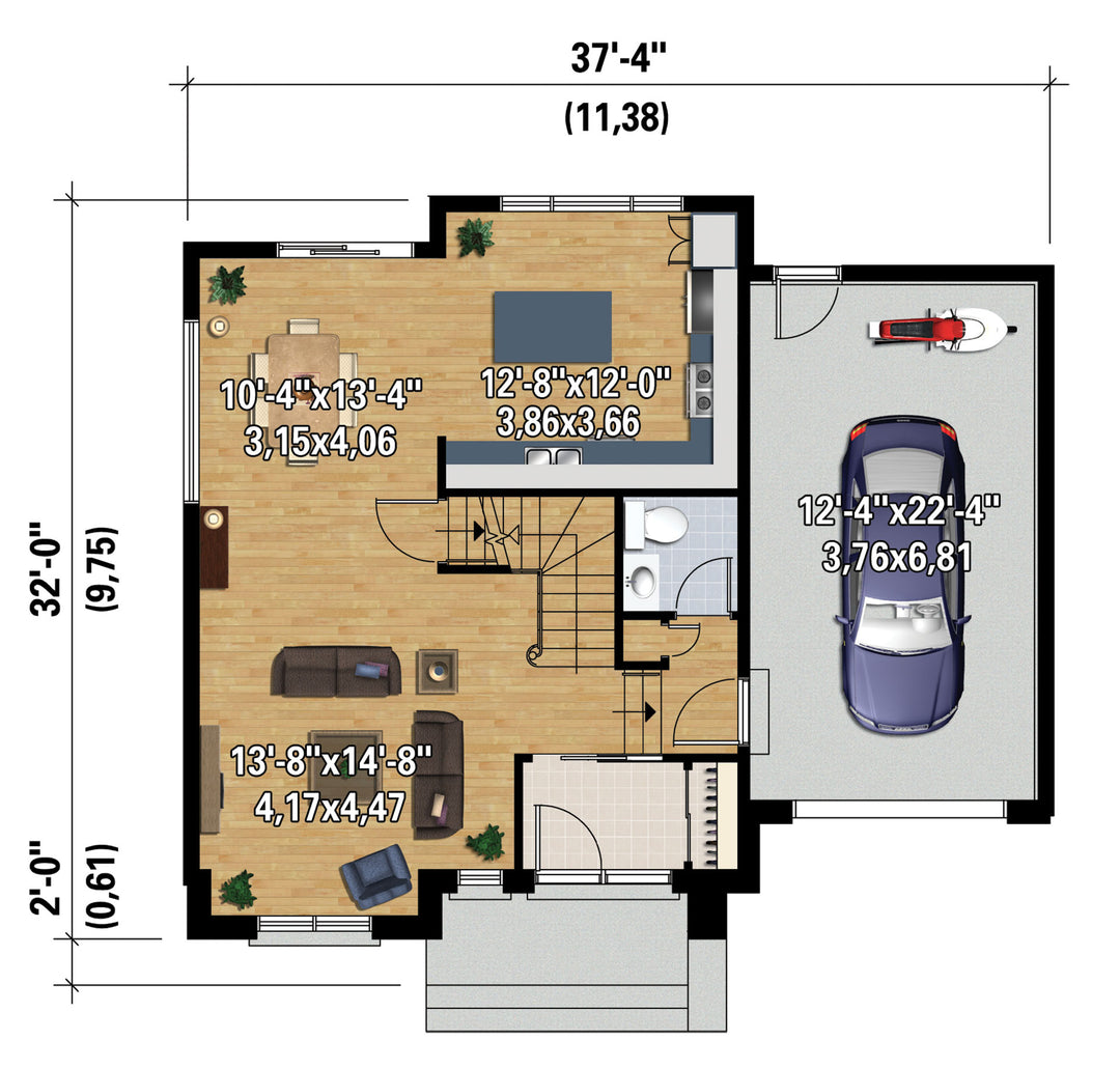
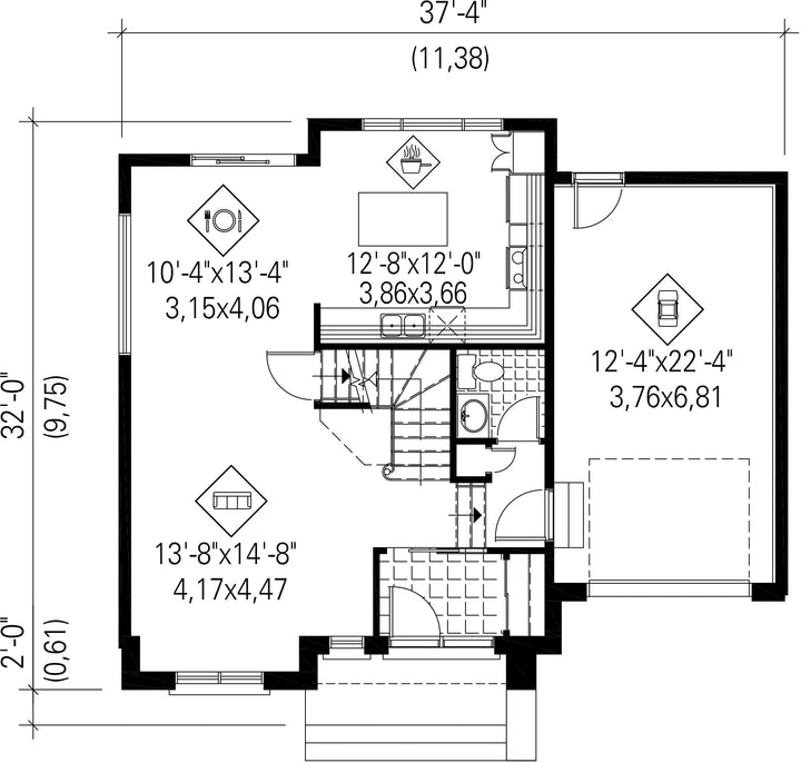
Le rez-de-chaussée occupe 731 pieds carrés et comprend un vestibule fermé, un grand salon, une salle à manger, une cuisine avec un îlot et un coin repas, et une salle d'eau.
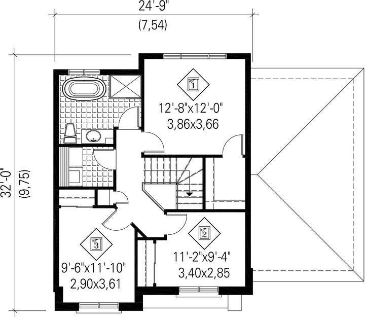
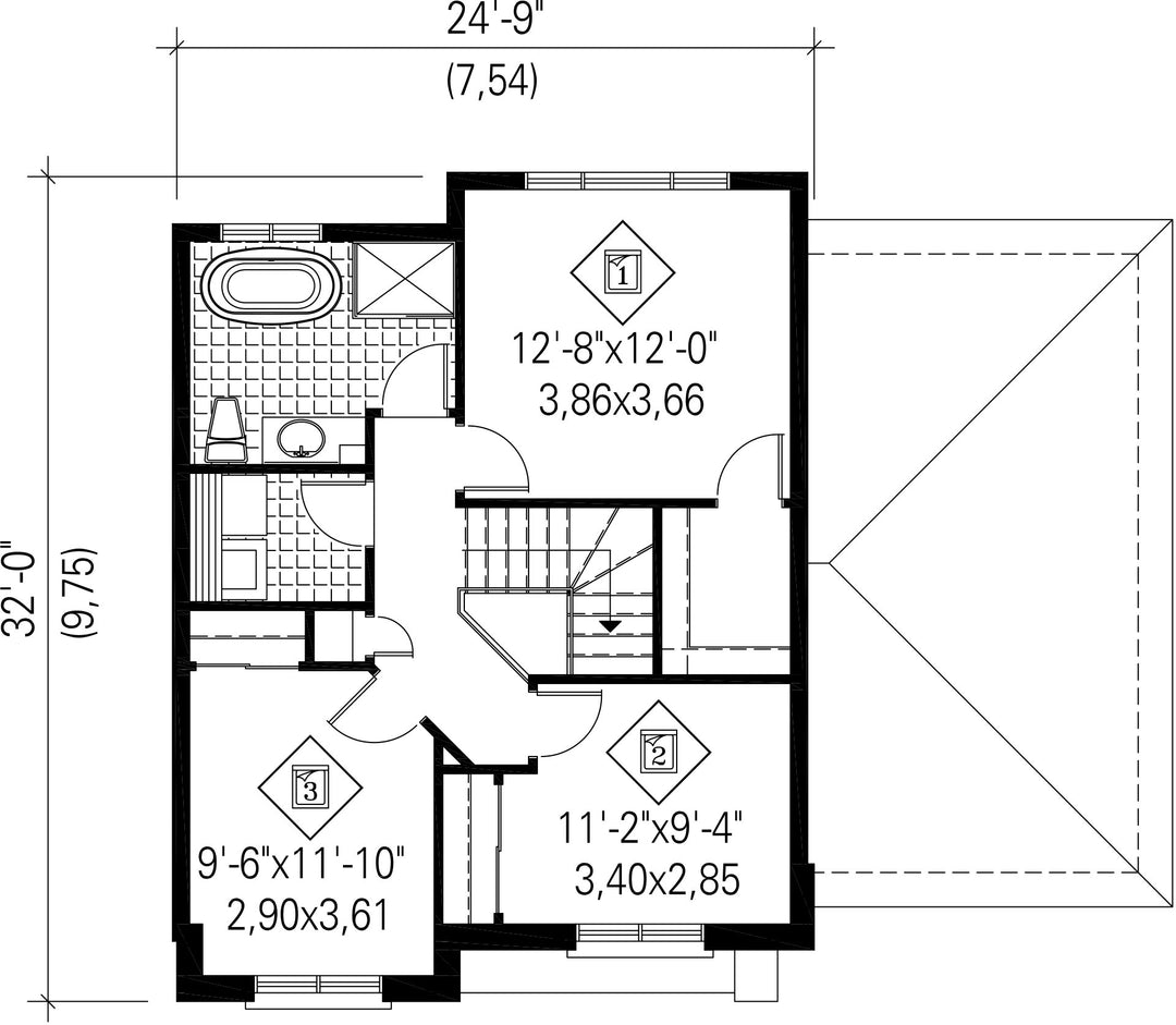
L'étage de 732 pieds carrés comprend une salle de bains, une salle de lavage et trois chambres, dont celle des maîtres qui dispose d'une grande penderie.
Le rez-de-chaussée occupe 731 pieds carrés et comprend un vestibule fermé, un grand salon, une salle à manger, une cuisine avec un îlot et un coin repas, et une salle d'eau.
L'étage de 732 pieds carrés comprend une salle de bains, une salle de lavage et trois chambres, dont celle des maîtres qui dispose d'une grande penderie.
Caractéristiques
Mesures : Impérial| Style d'architecture | Urbain |
Coût de construction
Montant approximatif équivalent à celui d'un entrepreneur général (région de la Rive-Sud de Montréal) pour une construction clé en main sans terrain ni infrastructures.
|
331370 $ |
|---|---|---|---|
| Façade | 37 pi 4 po | Surface habitable totale | 1464 pi² |
| Profondeur | 32 pi | Nombre de salles de bain | 1 |
| Hauteur | 30 pi 8 po | Nombre de chambres | 3 |
| Chambre des maîtres | Penderie | Chambre des maîtres - commentaires | Chambre des maîtres avec penderie |
| Surface rez-de-chaussée | 732 pi² | Finition extérieure | Aluminium + Brique + Pierre |
| Surface étage | 732 pi² | Type de cuisine | Coin repas + Comptoir repas + Forme en L + Îlot |
| Surface garage | 312 pi² | Garage | 1 |
| Mur garage | 8 pi | Mur rez-de-chaussée | 8 pi |
| Mur étage | 8 pi | Inclinaison toit avant/arrière | 8/12 |
| Inclinaison toit gauche/droite | 8/12 |
| Style d'architecture | Urbain |
|---|---|
|
Coût de construction
Montant approximatif équivalent à celui d'un entrepreneur général (région de la Rive-Sud de Montréal) pour une construction clé en main sans terrain ni infrastructures.
|
331370 $ |
| Façade | 37 pi 4 po |
| Surface habitable totale | 1464 pi² |
| Profondeur | 32 pi |
| Nombre de salles de bain | 1 |
| Hauteur | 30 pi 8 po |
| Nombre de chambres | 3 |
| Chambre des maîtres | Penderie |
| Chambre des maîtres - commentaires | Chambre des maîtres avec penderie |
| Surface rez-de-chaussée | 732 pi² |
| Finition extérieure | Aluminium + Brique + Pierre |
| Surface étage | 732 pi² |
| Type de cuisine | Coin repas + Comptoir repas + Forme en L + Îlot |
| Surface garage | 312 pi² |
| Garage | 1 |
| Mur garage | 8 pi |
| Mur rez-de-chaussée | 8 pi |
| Mur étage | 8 pi |
| Inclinaison toit avant/arrière | 8/12 |
| Inclinaison toit gauche/droite | 8/12 |