21351
21351
21351
21351
21351
21351

Jeux de plans - Sets of plans
Prix régulier$1,035.00
/

Ce site est protégé par hCaptcha, et la Politique de confidentialité et les Conditions de service de hCaptcha s’appliquent.

Description

Avec sa façade contemporaine et son porche au toit plat, cette maison à étage projette élégance et distinction. Elle mesure 26 pieds de largeur sur 27 pieds de profondeur et sa surface habitable est de 1 366 pieds carrés.
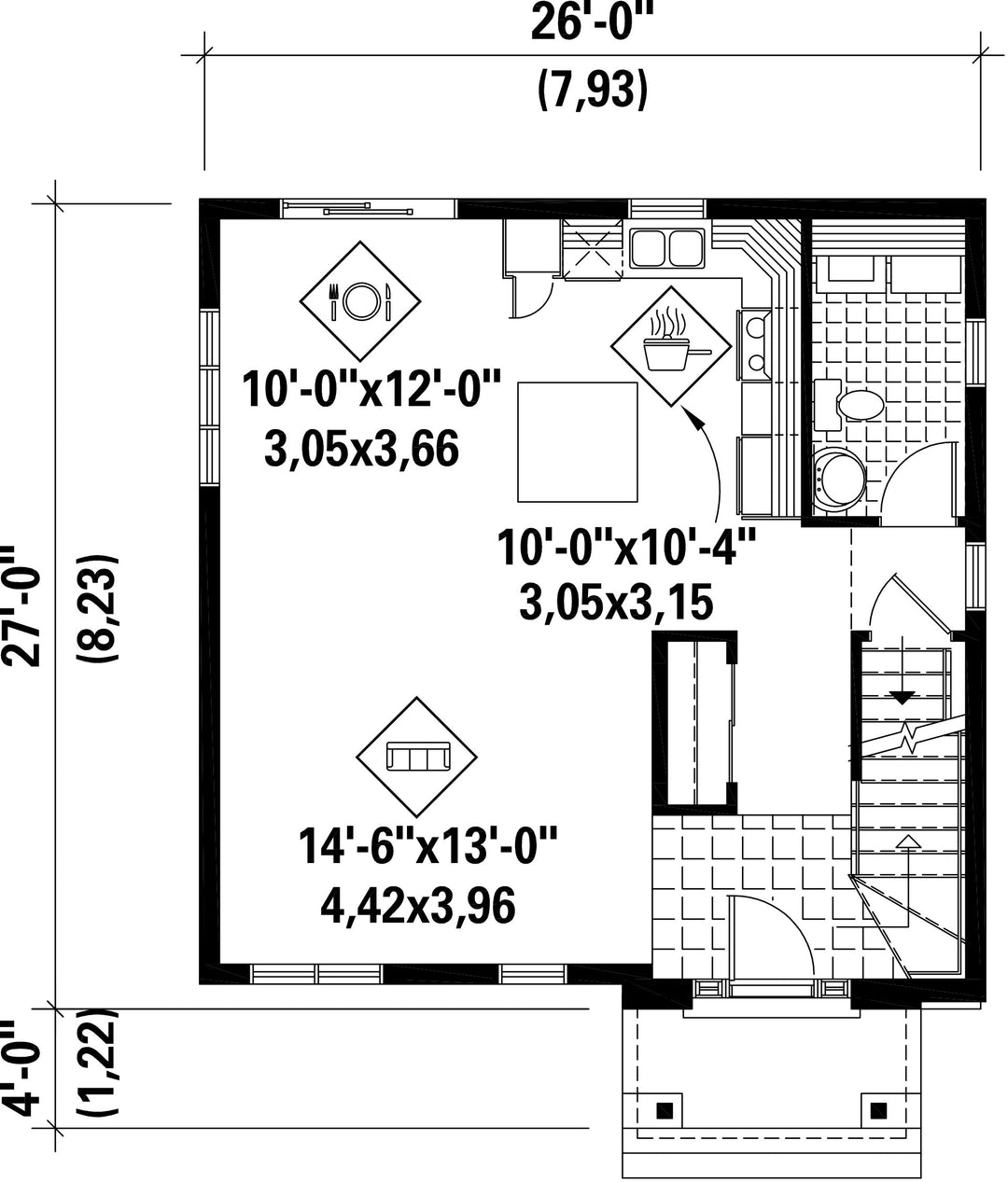
D'une surface de 683 pieds carrés, le rez-de-chaussée comporte une salle d'eau avec un pour la laveuse et la sécheuse, un grand salon, une salle à manger ainsi qu'une cuisine à aire ouverte avec îlot et coin repas.
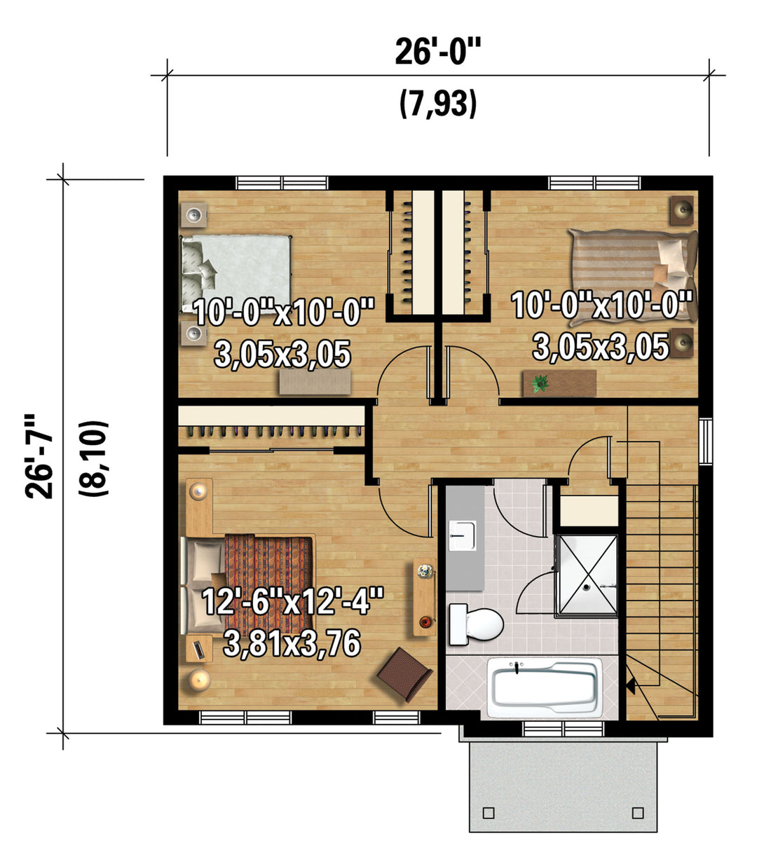
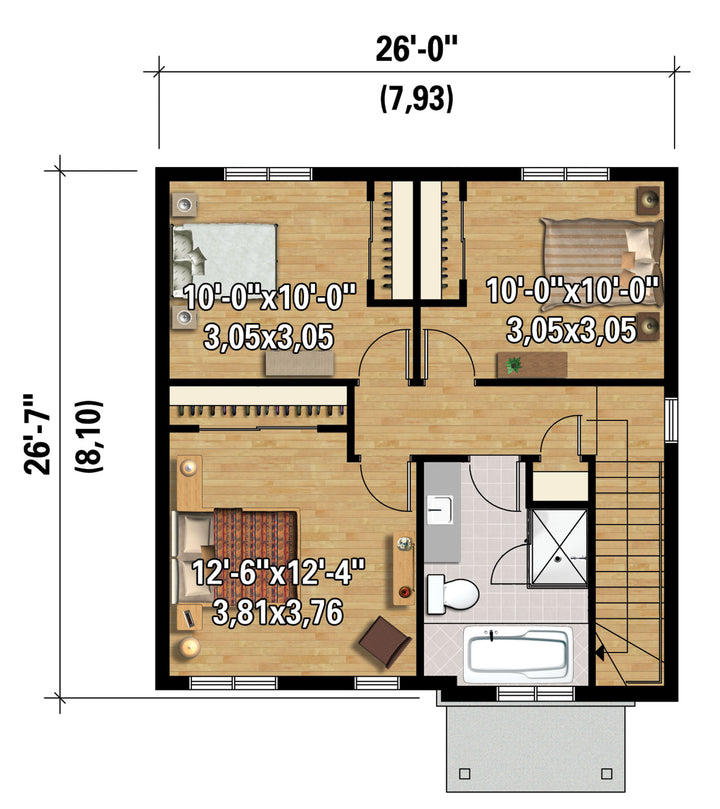
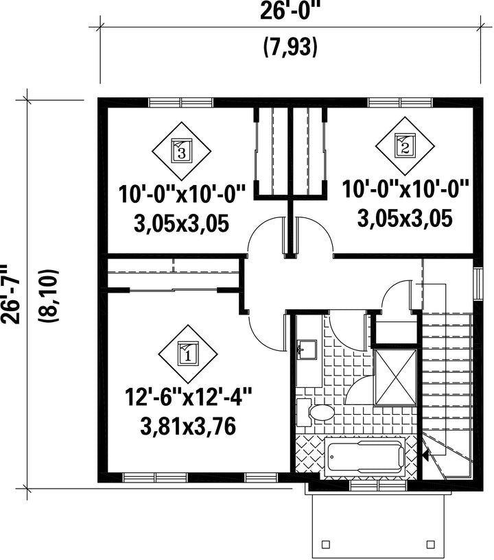
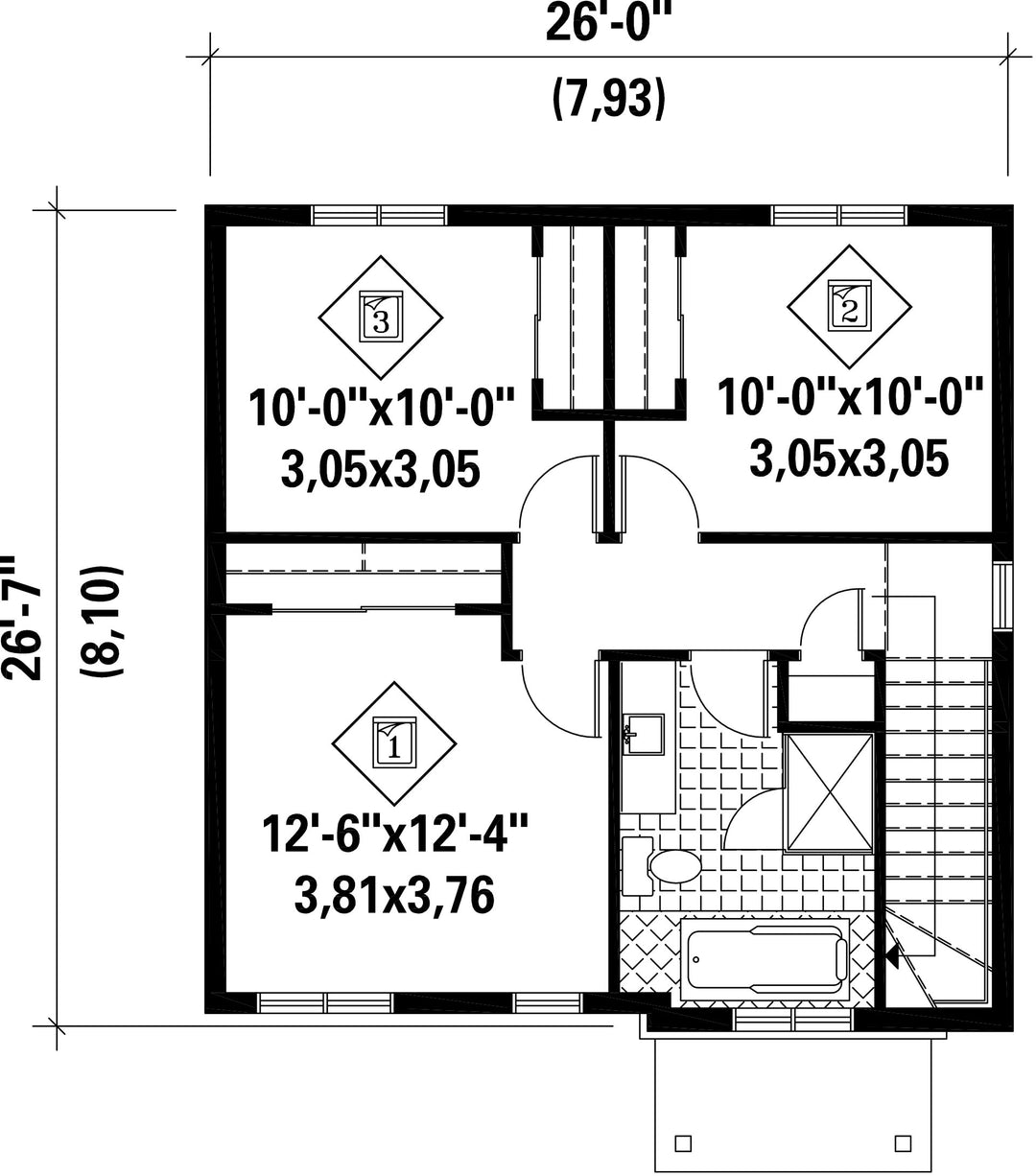
L'étage occupe 683 pieds carrés de surface et comporte trois chambres ainsi qu'une salle de bains.

Caractéristiques

Mesures : Impérial

Style d'architecture Urbain Coût de construction 
Montant approximatif équivalent à celui d'un entrepreneur général (région de la Rive-Sud de Montréal) pour une construction clé en main sans terrain ni infrastructures.
272462 $
Façade 26 pi Surface habitable totale 1366 pi²
Profondeur 27 piNombre de salles de bain 1
Hauteur 27 pi 8 poNombre de chambres 3
Surface rez-de-chaussée 683 pi² Finition extérieure Aluminium + Pierre
Surface étage 683 pi² Type de cuisine Coin repas + Comptoir repas + Forme en L + Îlot
Garage 0
Mur rez-de-chaussée 8 pi
Mur étage 8 piInclinaison toit avant/arrière 6/12
Inclinaison toit gauche/droite 8/12
Style d'architecture Urbain
Coût de construction 
Montant approximatif équivalent à celui d'un entrepreneur général (région de la Rive-Sud de Montréal) pour une construction clé en main sans terrain ni infrastructures.
272462 $
Façade 26 pi
Surface habitable totale 1366 pi²
Profondeur 27 pi
Nombre de salles de bain 1
Hauteur 27 pi 8 po
Nombre de chambres 3
Surface rez-de-chaussée 683 pi²
Finition extérieure Aluminium + Pierre
Surface étage 683 pi²
Type de cuisine Coin repas + Comptoir repas + Forme en L + Îlot
Garage 0
Mur rez-de-chaussée 8 pi
Mur étage 8 pi
Inclinaison toit avant/arrière 6/12
Inclinaison toit gauche/droite 8/12

Ces plans de maison pourraient également vous intéresser


Vu récemment