Description
La façade de cette magnifique maison à étage affiche un look très contemporain avec son jeu de toits, ses grandes fenêtres et l’agencement de ses revêtements. Cette demeure écologique, qui comprend également un garage simple de 287 pieds carrés, mesure 36 pieds de largeur sur 34 pieds de profondeur et offre 1 385 pieds carrés de surface habitable.
D'une surface de 700 pieds carrés, le rez-de-chaussée comporte un vestibule fermé, une salle d'eau avec espace pour la laveuse et la sécheuse, un salon et une salle à manger à aire ouverte, ainsi qu’une cuisine avec îlot.
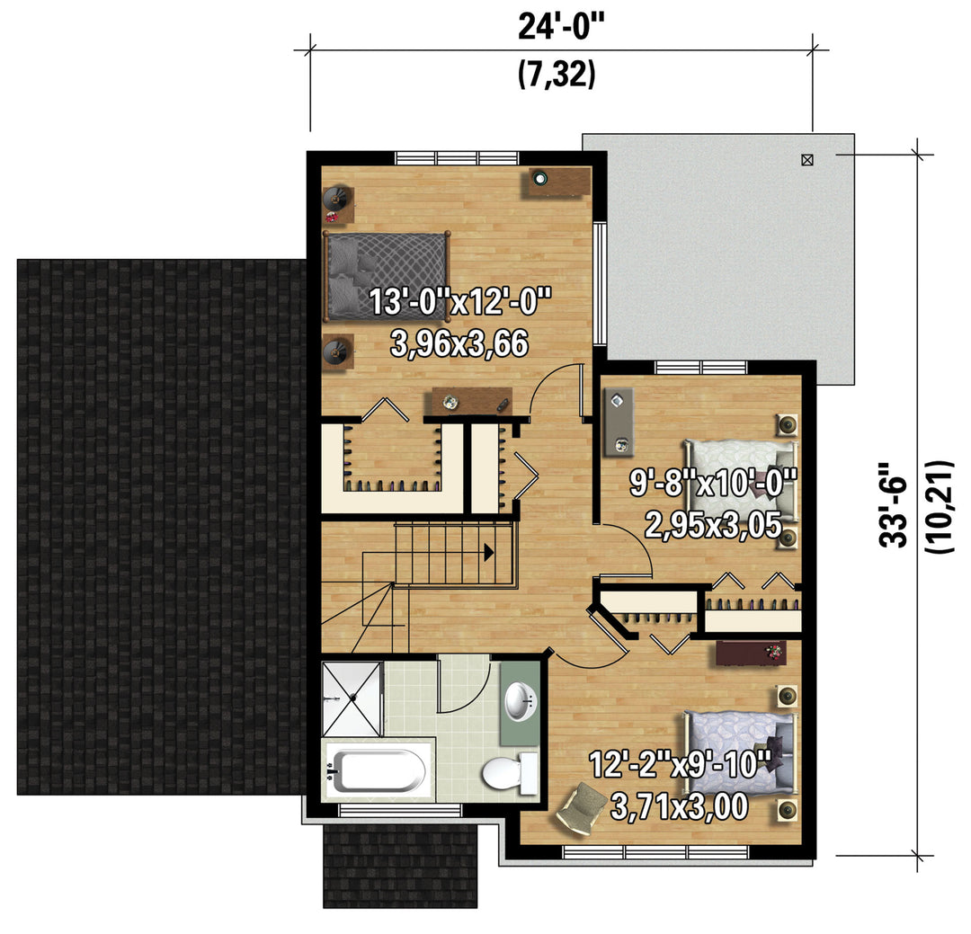
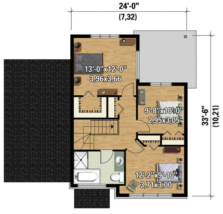
L'étage offre une surface habitable de 685 pieds carrés et comprend trois chambres ainsi qu'une salle de bains.
D'une surface de 700 pieds carrés, le rez-de-chaussée comporte un vestibule fermé, une salle d'eau avec espace pour la laveuse et la sécheuse, un salon et une salle à manger à aire ouverte, ainsi qu’une cuisine avec îlot.
L'étage offre une surface habitable de 685 pieds carrés et comprend trois chambres ainsi qu'une salle de bains.
Caractéristiques
Mesures : Impérial| Style d'architecture | Urbain |
Coût de construction
Montant approximatif équivalent à celui d'un entrepreneur général (région de la Rive-Sud de Montréal) pour une construction clé en main sans terrain ni infrastructures.
|
313337 $ |
|---|---|---|---|
| Façade | 36 pi | Surface habitable totale | 1385 pi² |
| Profondeur | 34 pi | Nombre de salles de bain | 1 |
| Hauteur | 31 pi | Nombre de chambres | 3 |
| Chambre des maîtres | Penderie | Chambre des maîtres - commentaires | Chambre des maîtres avec penderie |
| Surface rez-de-chaussée | 700 pi² | Finition extérieure | Aluminium + Brique |
| Surface étage | 685 pi² | Type de cuisine | Comptoir repas + Salle à manger + Îlot |
| Surface garage | 287 pi² | Garage | 1 |
| Mur garage | 8 pi | Mur rez-de-chaussée | 8 pi |
| Mur étage | 8 pi | Inclinaison toit avant/arrière | 0 |
| Inclinaison toit gauche/droite | 6/12 |
| Style d'architecture | Urbain |
|---|---|
|
Coût de construction
Montant approximatif équivalent à celui d'un entrepreneur général (région de la Rive-Sud de Montréal) pour une construction clé en main sans terrain ni infrastructures.
|
313337 $ |
| Façade | 36 pi |
| Surface habitable totale | 1385 pi² |
| Profondeur | 34 pi |
| Nombre de salles de bain | 1 |
| Hauteur | 31 pi |
| Nombre de chambres | 3 |
| Chambre des maîtres | Penderie |
| Chambre des maîtres - commentaires | Chambre des maîtres avec penderie |
| Surface rez-de-chaussée | 700 pi² |
| Finition extérieure | Aluminium + Brique |
| Surface étage | 685 pi² |
| Type de cuisine | Comptoir repas + Salle à manger + Îlot |
| Surface garage | 287 pi² |
| Garage | 1 |
| Mur garage | 8 pi |
| Mur rez-de-chaussée | 8 pi |
| Mur étage | 8 pi |
| Inclinaison toit avant/arrière | 0 |
| Inclinaison toit gauche/droite | 6/12 |