11891
11891
11891
11891

Jeux de plans - Sets of plans
Prix régulier$1,188.00
/

Ce site est protégé par hCaptcha, et la Politique de confidentialité et les Conditions de service de hCaptcha s’appliquent.

Description

Cette jolie maison de plain-pied qui affiche un look urbain mesure 34 pieds de largeur sur 35 pieds de profondeur et offre une surface habitable de 2 055 pieds carrés.
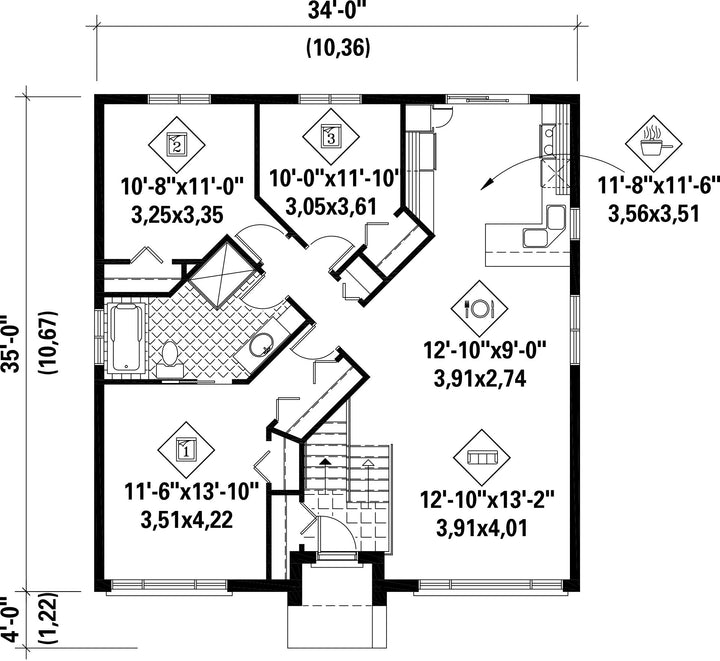
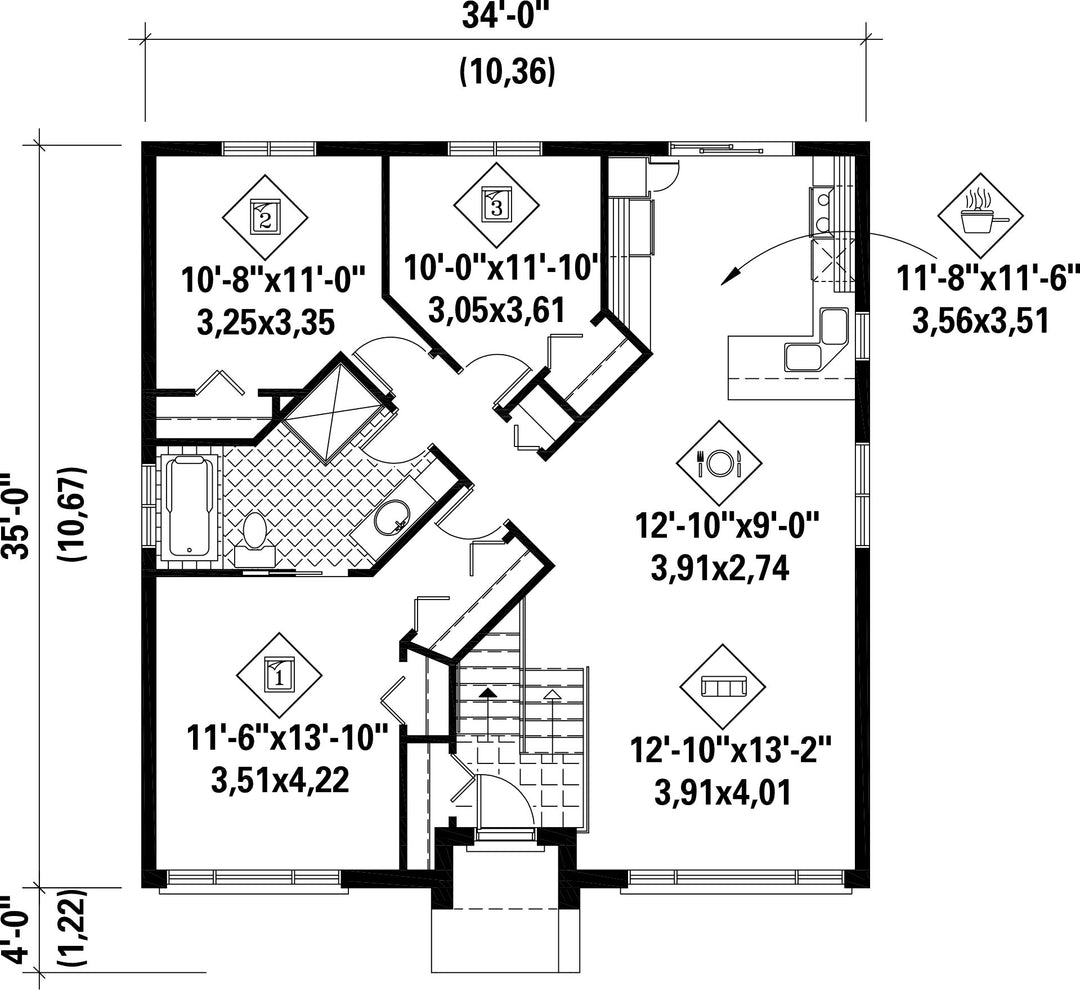
Le rez-de-chaussée, réparti sur une surface de 1 180 pieds carrés, comprend une entrée à paliers, une cuisine, une salle à manger et un salon à aire ouverte, une chambre des maîtres avec deux placards, deux chambres secondaires ainsi qu'une salle de bains. Toutes les pièces du rez-de-chaussée ont des plafonds de 9 pieds de hauteur.
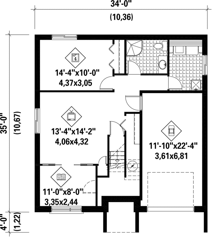
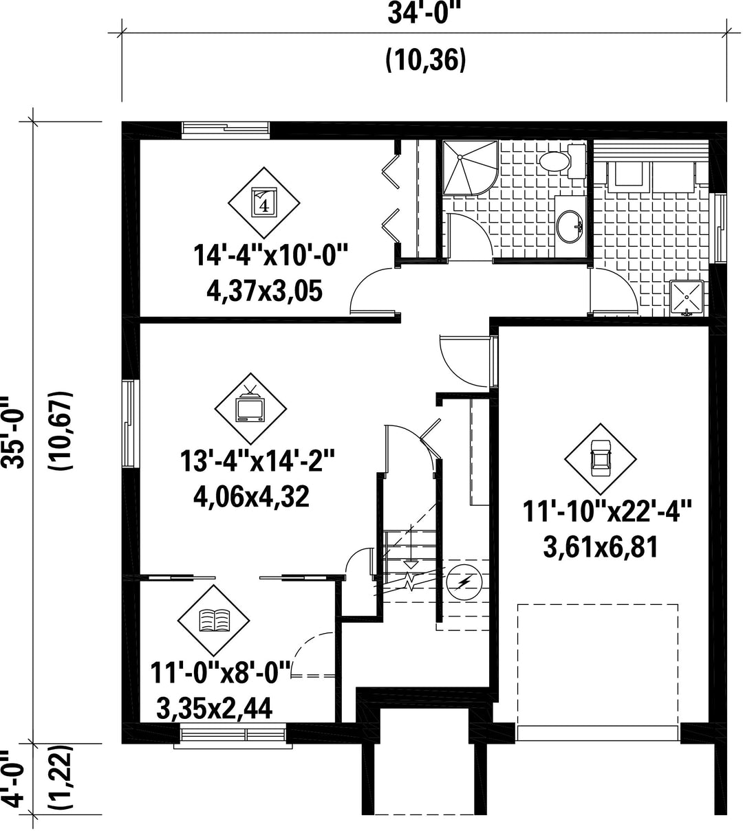
Le sous-sol offre une surface habitable de 875 pieds carrés. On y retrouve une chambre, une salle de bains, une salle de lavage, une salle familiale, une salle de lecture, ainsi qu'un garage simple de 305 pieds carrés.

Caractéristiques

Mesures : Impérial

Style d'architecture Urbain Coût de construction 
Montant approximatif équivalent à celui d'un entrepreneur général (région de la Rive-Sud de Montréal) pour une construction clé en main sans terrain ni infrastructures.
379223 $
Façade 34 pi Surface habitable totale 2055 pi²
Profondeur 35 piNombre de salles de bain 2
Hauteur 27 pi 4 poNombre de chambres 4
Chambre des maîtres Toilettes Chambre des maîtres - commentaires Chambre des maîtres avec 2 garde-robes
Surface rez-de-chaussée 1180 pi² Finition extérieure Aluminium + Bois + Pierre
Type de cuisine Comptoir repas + Forme en L
Surface garage 305 pi² Garage 1
Mur garage 8 piMur rez-de-chaussée 9 pi
Inclinaison toit avant/arrière 8/12
Inclinaison toit gauche/droite 8/12Surface sous-sol 875 pi²
Style d'architecture Urbain
Coût de construction 
Montant approximatif équivalent à celui d'un entrepreneur général (région de la Rive-Sud de Montréal) pour une construction clé en main sans terrain ni infrastructures.
379223 $
Façade 34 pi
Surface habitable totale 2055 pi²
Profondeur 35 pi
Nombre de salles de bain 2
Hauteur 27 pi 4 po
Nombre de chambres 4
Chambre des maîtres Toilettes
Chambre des maîtres - commentaires Chambre des maîtres avec 2 garde-robes
Surface rez-de-chaussée 1180 pi²
Finition extérieure Aluminium + Bois + Pierre
Type de cuisine Comptoir repas + Forme en L
Surface garage 305 pi²
Garage 1
Mur garage 8 pi
Mur rez-de-chaussée 9 pi
Inclinaison toit avant/arrière 8/12
Inclinaison toit gauche/droite 8/12
Surface sous-sol 875 pi²

Ces plans de maison pourraient également vous intéresser


Vu récemment