Description
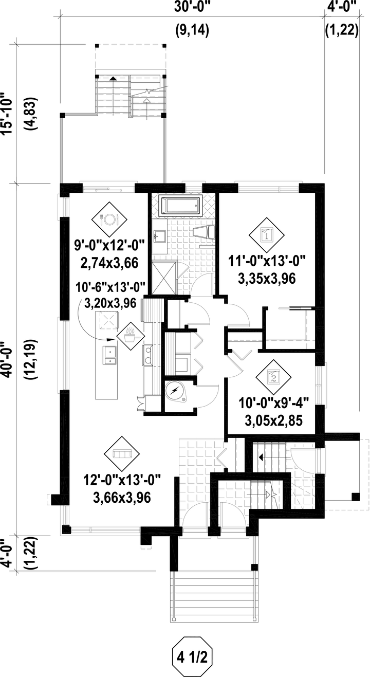
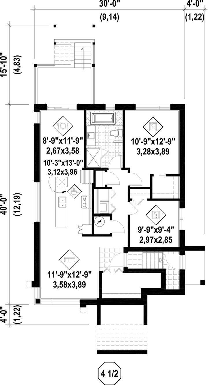
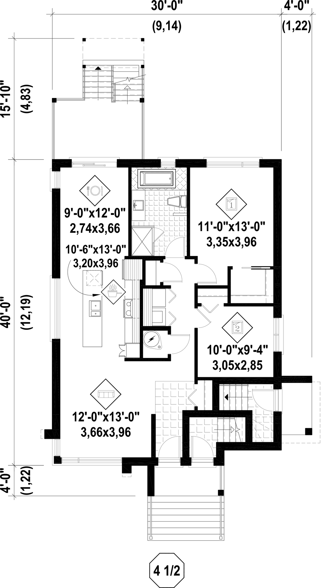
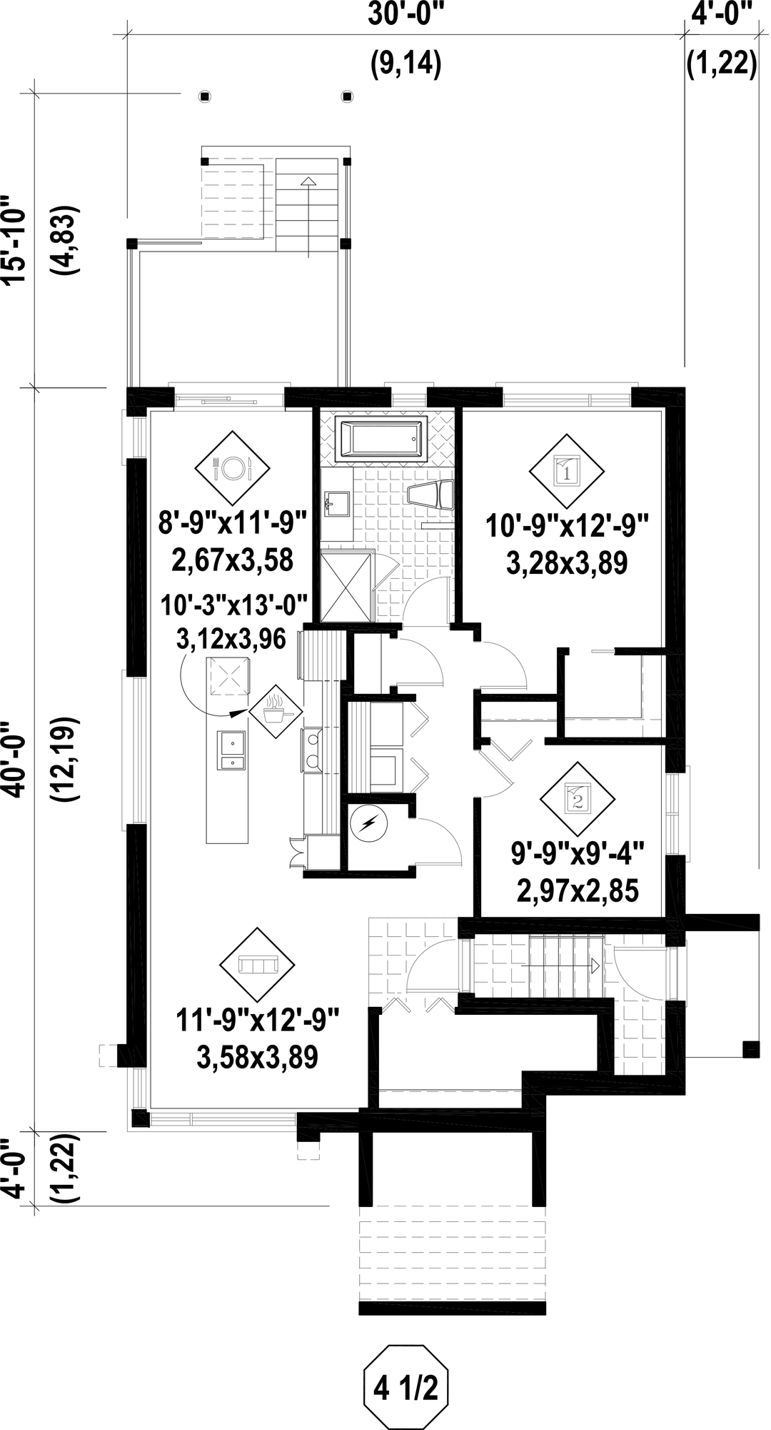
Ce triplex à l’architecture moderne possède une superficie habitable totale de 3 555 pieds carrés et mesure 30 pieds de largeur sur 40 pieds de profondeur. La superficie habitable varie entre 1 1013pi². et 1 071 pi² et la disposition des pièces est identique.
Chacun des trois logements possède une entrée indépendante et un balcon privé de bonne dimension à l’arrière. Chaque unité à aire ouverte comprend un salon, une salle à manger et une cuisine de type laboratoire avec un îlot, un placard pour la laveuse et la sécheuse, ainsi que deux chambres et une salle de bains avec une douche vitrée et une baignoire sur podium.
Chacun des trois logements possède une entrée indépendante et un balcon privé de bonne dimension à l’arrière. Chaque unité à aire ouverte comprend un salon, une salle à manger et une cuisine de type laboratoire avec un îlot, un placard pour la laveuse et la sécheuse, ainsi que deux chambres et une salle de bains avec une douche vitrée et une baignoire sur podium.
Caractéristiques
Mesures : Impérial| Style d'architecture | Urbain |
Coût de construction
Montant approximatif équivalent à celui d'un entrepreneur général (région de la Rive-Sud de Montréal) pour une construction clé en main sans terrain ni infrastructures.
|
505995 $ |
|---|---|---|---|
| Façade | 30 pi | Surface habitable totale | 3555 pi² |
| Profondeur | 40 pi | Nombre de salles de bain | 3 |
| Hauteur | 29 pi 10 po | Nombre de chambres | 6 |
| Chambre des maîtres | Penderie | ||
| Surface rez-de-chaussée | 1185 pi² | Finition extérieure | Agrégats + Aluminium + Bois + Brique + Pierre |
| Surface étage | 1185 pi² | Type de cuisine | Laboratoire + Îlot |
| Garage | 0 | ||
| Mur rez-de-chaussée | 8 pi | ||
| Mur étage | 8 pi | Inclinaison toit avant/arrière | 4/12 |
| Inclinaison toit gauche/droite | 4/12 | Surface sous-sol | 1185 pi² |
| Style d'architecture | Urbain |
|---|---|
|
Coût de construction
Montant approximatif équivalent à celui d'un entrepreneur général (région de la Rive-Sud de Montréal) pour une construction clé en main sans terrain ni infrastructures.
|
505995 $ |
| Façade | 30 pi |
| Surface habitable totale | 3555 pi² |
| Profondeur | 40 pi |
| Nombre de salles de bain | 3 |
| Hauteur | 29 pi 10 po |
| Nombre de chambres | 6 |
| Chambre des maîtres | Penderie |
| Surface rez-de-chaussée | 1185 pi² |
| Finition extérieure | Agrégats + Aluminium + Bois + Brique + Pierre |
| Surface étage | 1185 pi² |
| Type de cuisine | Laboratoire + Îlot |
| Garage | 0 |
| Mur rez-de-chaussée | 8 pi |
| Mur étage | 8 pi |
| Inclinaison toit avant/arrière | 4/12 |
| Inclinaison toit gauche/droite | 4/12 |
| Surface sous-sol | 1185 pi² |