Description
Ces jolies maisons à étage jumelées sont vaguement différentes l’une de l’autre. Celle de gauche est légèrement plus large que celle de droite. Les deux unités ont une superficie habitable totale de 2 496 pieds carrés.
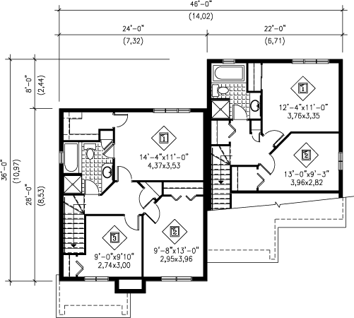
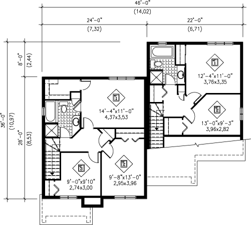
Le rez-de-chaussée de chaque maison comprend un hall d’entrée ouvert avec placard, une salle d’eau, une cuisine en L, et un salon et une salle à manger à aire ouverte.
L’étage de la maison de gauche est composé d’une salle de bains et de trois chambres, dont une chambre des maîtres disposant d’une grande penderie.
L’étage de celle de droite comprend une salle de bains et deux chambres.
Le rez-de-chaussée de chaque maison comprend un hall d’entrée ouvert avec placard, une salle d’eau, une cuisine en L, et un salon et une salle à manger à aire ouverte.
L’étage de la maison de gauche est composé d’une salle de bains et de trois chambres, dont une chambre des maîtres disposant d’une grande penderie.
L’étage de celle de droite comprend une salle de bains et deux chambres.
Caractéristiques
Mesures : Impérial| Style d'architecture | Champêtre |
Coût de construction
Montant approximatif équivalent à celui d'un entrepreneur général (région de la Rive-Sud de Montréal) pour une construction clé en main sans terrain ni infrastructures.
|
471254 $ |
|---|---|---|---|
| Façade | 46 pi | Surface habitable totale | 2496 pi² |
| Profondeur | 40 pi | Nombre de salles de bain | 2 |
| Hauteur | 32 pi | Nombre de chambres | 5 |
| Chambre des maîtres - commentaires | Grand walk-in | ||
| Surface rez-de-chaussée | 1343 pi² | Finition extérieure | Aluminium |
| Surface étage | 1153 pi² | Type de cuisine | Forme en L |
| Garage | 0 | ||
| Mur rez-de-chaussée | 8 pi | ||
| Mur étage | 8 pi | Inclinaison toit avant/arrière | 8/12 |
| Style d'architecture | Champêtre |
|---|---|
|
Coût de construction
Montant approximatif équivalent à celui d'un entrepreneur général (région de la Rive-Sud de Montréal) pour une construction clé en main sans terrain ni infrastructures.
|
471254 $ |
| Façade | 46 pi |
| Surface habitable totale | 2496 pi² |
| Profondeur | 40 pi |
| Nombre de salles de bain | 2 |
| Hauteur | 32 pi |
| Nombre de chambres | 5 |
| Chambre des maîtres - commentaires | Grand walk-in |
| Surface rez-de-chaussée | 1343 pi² |
| Finition extérieure | Aluminium |
| Surface étage | 1153 pi² |
| Type de cuisine | Forme en L |
| Garage | 0 |
| Mur rez-de-chaussée | 8 pi |
| Mur étage | 8 pi |
| Inclinaison toit avant/arrière | 8/12 |