Description
L’apparence de ces charmantes maisons à étage jumelées est rehaussée par des moulures décoratives et un joli porche. Elles disposent chacune d’une superficie habitable totale de 1 202 pieds carrés. La disposition des pièces et la superficie des étages sont identiques dans les deux unités.
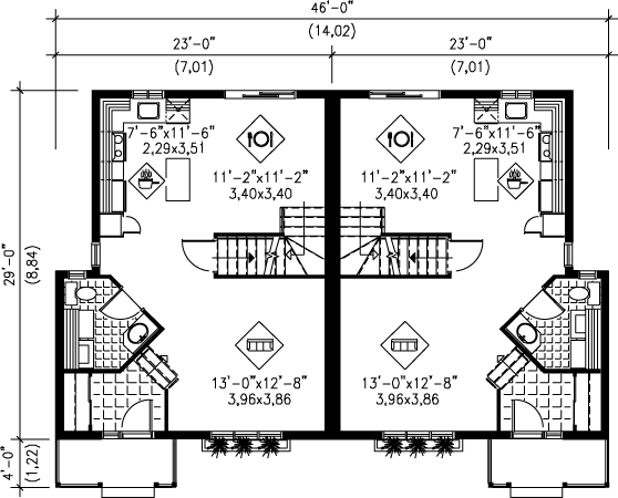
Le rez-de-chaussée de chaque maison a une superficie de 622 pieds carrés et comprend un hall ouvert en contrebas avec placard, une salle d’eau avec espace pour la laveuse et la sécheuse, un vaste salon, une cuisine en L avec îlot, et une salle à manger à aire ouverte.
L’étage de 580 pieds carrés est composé d’une salle de bains et de trois chambres, dont une chambre des maîtres disposant d’une penderie.
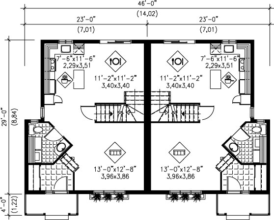
Le rez-de-chaussée de chaque maison a une superficie de 622 pieds carrés et comprend un hall ouvert en contrebas avec placard, une salle d’eau avec espace pour la laveuse et la sécheuse, un vaste salon, une cuisine en L avec îlot, et une salle à manger à aire ouverte.
L’étage de 580 pieds carrés est composé d’une salle de bains et de trois chambres, dont une chambre des maîtres disposant d’une penderie.
Caractéristiques
Mesures : Impérial| Style d'architecture | Champêtre |
Coût de construction
Montant approximatif équivalent à celui d'un entrepreneur général (région de la Rive-Sud de Montréal) pour une construction clé en main sans terrain ni infrastructures.
|
458275 $ |
|---|---|---|---|
| Façade | 46 pi | Surface habitable totale | 2404 pi² |
| Profondeur | 29 pi | Nombre de salles de bain | 2 |
| Hauteur | 29 pi 2 po | Nombre de chambres | 6 |
| Chambre des maîtres - commentaires | Grand walk-in | ||
| Surface rez-de-chaussée | 1244 pi² | Finition extérieure | Agrégats + Aluminium |
| Surface étage | 1160 pi² | Type de cuisine | Forme en L + Îlot |
| Garage | 0 | ||
| Mur rez-de-chaussée | 8 pi | ||
| Mur étage | 8 pi | Inclinaison toit avant/arrière | 6/12 |
| Inclinaison toit gauche/droite | 12/12 |
| Style d'architecture | Champêtre |
|---|---|
|
Coût de construction
Montant approximatif équivalent à celui d'un entrepreneur général (région de la Rive-Sud de Montréal) pour une construction clé en main sans terrain ni infrastructures.
|
458275 $ |
| Façade | 46 pi |
| Surface habitable totale | 2404 pi² |
| Profondeur | 29 pi |
| Nombre de salles de bain | 2 |
| Hauteur | 29 pi 2 po |
| Nombre de chambres | 6 |
| Chambre des maîtres - commentaires | Grand walk-in |
| Surface rez-de-chaussée | 1244 pi² |
| Finition extérieure | Agrégats + Aluminium |
| Surface étage | 1160 pi² |
| Type de cuisine | Forme en L + Îlot |
| Garage | 0 |
| Mur rez-de-chaussée | 8 pi |
| Mur étage | 8 pi |
| Inclinaison toit avant/arrière | 6/12 |
| Inclinaison toit gauche/droite | 12/12 |