Description
Cette magnifique maison à étage présente certains détails architecturaux qui lui donnent un style raffiné, comme l’immense colonne ornementale qui embellit l’entrée, une section en saillie à l’avant et des moulures décoratives. La demeure mesure 39 pieds de largeur sur 37 pieds 8 pouces de profondeur et offre une surface habitable de 1 886 pieds carrés.
Avec 947 pieds carrés de surface habitable, le rez-de-chaussée compte un vestibule ouvert, une salle d'eau avec espace pour la laveuse et la sécheuse, un salon avec foyer en coin, une salle à manger, et une grande cuisine avec de vastes surfaces de travail et un coin repas ouvert sur deux étages. Un garage double de 262 pieds carrés avec accès à l’intérieur et à l’extérieur vient compléter le tout.
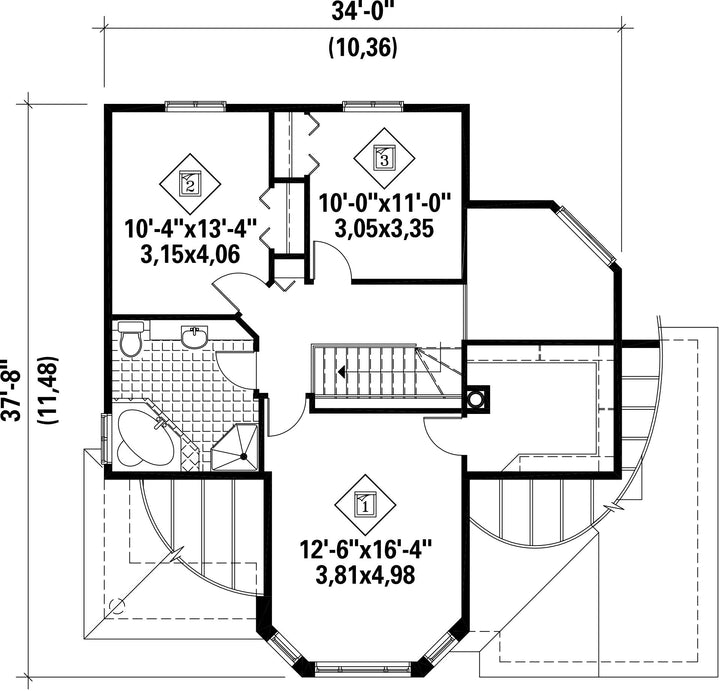
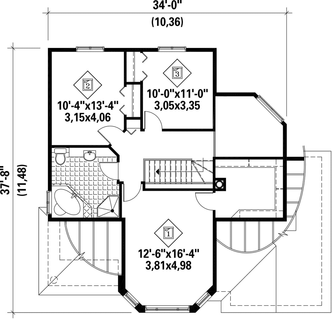
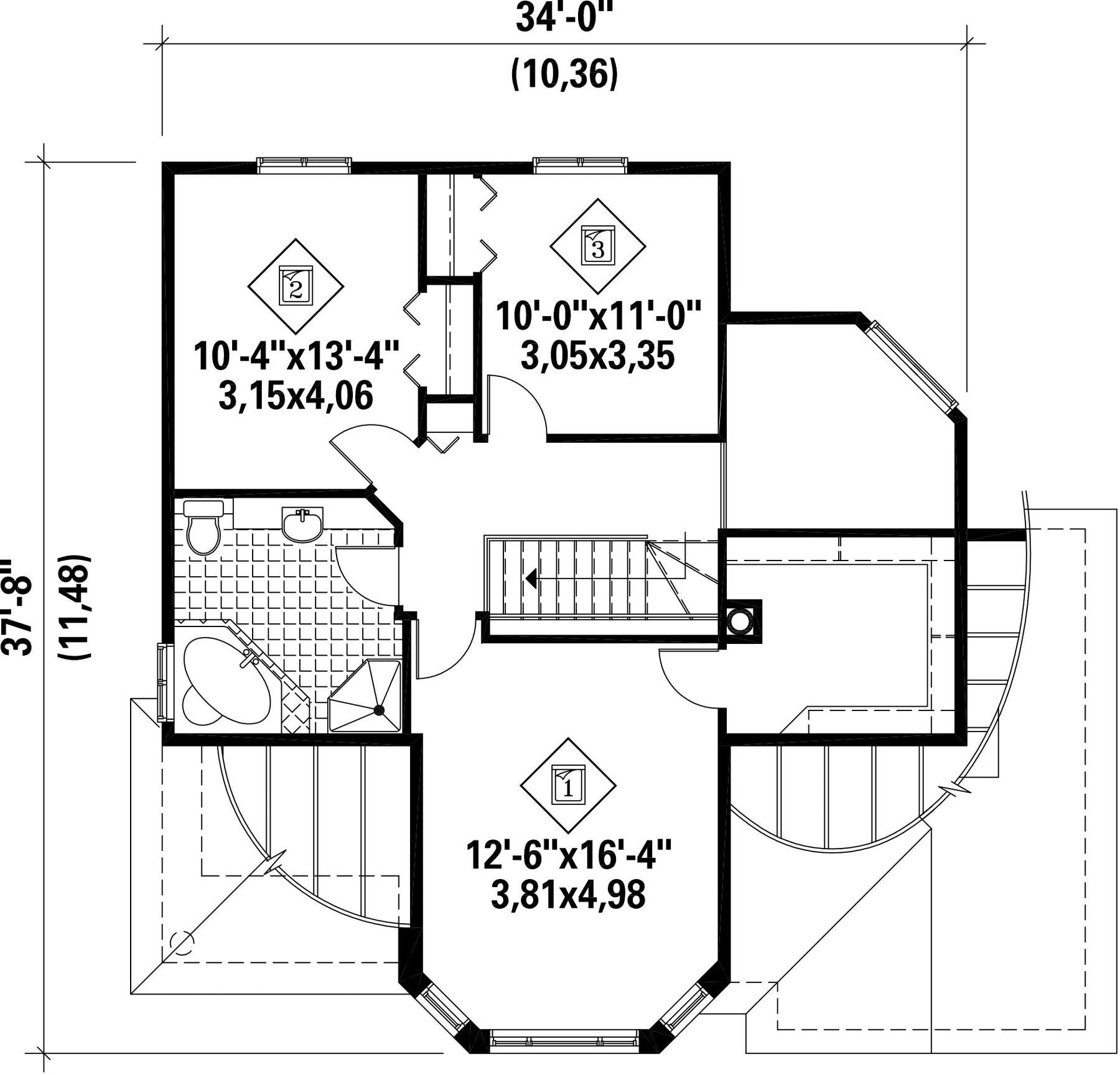
L'étage de 939 pieds carrés comprend une salle de bains et trois chambres, dont une chambre des maîtres disposant d’une énorme penderie.
Avec 947 pieds carrés de surface habitable, le rez-de-chaussée compte un vestibule ouvert, une salle d'eau avec espace pour la laveuse et la sécheuse, un salon avec foyer en coin, une salle à manger, et une grande cuisine avec de vastes surfaces de travail et un coin repas ouvert sur deux étages. Un garage double de 262 pieds carrés avec accès à l’intérieur et à l’extérieur vient compléter le tout.
L'étage de 939 pieds carrés comprend une salle de bains et trois chambres, dont une chambre des maîtres disposant d’une énorme penderie.
Caractéristiques
Mesures : Impérial| Style d'architecture | Manoir |
Coût de construction
Montant approximatif équivalent à celui d'un entrepreneur général (région de la Rive-Sud de Montréal) pour une construction clé en main sans terrain ni infrastructures.
|
388256 $ |
|---|---|---|---|
| Façade | 39 pi | Surface habitable totale | 1886 pi² |
| Profondeur | 37 pi 8 po | Nombre de salles de bain | 1 |
| Hauteur | 34 pi 4 po | Nombre de chambres | 3 |
| Chambre des maîtres | Penderie | Chambre des maîtres - commentaires | Beaucoup de fenestration dans la chambre des maîtres Grande penderie dans la chambre des maîtres |
| Surface rez-de-chaussée | 947 pi² | Finition extérieure | Aluminium + Brique |
| Surface étage | 939 pi² | Type de cuisine | Coin repas + Salle à manger |
| Surface garage | 262 pi² | Garage | 1 |
| Mur garage | 8 pi | Mur rez-de-chaussée | 8 pi |
| Mur étage | 8 pi | Inclinaison toit avant/arrière | 8/12 |
| Inclinaison toit gauche/droite | 10/12 |
| Style d'architecture | Manoir |
|---|---|
|
Coût de construction
Montant approximatif équivalent à celui d'un entrepreneur général (région de la Rive-Sud de Montréal) pour une construction clé en main sans terrain ni infrastructures.
|
388256 $ |
| Façade | 39 pi |
| Surface habitable totale | 1886 pi² |
| Profondeur | 37 pi 8 po |
| Nombre de salles de bain | 1 |
| Hauteur | 34 pi 4 po |
| Nombre de chambres | 3 |
| Chambre des maîtres | Penderie |
| Chambre des maîtres - commentaires | Beaucoup de fenestration dans la chambre des maîtres Grande penderie dans la chambre des maîtres |
| Surface rez-de-chaussée | 947 pi² |
| Finition extérieure | Aluminium + Brique |
| Surface étage | 939 pi² |
| Type de cuisine | Coin repas + Salle à manger |
| Surface garage | 262 pi² |
| Garage | 1 |
| Mur garage | 8 pi |
| Mur rez-de-chaussée | 8 pi |
| Mur étage | 8 pi |
| Inclinaison toit avant/arrière | 8/12 |
| Inclinaison toit gauche/droite | 10/12 |