Description
Cette élégante maison à étage avec revêtement de briques mesure 39 pieds de largeur sur 38 pieds 4 pouces de profondeur, possède un garage de 336 pieds carrés pouvant loger une voiture, et offre une surface habitable de 1 865 pieds carrés.
Avec une surface habitable de 900 pieds carrés, le rez-de-chaussée compte un vestibule fermé disposant de plusieurs espaces de rangement, un vaste salon et une salle à manger à aire ouverte, une cuisine fonctionnelle, une salle de lavage ainsi qu’une salle d’eau.
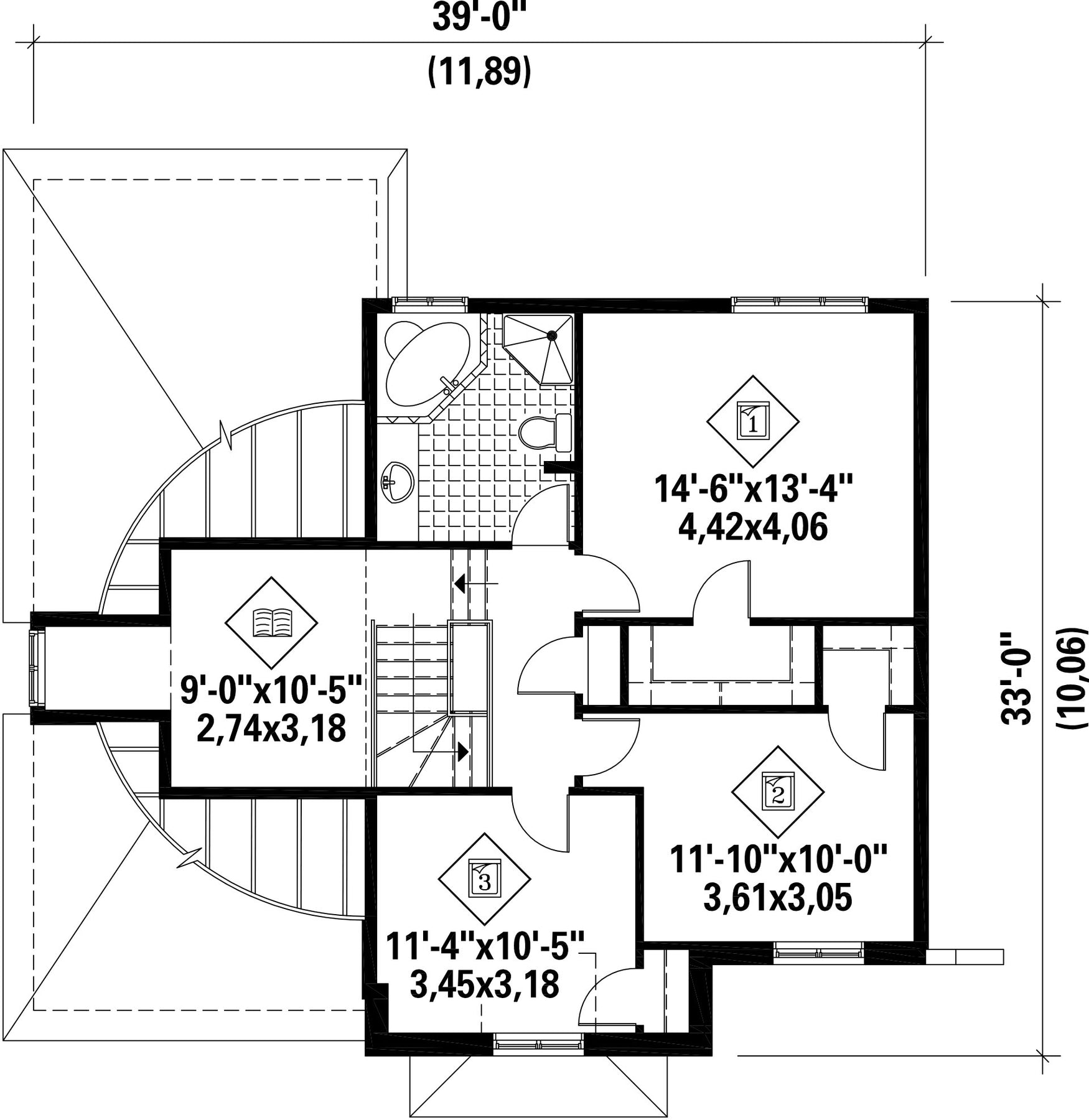
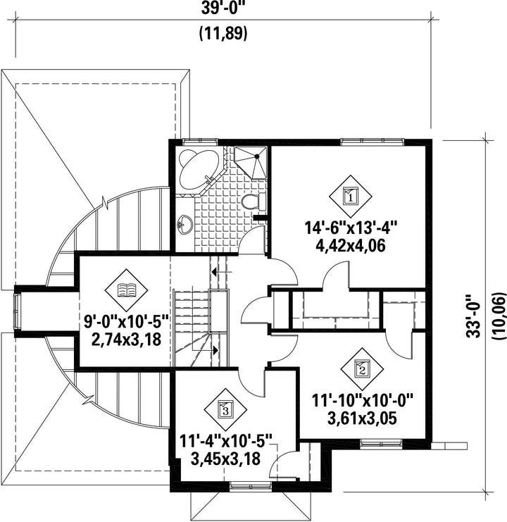
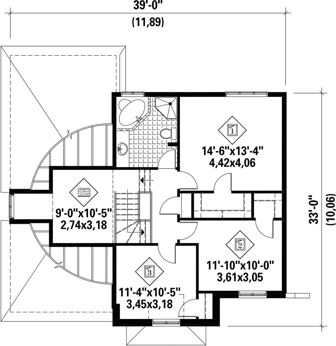
L’étage de 854 pieds carrés comprend une salle de bains et trois chambres, dont une chambre principale pourvue d’une grande penderie.
Avec une surface habitable de 900 pieds carrés, le rez-de-chaussée compte un vestibule fermé disposant de plusieurs espaces de rangement, un vaste salon et une salle à manger à aire ouverte, une cuisine fonctionnelle, une salle de lavage ainsi qu’une salle d’eau.
L’étage de 854 pieds carrés comprend une salle de bains et trois chambres, dont une chambre principale pourvue d’une grande penderie.
Caractéristiques
Mesures : Impérial| Style d'architecture | Manoir |
Coût de construction
Montant approximatif équivalent à celui d'un entrepreneur général (région de la Rive-Sud de Montréal) pour une construction clé en main sans terrain ni infrastructures.
|
381692 $ |
|---|---|---|---|
| Façade | 39 pi | Surface habitable totale | 1865 pi² |
| Profondeur | 38 pi 4 po | Nombre de salles de bain | 1 |
| Hauteur | 30 pi 7 po | Nombre de chambres | 3 |
| Chambre des maîtres | Penderie | Chambre des maîtres - commentaires | Grande penderie dans la chambre des maîtres |
| Surface rez-de-chaussée | 965 pi² | Finition extérieure | Aluminium + Brique |
| Surface étage | 900 pi² | ||
| Surface garage | 336 pi² | Garage | 1 |
| Mur garage | 8 pi | Mur rez-de-chaussée | 8 pi |
| Mur étage | 8 pi | Inclinaison toit avant/arrière | 8/12 |
| Inclinaison toit gauche/droite | 12/12 |
| Style d'architecture | Manoir |
|---|---|
|
Coût de construction
Montant approximatif équivalent à celui d'un entrepreneur général (région de la Rive-Sud de Montréal) pour une construction clé en main sans terrain ni infrastructures.
|
381692 $ |
| Façade | 39 pi |
| Surface habitable totale | 1865 pi² |
| Profondeur | 38 pi 4 po |
| Nombre de salles de bain | 1 |
| Hauteur | 30 pi 7 po |
| Nombre de chambres | 3 |
| Chambre des maîtres | Penderie |
| Chambre des maîtres - commentaires | Grande penderie dans la chambre des maîtres |
| Surface rez-de-chaussée | 965 pi² |
| Finition extérieure | Aluminium + Brique |
| Surface étage | 900 pi² |
| Surface garage | 336 pi² |
| Garage | 1 |
| Mur garage | 8 pi |
| Mur rez-de-chaussée | 8 pi |
| Mur étage | 8 pi |
| Inclinaison toit avant/arrière | 8/12 |
| Inclinaison toit gauche/droite | 12/12 |