CCL00033B
CCL00033B
CCL00033B
CCL00033B

CCL00033B


Jeux de plans - Sets of plans
Prix régulier$1,440.00
/

Ce site est protégé par hCaptcha, et la Politique de confidentialité et les Conditions de service de hCaptcha s’appliquent.

Description

"Vestibule à demi-fermé Escalier central Salle d'eau au rez-de-chaussée"

Caractéristiques

Mesures : Impérial

Style d'architecture Manoir Coût de construction 
Montant approximatif équivalent à celui d'un entrepreneur général (région de la Rive-Sud de Montréal) pour une construction clé en main sans terrain ni infrastructures.
273117 $
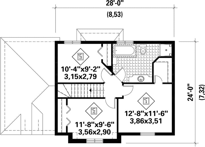
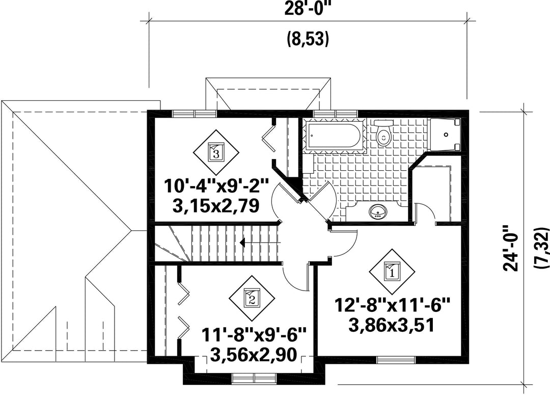
Façade 40 pi Surface habitable totale 1300 pi²
Profondeur 26 piNombre de salles de bain 1
Hauteur 31 pi 5 poNombre de chambres 3
Chambre des maîtres Penderie Chambre des maîtres - commentaires "Chambre donnant sur la façade avant Grande penderie"
Surface rez-de-chaussée 659 pi² Finition extérieure Agrégats + Aluminium + Brique
Surface étage 641 pi² Type de cuisine Coin repas + Forme en U + Salle à manger
Surface garage 252 pi² Garage 1
Mur garage 8 piMur rez-de-chaussée 8 pi
Mur étage 8 piInclinaison toit avant/arrière 13/12
Inclinaison toit gauche/droite 13/12
Style d'architecture Manoir
Coût de construction 
Montant approximatif équivalent à celui d'un entrepreneur général (région de la Rive-Sud de Montréal) pour une construction clé en main sans terrain ni infrastructures.
273117 $
Façade 40 pi
Surface habitable totale 1300 pi²
Profondeur 26 pi
Nombre de salles de bain 1
Hauteur 31 pi 5 po
Nombre de chambres 3
Chambre des maîtres Penderie
Chambre des maîtres - commentaires "Chambre donnant sur la façade avant Grande penderie"
Surface rez-de-chaussée 659 pi²
Finition extérieure Agrégats + Aluminium + Brique
Surface étage 641 pi²
Type de cuisine Coin repas + Forme en U + Salle à manger
Surface garage 252 pi²
Garage 1
Mur garage 8 pi
Mur rez-de-chaussée 8 pi
Mur étage 8 pi
Inclinaison toit avant/arrière 13/12
Inclinaison toit gauche/droite 13/12

Ces plans de maison pourraient également vous intéresser


Vu récemment