Description
D'une superficie habitable de 2 079 pieds carrés, cette élégante maison à étage de 50 pieds de largeur sur 36 pieds 6 pouces de profondeur se démarque par sa façade de pierres, son élégance et son abondante fenestration.
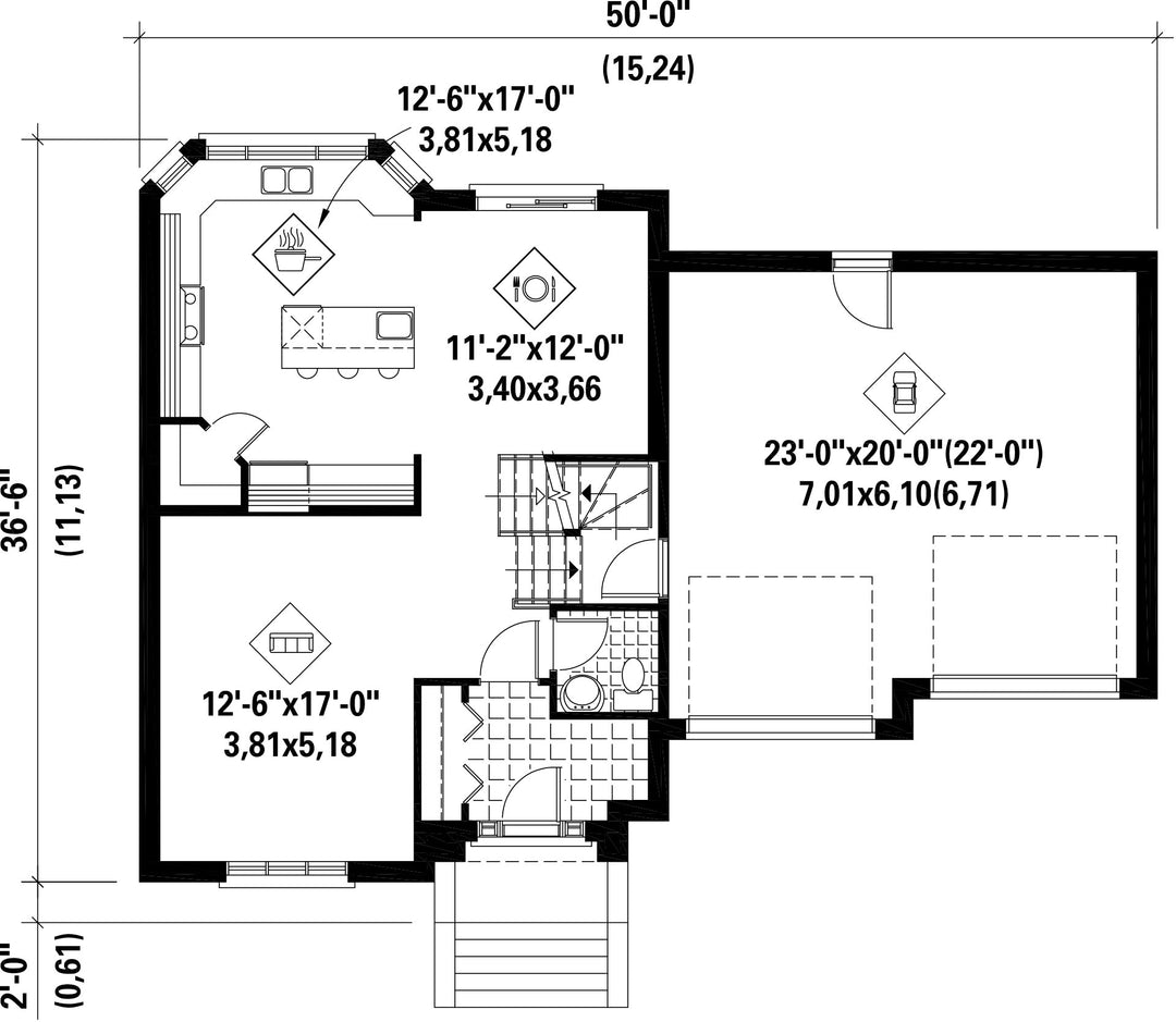
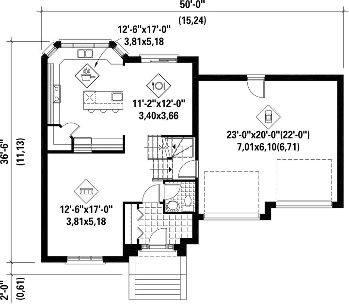
Le rez-de-chaussée de 892 pieds carrés comprend un vestibule fermé, un salon, une petite salle d'eau, une cuisine aux nombreuses fenêtres disposant d’un ilot et d’un garde-manger en coin, une salle à manger, ainsi qu'un garage de 552 pieds carrés pouvant loger deux voitures.
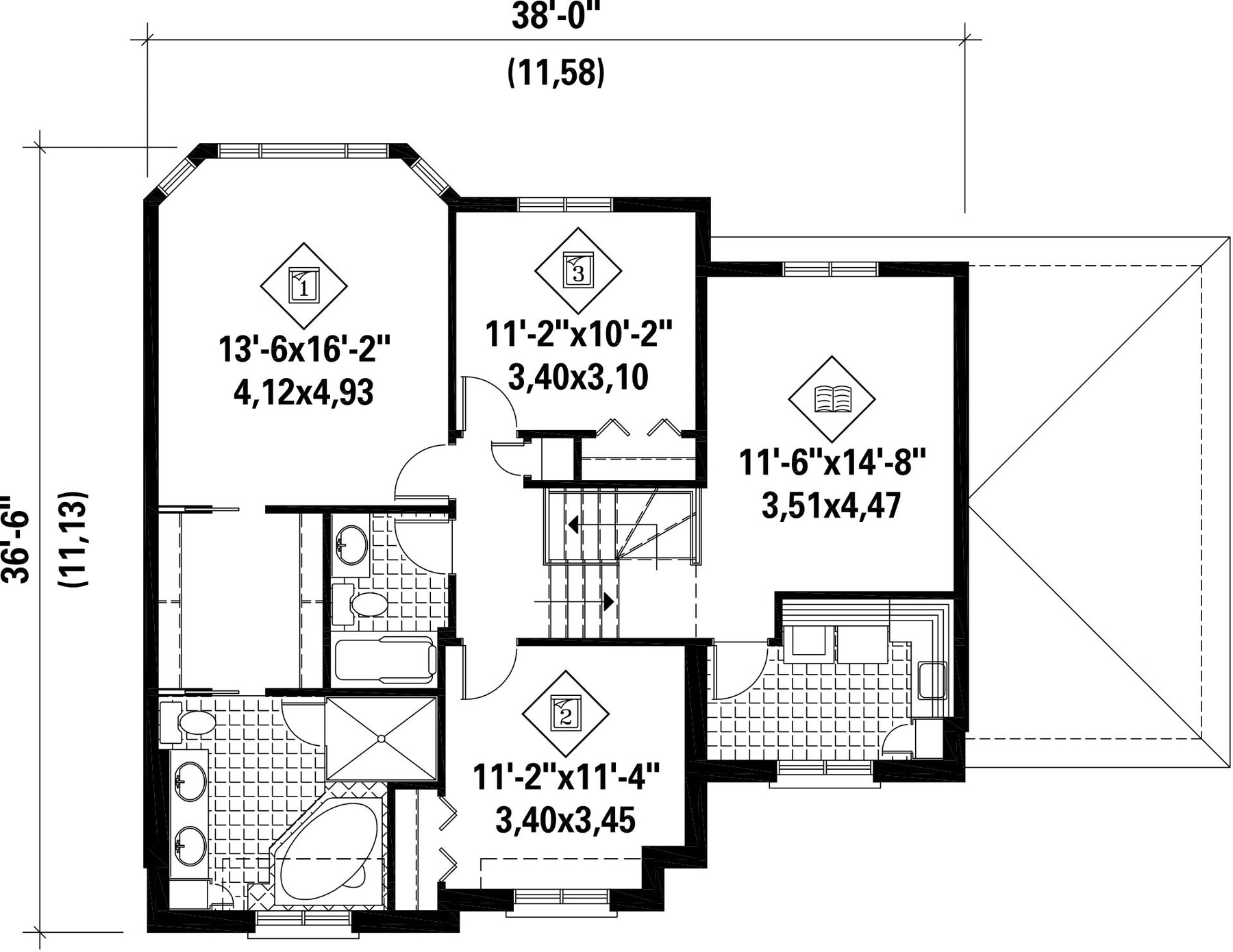
L'étage de 1 187 pieds carrés compte une salle de lavage et une salle de lecture au-dessus du garage, une salle de bains familiale avec un puits de lumière, ainsi que trois chambres, dont une grande chambre principale une salle de bains privée accessible par la penderie.
Le rez-de-chaussée de 892 pieds carrés comprend un vestibule fermé, un salon, une petite salle d'eau, une cuisine aux nombreuses fenêtres disposant d’un ilot et d’un garde-manger en coin, une salle à manger, ainsi qu'un garage de 552 pieds carrés pouvant loger deux voitures.
L'étage de 1 187 pieds carrés compte une salle de lavage et une salle de lecture au-dessus du garage, une salle de bains familiale avec un puits de lumière, ainsi que trois chambres, dont une grande chambre principale une salle de bains privée accessible par la penderie.
Caractéristiques
Mesures : Impérial| Style d'architecture | Manoir |
Coût de construction
Montant approximatif équivalent à celui d'un entrepreneur général (région de la Rive-Sud de Montréal) pour une construction clé en main sans terrain ni infrastructures.
|
483307 $ |
|---|---|---|---|
| Façade | 50 pi | Surface habitable totale | 2079 pi² |
| Profondeur | 36 pi 6 po | Nombre de salles de bain | 2 |
| Hauteur | 36 pi 4 po | Nombre de chambres | 3 |
| Chambre des maîtres | Bain podium + Douche + Lavabo double + Penderie + Toilettes | Chambre des maîtres - commentaires | Salle de bain des maîtres accessible par la penderie |
| Surface rez-de-chaussée | 892 pi² | Finition extérieure | Aluminium + Pierre |
| Surface étage | 1187 pi² | Type de cuisine | Comptoir repas + Îlot |
| Surface garage | 552 pi² | Garage | 2 |
| Mur garage | 8 pi | Mur rez-de-chaussée | 8 pi |
| Mur étage | 8 pi | Inclinaison toit avant/arrière | 12/12 |
| Inclinaison toit gauche/droite | 12/12 |
| Style d'architecture | Manoir |
|---|---|
|
Coût de construction
Montant approximatif équivalent à celui d'un entrepreneur général (région de la Rive-Sud de Montréal) pour une construction clé en main sans terrain ni infrastructures.
|
483307 $ |
| Façade | 50 pi |
| Surface habitable totale | 2079 pi² |
| Profondeur | 36 pi 6 po |
| Nombre de salles de bain | 2 |
| Hauteur | 36 pi 4 po |
| Nombre de chambres | 3 |
| Chambre des maîtres | Bain podium + Douche + Lavabo double + Penderie + Toilettes |
| Chambre des maîtres - commentaires | Salle de bain des maîtres accessible par la penderie |
| Surface rez-de-chaussée | 892 pi² |
| Finition extérieure | Aluminium + Pierre |
| Surface étage | 1187 pi² |
| Type de cuisine | Comptoir repas + Îlot |
| Surface garage | 552 pi² |
| Garage | 2 |
| Mur garage | 8 pi |
| Mur rez-de-chaussée | 8 pi |
| Mur étage | 8 pi |
| Inclinaison toit avant/arrière | 12/12 |
| Inclinaison toit gauche/droite | 12/12 |