Description
Cette imposante maison à étage est entièrement recouverte de pierres ornées de moulures décoratives en agrégat et possède une jolie tourelle sur le devant. Elle mesure 54 pieds de largeur sur 51 pieds de profondeur et offre une surface habitable de 3 131 pieds carrés.
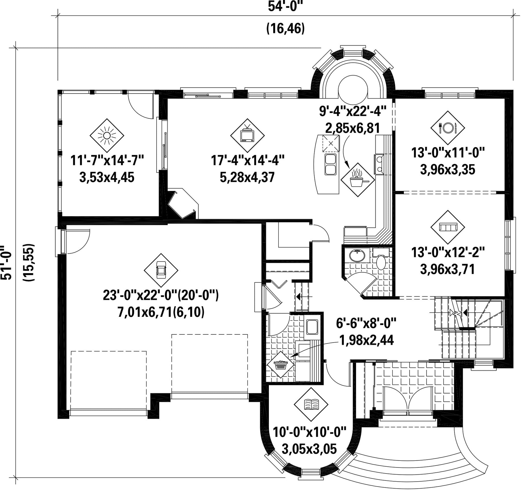
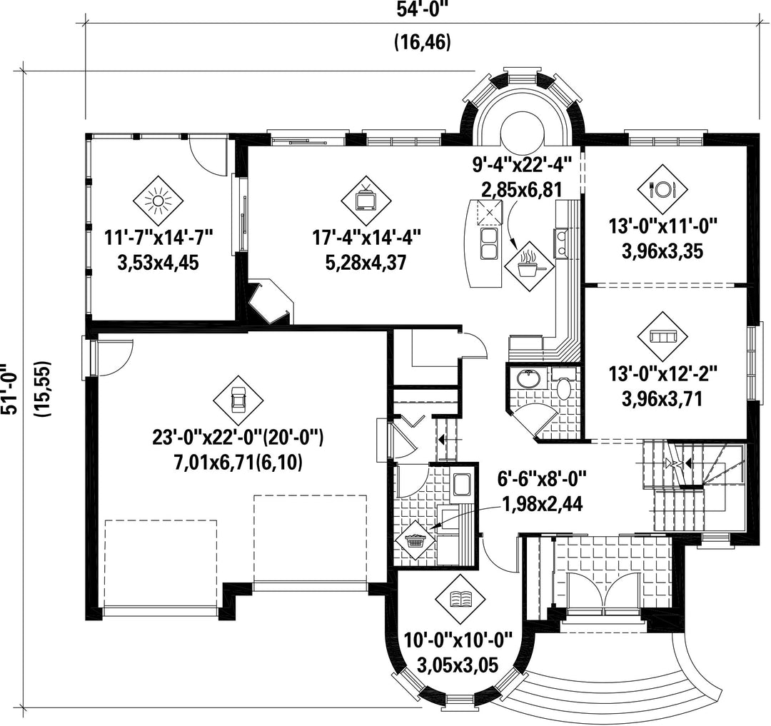
Le rez-de-chaussée occupe 1 434 pieds carrés et compte une salle de lecture, un salon, une salle à manger, une salle familiale avec foyer en coin, une salle d’eau, une salle de lavage, une vaste cuisine en L avec un îlot et un coin-repas situé dans la tourelle arrière, ainsi qu’un garage double de 546 pieds carrés.
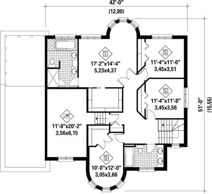
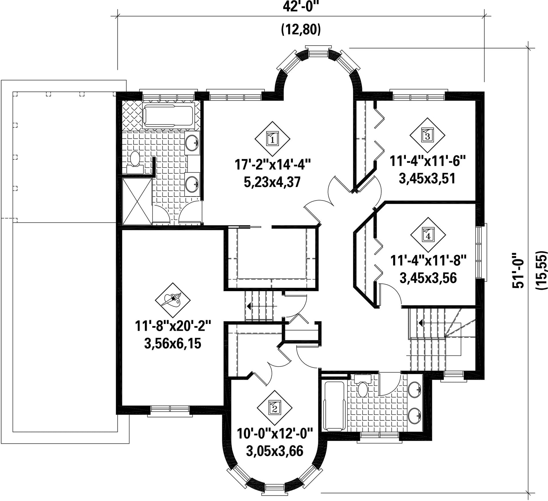
L’étage possède une superficie de 1 697 pieds carrés et comprend une salle de bains familiale, une pièce pouvant servir de salle familiale située au-dessus du garage, ainsi que quatre chambres dont une grande chambre principale qui dispose d’une salle de bains privée et d’une immense penderie.
Le rez-de-chaussée occupe 1 434 pieds carrés et compte une salle de lecture, un salon, une salle à manger, une salle familiale avec foyer en coin, une salle d’eau, une salle de lavage, une vaste cuisine en L avec un îlot et un coin-repas situé dans la tourelle arrière, ainsi qu’un garage double de 546 pieds carrés.
L’étage possède une superficie de 1 697 pieds carrés et comprend une salle de bains familiale, une pièce pouvant servir de salle familiale située au-dessus du garage, ainsi que quatre chambres dont une grande chambre principale qui dispose d’une salle de bains privée et d’une immense penderie.
Caractéristiques
Mesures : Impérial| Style d'architecture | Manoir |
Coût de construction
Montant approximatif équivalent à celui d'un entrepreneur général (région de la Rive-Sud de Montréal) pour une construction clé en main sans terrain ni infrastructures.
|
705727 $ |
|---|---|---|---|
| Façade | 54 pi | Surface habitable totale | 3131 pi² |
| Profondeur | 51 pi | Nombre de salles de bain | 2 |
| Hauteur | 47 pi 1 po | Nombre de chambres | 4 |
| Chambre des maîtres | Baignoire + Douche + Lavabo double + Penderie + Portes doubles + Toilettes | Chambre des maîtres - commentaires | Grande chambre des maîtres avec tourelle |
| Surface rez-de-chaussée | 1434 pi² | Finition extérieure | Agrégats + Pierre |
| Surface étage | 1697 pi² | Type de cuisine | Coin repas + Forme en L + Salle à manger + Îlot |
| Surface garage | 546 pi² | Garage | 2 |
| Mur garage | 8 pi | Mur rez-de-chaussée | 9 pi |
| Mur étage | 8 pi | Inclinaison toit avant/arrière | 16/12 |
| Inclinaison toit gauche/droite | 16/12 |
| Style d'architecture | Manoir |
|---|---|
|
Coût de construction
Montant approximatif équivalent à celui d'un entrepreneur général (région de la Rive-Sud de Montréal) pour une construction clé en main sans terrain ni infrastructures.
|
705727 $ |
| Façade | 54 pi |
| Surface habitable totale | 3131 pi² |
| Profondeur | 51 pi |
| Nombre de salles de bain | 2 |
| Hauteur | 47 pi 1 po |
| Nombre de chambres | 4 |
| Chambre des maîtres | Baignoire + Douche + Lavabo double + Penderie + Portes doubles + Toilettes |
| Chambre des maîtres - commentaires | Grande chambre des maîtres avec tourelle |
| Surface rez-de-chaussée | 1434 pi² |
| Finition extérieure | Agrégats + Pierre |
| Surface étage | 1697 pi² |
| Type de cuisine | Coin repas + Forme en L + Salle à manger + Îlot |
| Surface garage | 546 pi² |
| Garage | 2 |
| Mur garage | 8 pi |
| Mur rez-de-chaussée | 9 pi |
| Mur étage | 8 pi |
| Inclinaison toit avant/arrière | 16/12 |
| Inclinaison toit gauche/droite | 16/12 |