20667
20667
20667
20667
20667
20667

20667


Jeux de plans - Sets of plans
Prix régulier$1,640.00
/

Ce site est protégé par hCaptcha, et la Politique de confidentialité et les Conditions de service de hCaptcha s’appliquent.

Description

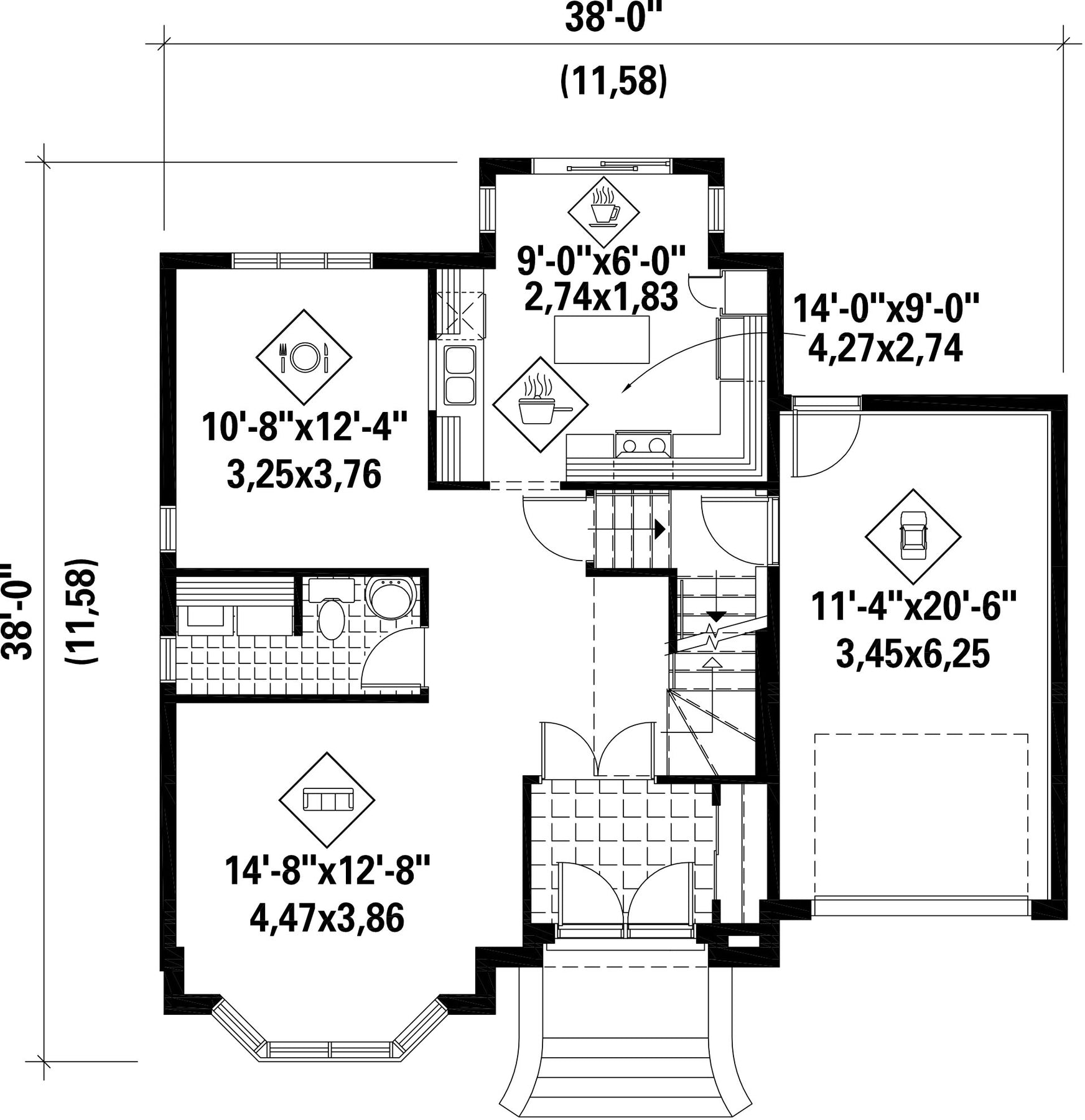
Séjour au-dessus du garage

Caractéristiques

Mesures : Impérial

Style d'architecture Manoir Coût de construction 
Montant approximatif équivalent à celui d'un entrepreneur général (région de la Rive-Sud de Montréal) pour une construction clé en main sans terrain ni infrastructures.
394827 $
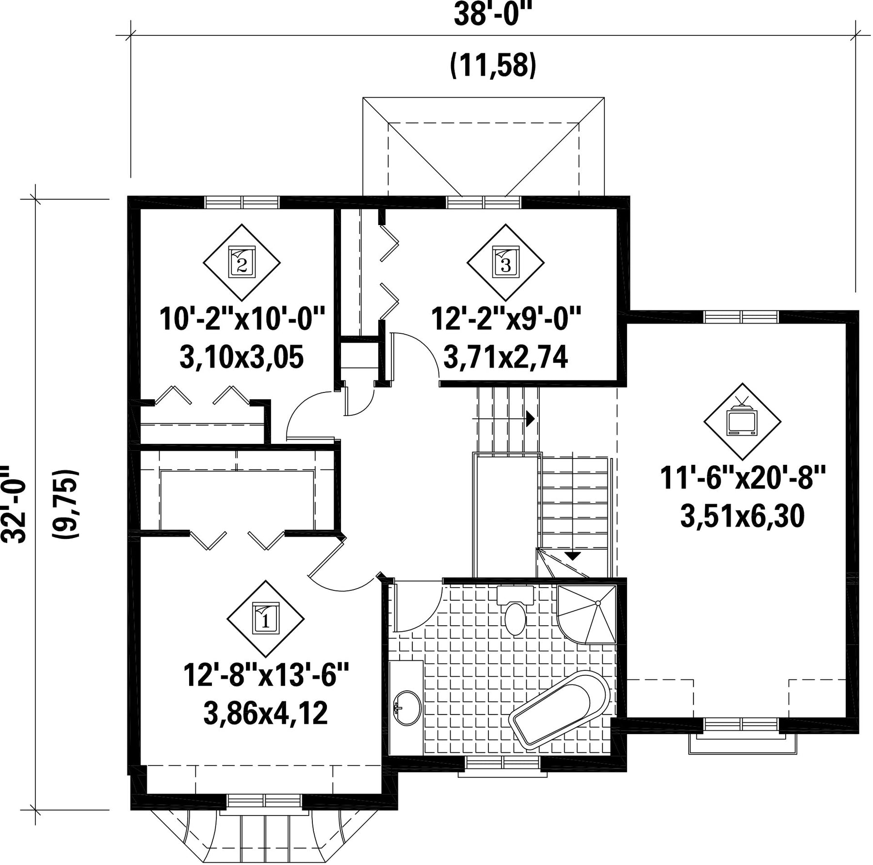
Façade 38 pi Surface habitable totale 1929 pi²
Profondeur 36 piNombre de salles de bain 1
Hauteur 38 pi 10 poNombre de chambres 3
Chambre des maîtres Penderie Chambre des maîtres - commentaires Chambre des maîtres avec penderie
Surface rez-de-chaussée 857 pi² Finition extérieure Agrégats + Brique
Surface étage 1072 pi² Type de cuisine Coin repas + Salle à manger + Îlot
Surface garage 264 pi² Garage 1
Mur garage 8 piMur rez-de-chaussée 9 pi
Mur étage 8 piInclinaison toit avant/arrière 12/12
Inclinaison toit gauche/droite 14/12
Style d'architecture Manoir
Coût de construction 
Montant approximatif équivalent à celui d'un entrepreneur général (région de la Rive-Sud de Montréal) pour une construction clé en main sans terrain ni infrastructures.
394827 $
Façade 38 pi
Surface habitable totale 1929 pi²
Profondeur 36 pi
Nombre de salles de bain 1
Hauteur 38 pi 10 po
Nombre de chambres 3
Chambre des maîtres Penderie
Chambre des maîtres - commentaires Chambre des maîtres avec penderie
Surface rez-de-chaussée 857 pi²
Finition extérieure Agrégats + Brique
Surface étage 1072 pi²
Type de cuisine Coin repas + Salle à manger + Îlot
Surface garage 264 pi²
Garage 1
Mur garage 8 pi
Mur rez-de-chaussée 9 pi
Mur étage 8 pi
Inclinaison toit avant/arrière 12/12
Inclinaison toit gauche/droite 14/12

Ces plans de maison pourraient également vous intéresser


Vu récemment