Description
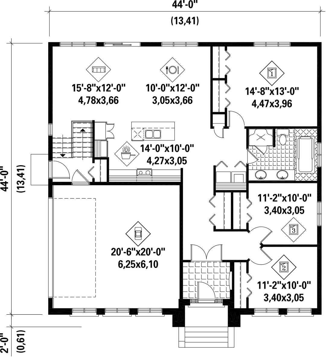
Cette prestigieuse résidence à la façade de pierres dispose d’une fenestration abondante et d’un imposant porche surplombant l’entrée. Elle mesure 44 pieds de largeur sur 44 pieds de profondeur et offre une surface habitable de 1 480 pieds carrés.
Cette maison de plain pied comporte un vestibule fermé, une cuisine avec îlot, une salle à manger et un salon à aire ouverte, un grand placard pour la laveuse et la sécheuse, une salle de bains, et trois chambres. Un garage double occupant une superficie de 446 pieds carrés vient compléter le tout.
Cette maison de plain pied comporte un vestibule fermé, une cuisine avec îlot, une salle à manger et un salon à aire ouverte, un grand placard pour la laveuse et la sécheuse, une salle de bains, et trois chambres. Un garage double occupant une superficie de 446 pieds carrés vient compléter le tout.
Caractéristiques
Mesures : Impérial| Style d'architecture | Manoir |
Coût de construction
Montant approximatif équivalent à celui d'un entrepreneur général (région de la Rive-Sud de Montréal) pour une construction clé en main sans terrain ni infrastructures.
|
400356 $ |
|---|---|---|---|
| Façade | 44 pi | Surface habitable totale | 1480 pi² |
| Profondeur | 44 pi | Nombre de salles de bain | 1 |
| Hauteur | 27 pi 1 po | Nombre de chambres | 3 |
| Chambre des maîtres - commentaires | 2 garde-robes dans la chambre des maîtres | ||
| Surface rez-de-chaussée | 1480 pi² | Finition extérieure | Agrégats + Aluminium + Pierre |
| Type de cuisine | Comptoir repas + Îlot | ||
| Surface garage | 446 pi² | Garage | 2 |
| Mur garage | 8 pi | Mur rez-de-chaussée | 8 pi |
| Inclinaison toit avant/arrière | 8/12 | ||
| Inclinaison toit gauche/droite | 12/12 |
| Style d'architecture | Manoir |
|---|---|
|
Coût de construction
Montant approximatif équivalent à celui d'un entrepreneur général (région de la Rive-Sud de Montréal) pour une construction clé en main sans terrain ni infrastructures.
|
400356 $ |
| Façade | 44 pi |
| Surface habitable totale | 1480 pi² |
| Profondeur | 44 pi |
| Nombre de salles de bain | 1 |
| Hauteur | 27 pi 1 po |
| Nombre de chambres | 3 |
| Chambre des maîtres - commentaires | 2 garde-robes dans la chambre des maîtres |
| Surface rez-de-chaussée | 1480 pi² |
| Finition extérieure | Agrégats + Aluminium + Pierre |
| Type de cuisine | Comptoir repas + Îlot |
| Surface garage | 446 pi² |
| Garage | 2 |
| Mur garage | 8 pi |
| Mur rez-de-chaussée | 8 pi |
| Inclinaison toit avant/arrière | 8/12 |
| Inclinaison toit gauche/droite | 12/12 |