Description
Cette maison à deux étages de style urbain possède des caractéristiques uniques, autant à l’intérieur qu’à l’extérieur. Elle mesure 33 pieds 10 pouces de largeur sur 33 pieds de profondeur et possède une surface habitable de 1 581 pieds carrés. Elle dispose également d’un garage de 261 pieds carrés qui peut loger une voiture. Planimage propose également une autre version de ce plan, mais avec une toiture à versants. Il s’agit du plan 21224.
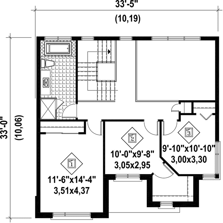
Le rez-de-chaussée à aire ouverte occupe une surface de 741 pieds carrés et les plafonds sont à neuf pieds de hauteur. Il comprend un salon ouvert sur le deuxième étage séparé de la salle à manger par un foyer à trois faces, ainsi qu’une cuisine laboratoire avec un grand ilot pouvant recevoir quatre personnes. La salle d’eau et la salle de lavage sont situées sur le palier du garage.
L’étage occupe 840 pieds carrés et comporte trois chambres et une salle de bains. Sa mezzanine surplombe le salon.
Le rez-de-chaussée à aire ouverte occupe une surface de 741 pieds carrés et les plafonds sont à neuf pieds de hauteur. Il comprend un salon ouvert sur le deuxième étage séparé de la salle à manger par un foyer à trois faces, ainsi qu’une cuisine laboratoire avec un grand ilot pouvant recevoir quatre personnes. La salle d’eau et la salle de lavage sont situées sur le palier du garage.
L’étage occupe 840 pieds carrés et comporte trois chambres et une salle de bains. Sa mezzanine surplombe le salon.
Caractéristiques
Mesures : Impérial| Style d'architecture | Urbain |
Coût de construction
Montant approximatif équivalent à celui d'un entrepreneur général (région de la Rive-Sud de Montréal) pour une construction clé en main sans terrain ni infrastructures.
|
393506 $ |
|---|---|---|---|
| Façade | 33 pi 10 po | Surface habitable totale | 1581 pi² |
| Profondeur | 33 pi | Nombre de salles de bain | 1 |
| Hauteur | 26 pi 4 po | Nombre de chambres | 3 |
| Chambre des maîtres - commentaires | Salle de bain avec bain sur podium et douche séparée. Mezzannine à l'étage surplombant le salon. Pour une autre possibilité d'aménagement consulter le plan #21224 avec sa toiture à versants | ||
| Surface rez-de-chaussée | 741 pi² | Finition extérieure | Aluminium + Bois + Brique + Pierre |
| Surface étage | 840 pi² | Type de cuisine | Laboratoire + Îlot |
| Surface garage | 261 pi² | Garage | 1 |
| Mur garage | 8 pi | Mur rez-de-chaussée | 9 pi |
| Mur étage | 8 pi | Inclinaison toit avant/arrière | NA |
| Inclinaison toit gauche/droite | NA |
| Style d'architecture | Urbain |
|---|---|
|
Coût de construction
Montant approximatif équivalent à celui d'un entrepreneur général (région de la Rive-Sud de Montréal) pour une construction clé en main sans terrain ni infrastructures.
|
393506 $ |
| Façade | 33 pi 10 po |
| Surface habitable totale | 1581 pi² |
| Profondeur | 33 pi |
| Nombre de salles de bain | 1 |
| Hauteur | 26 pi 4 po |
| Nombre de chambres | 3 |
| Chambre des maîtres - commentaires | Salle de bain avec bain sur podium et douche séparée. Mezzannine à l'étage surplombant le salon. Pour une autre possibilité d'aménagement consulter le plan #21224 avec sa toiture à versants |
| Surface rez-de-chaussée | 741 pi² |
| Finition extérieure | Aluminium + Bois + Brique + Pierre |
| Surface étage | 840 pi² |
| Type de cuisine | Laboratoire + Îlot |
| Surface garage | 261 pi² |
| Garage | 1 |
| Mur garage | 8 pi |
| Mur rez-de-chaussée | 9 pi |
| Mur étage | 8 pi |
| Inclinaison toit avant/arrière | NA |
| Inclinaison toit gauche/droite | NA |