Description
Avec son joli porche et ses fenêtres d’inspiration moderne, cette maison à étage de dimension modeste est accueillante en plus d'être fonctionnelle. Ce modèle à étage peut être aménagé selon les gouts et les besoins des propriétaires. (Série Aménagements multiples)
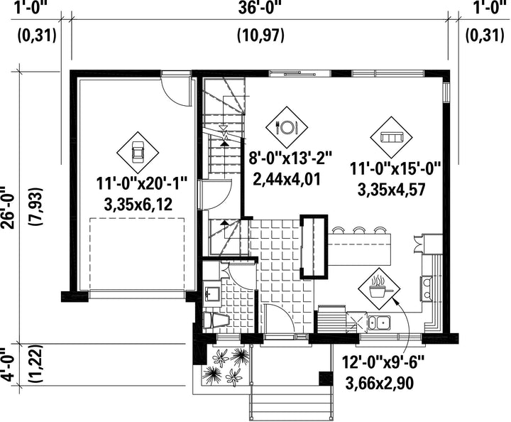
Le rez-de-chaussée à aire ouverte compte une cuisine avec un comptoir-lunch à l’avant, une salle à manger et un salon à l’arrière, ainsi qu’une salle d’eau avec un espace de rangement. Un garage simple de 264 pieds carrés complète le tout.
L'étage compte une salle familiale et une salle de lavage situées au-dessus du garage, une salle de bains avec baignoire autoportante et douche séparée, et peut comporter deux ou trois chambres, selon l’aménagement intérieur choisi.
Le rez-de-chaussée à aire ouverte compte une cuisine avec un comptoir-lunch à l’avant, une salle à manger et un salon à l’arrière, ainsi qu’une salle d’eau avec un espace de rangement. Un garage simple de 264 pieds carrés complète le tout.
L'étage compte une salle familiale et une salle de lavage situées au-dessus du garage, une salle de bains avec baignoire autoportante et douche séparée, et peut comporter deux ou trois chambres, selon l’aménagement intérieur choisi.
Caractéristiques
Mesures : Impérial| Style d'architecture | Urbain |
Coût de construction
Montant approximatif équivalent à celui d'un entrepreneur général (région de la Rive-Sud de Montréal) pour une construction clé en main sans terrain ni infrastructures.
|
333802 $ |
|---|---|---|---|
| Façade | 34 pi | Surface habitable totale | 1510 pi² |
| Profondeur | 26 pi | Nombre de salles de bain | 1 |
| Hauteur | 30 pi 5 po | Nombre de chambres | 2 |
| Chambre des maîtres | Penderie | ||
| Surface rez-de-chaussée | 625 pi² | Finition extérieure | Aluminium + Bois + Brique + Pierre |
| Surface étage | 885 pi² | Type de cuisine | Comptoir repas + Forme en L |
| Surface garage | 264 pi² | Garage | 1 |
| Mur garage | 8 pi | Mur rez-de-chaussée | 9 pi |
| Mur étage | 8 pi | Inclinaison toit avant/arrière | 6/12 |
| Inclinaison toit gauche/droite | 8/12 |
| Style d'architecture | Urbain |
|---|---|
|
Coût de construction
Montant approximatif équivalent à celui d'un entrepreneur général (région de la Rive-Sud de Montréal) pour une construction clé en main sans terrain ni infrastructures.
|
333802 $ |
| Façade | 34 pi |
| Surface habitable totale | 1510 pi² |
| Profondeur | 26 pi |
| Nombre de salles de bain | 1 |
| Hauteur | 30 pi 5 po |
| Nombre de chambres | 2 |
| Chambre des maîtres | Penderie |
| Surface rez-de-chaussée | 625 pi² |
| Finition extérieure | Aluminium + Bois + Brique + Pierre |
| Surface étage | 885 pi² |
| Type de cuisine | Comptoir repas + Forme en L |
| Surface garage | 264 pi² |
| Garage | 1 |
| Mur garage | 8 pi |
| Mur rez-de-chaussée | 9 pi |
| Mur étage | 8 pi |
| Inclinaison toit avant/arrière | 6/12 |
| Inclinaison toit gauche/droite | 8/12 |