26244
26244
26244
26244

Ce plan est offert en plusieurs variations. Vous pouvez consulter les variations en choissant un numéro de plan dans le menu ci-dessous. Les plans techniques dans les images ainsi que le tableau des caractéristiques et dimensions se mettront automatiquement à jour.


Jeux de plans - Sets of plans
Prix régulier$1,240.00
/

Ce site est protégé par hCaptcha, et la Politique de confidentialité et les Conditions de service de hCaptcha s’appliquent.

Description

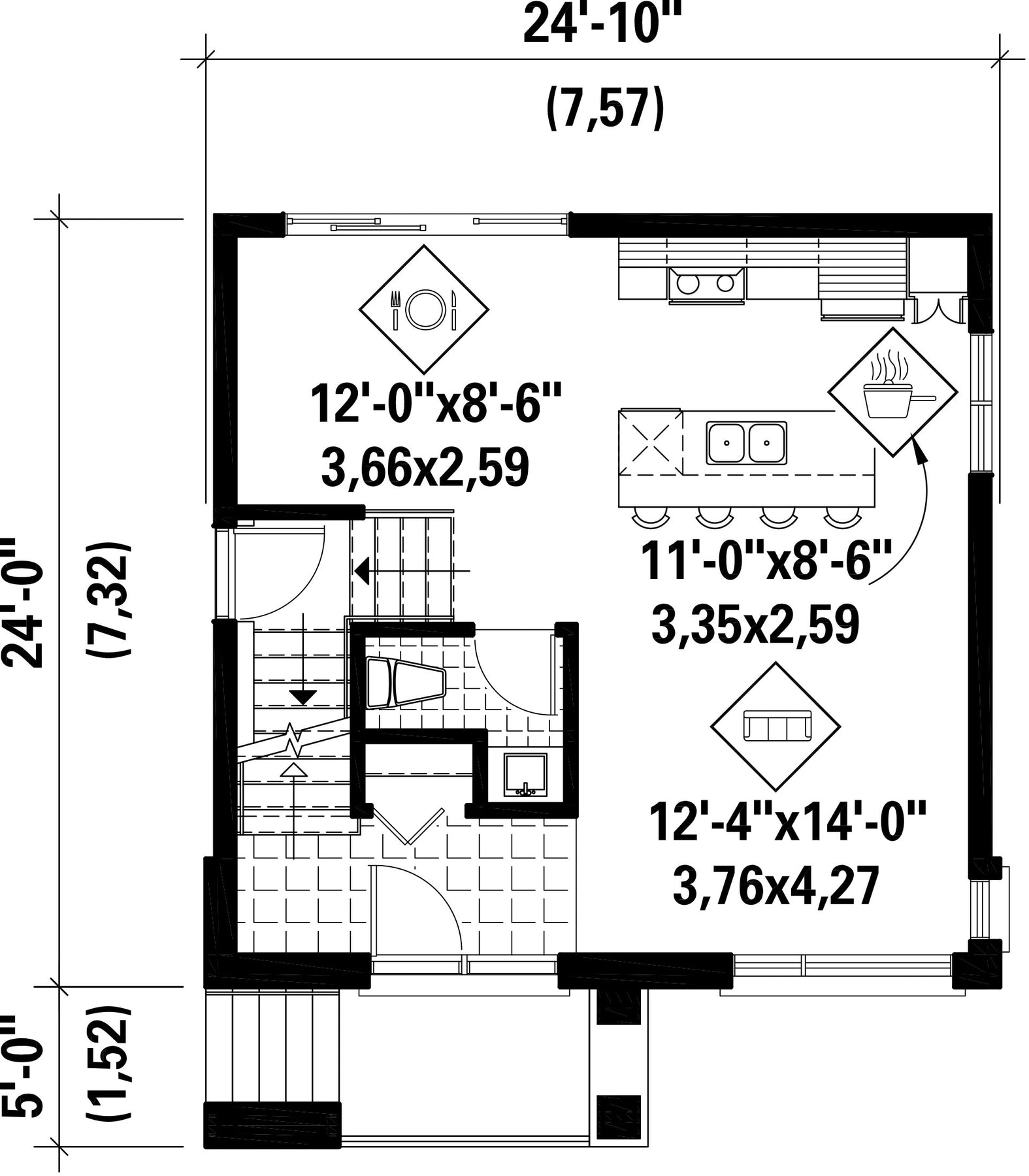
Le mariage de la pierre, de la brique, du bois et de l’aluminium de cette jolie maison à étage est une réussite. De dimension modeste, la demeure possède un rez-de-chaussée à aire ouverte qui peut être aménagé selon les gouts et les besoins des propriétaires. (Série Aménagements multiples)
Le rez-de-chaussée comprend une cuisine avec ilot, une salle à manger, un salon, une salle d’eau ainsi qu’une porte extérieure sur le côté.
L'étage peut comporter deux ou trois chambres, selon le plan intérieur choisi, ainsi qu’une salle de bains avec une baignoire autoportante et une douche séparée.

Caractéristiques

Mesures : Impérial

Style d'architecture Urbain Coût de construction 
Montant approximatif équivalent à celui d'un entrepreneur général (région de la Rive-Sud de Montréal) pour une construction clé en main sans terrain ni infrastructures.
245123 $
Façade 24 pi 10 po Surface habitable totale 1155 pi²
Profondeur 24 piNombre de salles de bain 1
Hauteur 27 pi 9 poNombre de chambres 3
Surface rez-de-chaussée 580 pi² Finition extérieure Aluminium + Bois + Brique + Pierre
Surface étage 575 pi² Type de cuisine Laboratoire + Îlot
Garage 0
Mur rez-de-chaussée 8 pi
Mur étage 8 piInclinaison toit avant/arrière 5/12
Inclinaison toit gauche/droite 6/12
Style d'architecture Urbain
Coût de construction 
Montant approximatif équivalent à celui d'un entrepreneur général (région de la Rive-Sud de Montréal) pour une construction clé en main sans terrain ni infrastructures.
245123 $
Façade 24 pi 10 po
Surface habitable totale 1155 pi²
Profondeur 24 pi
Nombre de salles de bain 1
Hauteur 27 pi 9 po
Nombre de chambres 3
Surface rez-de-chaussée 580 pi²
Finition extérieure Aluminium + Bois + Brique + Pierre
Surface étage 575 pi²
Type de cuisine Laboratoire + Îlot
Garage 0
Mur rez-de-chaussée 8 pi
Mur étage 8 pi
Inclinaison toit avant/arrière 5/12
Inclinaison toit gauche/droite 6/12

Ces plans de maison pourraient également vous intéresser


Vu récemment