Description
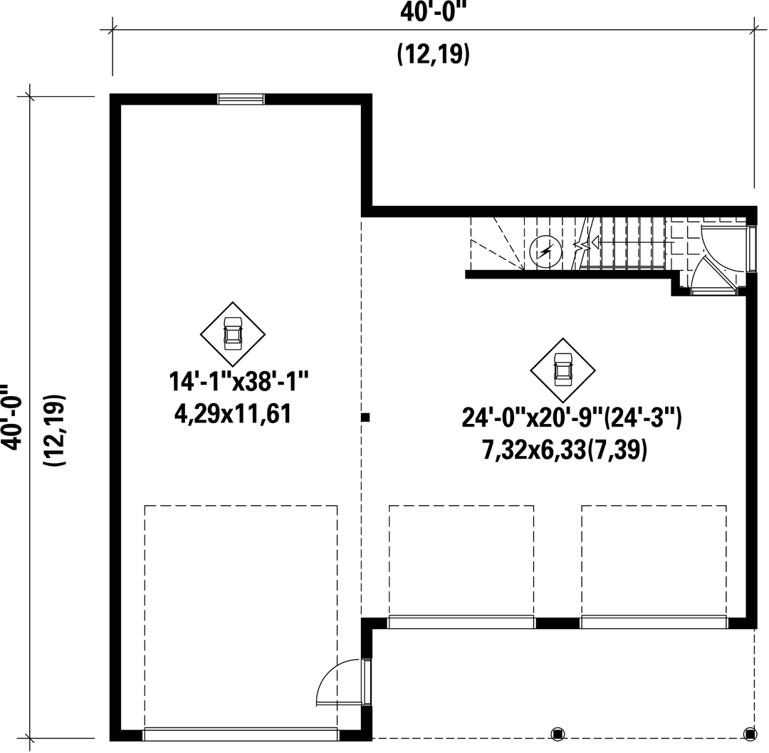
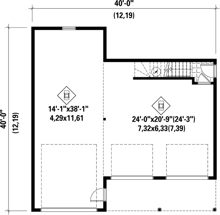
Doté d’une grande terrasse, ce magnifique garage loft à la fenestration abondante se distingue en vous permettant de remiser votre véhicule récréatif en plus de garer vos voitures. En effet, ce garage comprend une immense porte à l’avant pour accueillir votre VR, ainsi que deux autres portes de dimensions normales pour vos autres véhicules. Il y a une porte d'entrée sur le côté droit et une fenêtre à l’arrière.
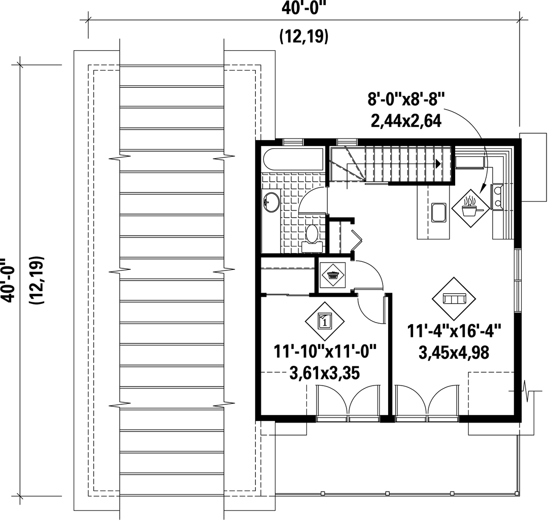
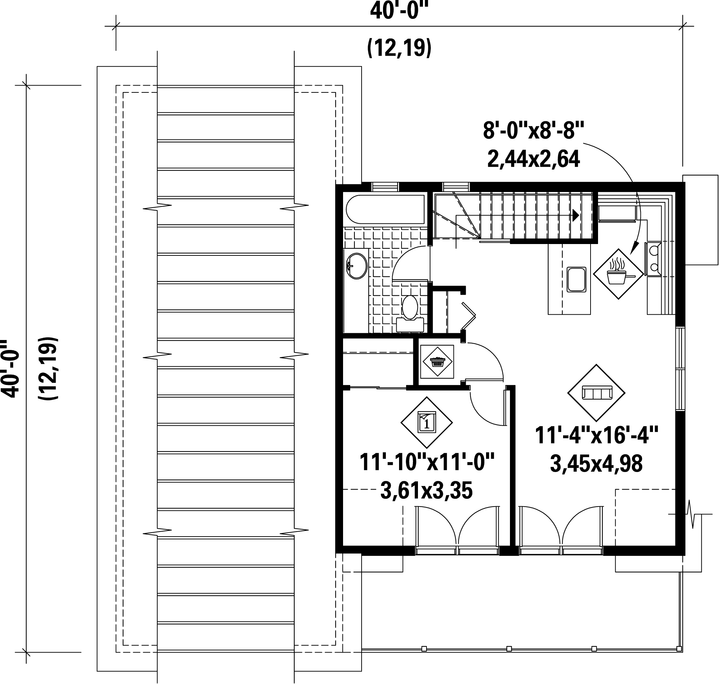
À l’étage, le loft comporte une salle de bains, une chambre avec accès à la terrasse, une cuisine avec comptoir repas, ainsi qu’un salon qui donne également sur la terrasse.
À l’étage, le loft comporte une salle de bains, une chambre avec accès à la terrasse, une cuisine avec comptoir repas, ainsi qu’un salon qui donne également sur la terrasse.
Caractéristiques
Mesures : Impérial| Style d'architecture | Champêtre |
Coût de construction
Montant approximatif équivalent à celui d'un entrepreneur général (région de la Rive-Sud de Montréal) pour une construction clé en main sans terrain ni infrastructures.
|
219269 $ |
|---|---|---|---|
| Façade | 40 pi | Surface habitable totale | 637 pi² |
| Profondeur | 40 pi | Nombre de salles de bain | 1 |
| Hauteur | 31 pi | Nombre de chambres | 1 |
| Finition extérieure | Aluminium | ||
| Surface étage | 637 pi² | Type de cuisine | Comptoir repas + Forme en U |
| Surface garage | 1264 pi² | Garage | 3 et plus |
| Mur garage | 8 pi | Mur rez-de-chaussée | 8 pi |
| Mur étage | 8 pi | Inclinaison toit avant/arrière | 12/12 |
| Inclinaison toit gauche/droite | 12/12 |
| Style d'architecture | Champêtre |
|---|---|
|
Coût de construction
Montant approximatif équivalent à celui d'un entrepreneur général (région de la Rive-Sud de Montréal) pour une construction clé en main sans terrain ni infrastructures.
|
219269 $ |
| Façade | 40 pi |
| Surface habitable totale | 637 pi² |
| Profondeur | 40 pi |
| Nombre de salles de bain | 1 |
| Hauteur | 31 pi |
| Nombre de chambres | 1 |
| Finition extérieure | Aluminium |
| Surface étage | 637 pi² |
| Type de cuisine | Comptoir repas + Forme en U |
| Surface garage | 1264 pi² |
| Garage | 3 et plus |
| Mur garage | 8 pi |
| Mur rez-de-chaussée | 8 pi |
| Mur étage | 8 pi |
| Inclinaison toit avant/arrière | 12/12 |
| Inclinaison toit gauche/droite | 12/12 |