Description
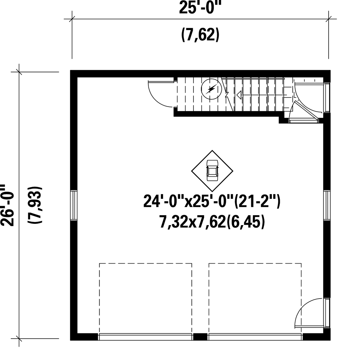
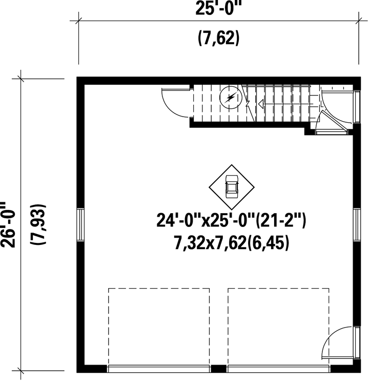
Recouvert d’un toit mansardé à pente raide, ce charmant garage loft peut loger deux voitures et a tout pour plaire ! Il comprend deux grandes portes à l’avant, une fenêtre de part et d’autre du bâtiment, ainsi que deux portes extérieures du côté droit.
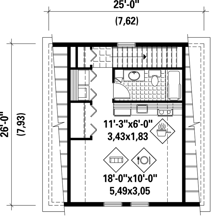
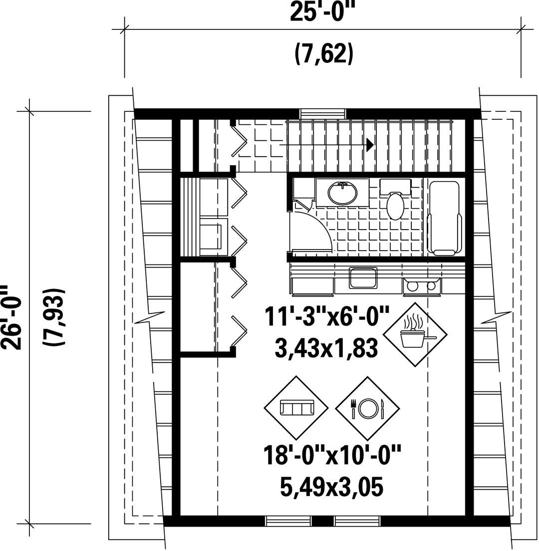
Le loft à l’étage comporte un espace pour la laveuse et la sécheuse, une chambre, une salle de bains, ainsi qu’un salon, une salle à manger et une cuisine à aire ouverte.
Le loft à l’étage comporte un espace pour la laveuse et la sécheuse, une chambre, une salle de bains, ainsi qu’un salon, une salle à manger et une cuisine à aire ouverte.
Caractéristiques
Mesures : Impérial| Style d'architecture | Champêtre |
Coût de construction
Montant approximatif équivalent à celui d'un entrepreneur général (région de la Rive-Sud de Montréal) pour une construction clé en main sans terrain ni infrastructures.
|
133847 $ |
|---|---|---|---|
| Façade | 25 pi | Surface habitable totale | 468 pi² |
| Profondeur | 26 pi | Nombre de salles de bain | 1 |
| Hauteur | 21 pi 4 po | Nombre de chambres | 0 |
| Finition extérieure | Aluminium | ||
| Surface étage | 468 pi² | Type de cuisine | Laboratoire |
| Surface garage | 650 pi² | Garage | 2 |
| Mur garage | 8 pi | Mur rez-de-chaussée | 8 pi |
| Mur étage | 8 pi | Inclinaison toit avant/arrière | na |
| Inclinaison toit gauche/droite | 20/12 |
| Style d'architecture | Champêtre |
|---|---|
|
Coût de construction
Montant approximatif équivalent à celui d'un entrepreneur général (région de la Rive-Sud de Montréal) pour une construction clé en main sans terrain ni infrastructures.
|
133847 $ |
| Façade | 25 pi |
| Surface habitable totale | 468 pi² |
| Profondeur | 26 pi |
| Nombre de salles de bain | 1 |
| Hauteur | 21 pi 4 po |
| Nombre de chambres | 0 |
| Finition extérieure | Aluminium |
| Surface étage | 468 pi² |
| Type de cuisine | Laboratoire |
| Surface garage | 650 pi² |
| Garage | 2 |
| Mur garage | 8 pi |
| Mur rez-de-chaussée | 8 pi |
| Mur étage | 8 pi |
| Inclinaison toit avant/arrière | na |
| Inclinaison toit gauche/droite | 20/12 |