Description
Avec son petit côté rustique, ce garage loft pouvant loger trois voitures mettra en valeur votre maison de style champêtre ou votre chalet. Il comprend trois portes sur la façade (2 grandes et 1 petite) et une porte de service sur le côté gauche.
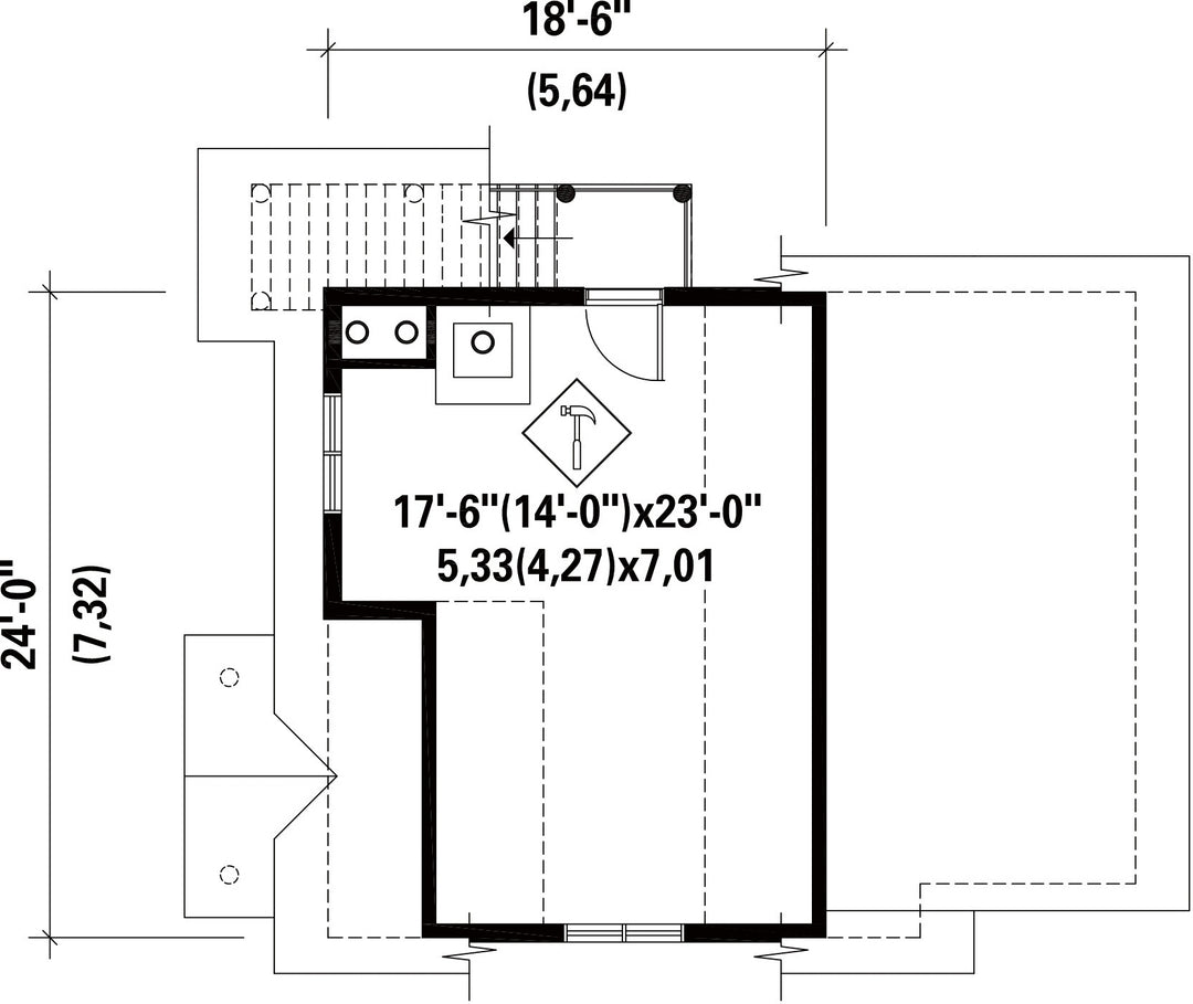
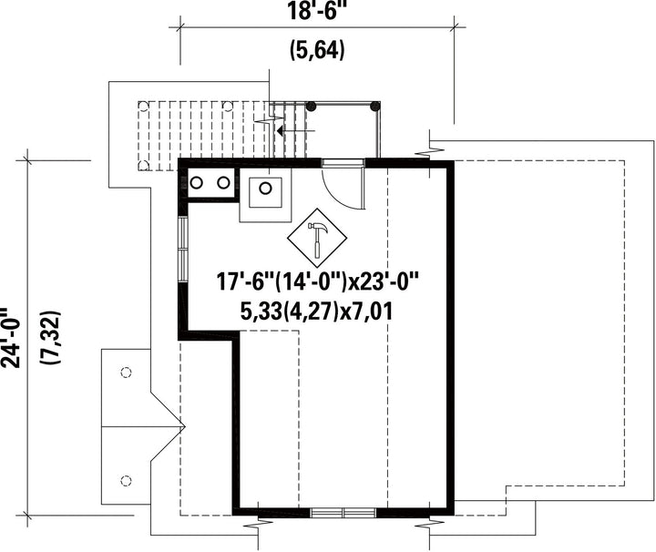
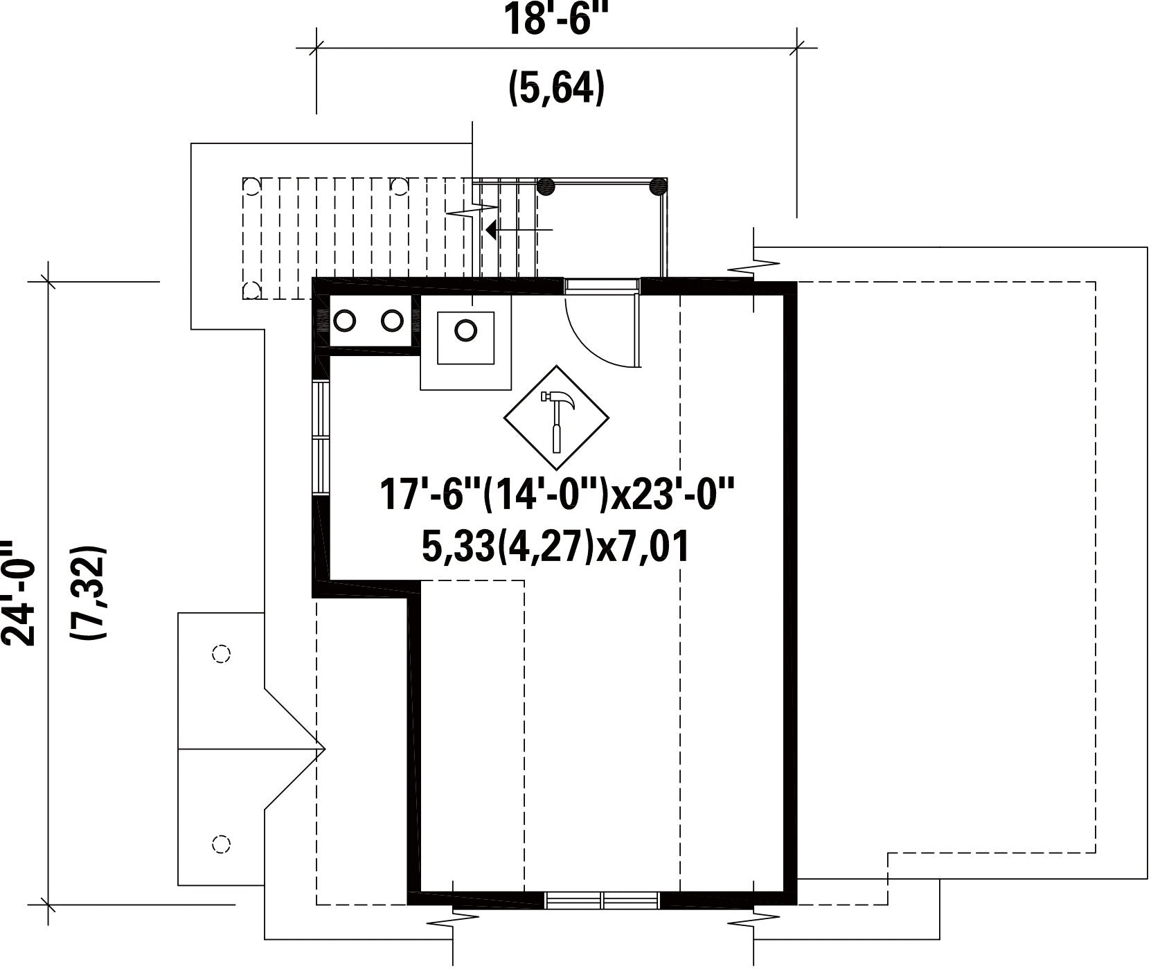
Accessible par un escalier extérieur situé à l'arrière du bâtiment, le loft est une vaste pièce à aire ouverte avec un foyer, et elle peut être utilisée soit comme espace de rangement ou comme atelier pour les artistes ou les bricoleurs.
Accessible par un escalier extérieur situé à l'arrière du bâtiment, le loft est une vaste pièce à aire ouverte avec un foyer, et elle peut être utilisée soit comme espace de rangement ou comme atelier pour les artistes ou les bricoleurs.
Caractéristiques
Mesures : Impérial| Style d'architecture | Champêtre |
Coût de construction
Montant approximatif équivalent à celui d'un entrepreneur général (région de la Rive-Sud de Montréal) pour une construction clé en main sans terrain ni infrastructures.
|
138005 $ |
|---|---|---|---|
| Façade | 30 pi | Surface habitable totale | 384 pi² |
| Profondeur | 24 pi | Nombre de salles de bain | 0 |
| Hauteur | 26 pi 6 po | Nombre de chambres | 0 |
| Finition extérieure | Aluminium | ||
| Surface étage | 384 pi² | ||
| Surface garage | 704 pi² | Garage | 3 et plus |
| Mur garage | 8 pi | Mur rez-de-chaussée | 9 pi |
| Mur étage | 8 pi | ||
| Inclinaison toit gauche/droite | 12/12 |
| Style d'architecture | Champêtre |
|---|---|
|
Coût de construction
Montant approximatif équivalent à celui d'un entrepreneur général (région de la Rive-Sud de Montréal) pour une construction clé en main sans terrain ni infrastructures.
|
138005 $ |
| Façade | 30 pi |
| Surface habitable totale | 384 pi² |
| Profondeur | 24 pi |
| Nombre de salles de bain | 0 |
| Hauteur | 26 pi 6 po |
| Nombre de chambres | 0 |
| Finition extérieure | Aluminium |
| Surface étage | 384 pi² |
| Surface garage | 704 pi² |
| Garage | 3 et plus |
| Mur garage | 8 pi |
| Mur rez-de-chaussée | 9 pi |
| Mur étage | 8 pi |
| Inclinaison toit gauche/droite | 12/12 |