Description
    
    	"Solarium 4 saisons
Lucarnes avant et arrière"
     
    
  
Caractéristiques
Mesures : Impérial| Style d'architecture | Français | Coût de construction 
                                
                                Montant approximatif équivalent à celui d'un entrepreneur général (région de la Rive-Sud de Montréal) pour une construction clé en main sans terrain ni infrastructures.
                             | 681058 $ | 
|---|---|---|---|
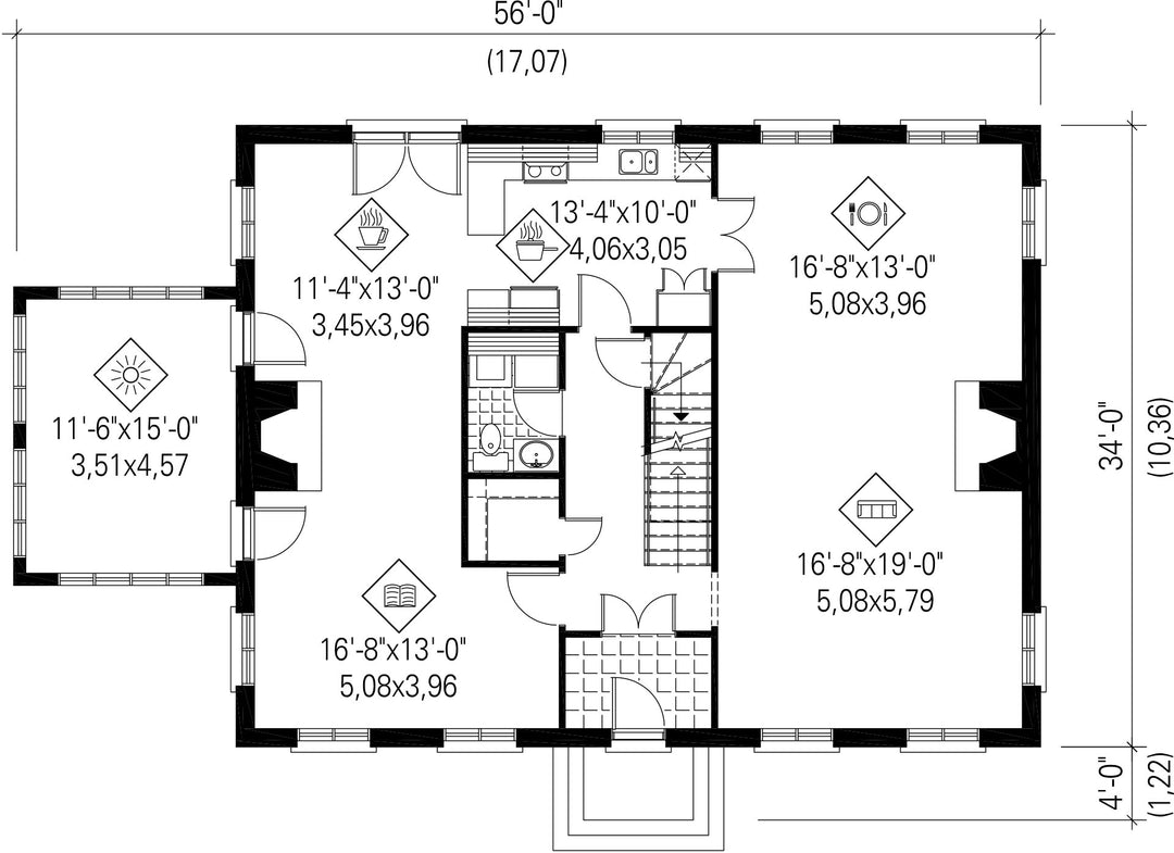
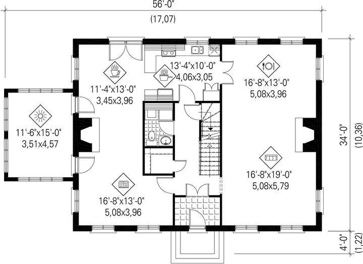
| Façade | 56 pi | Surface habitable totale | 2976 pi² | 
| Profondeur | 34 pi | Nombre de salles de bain | 2 | 
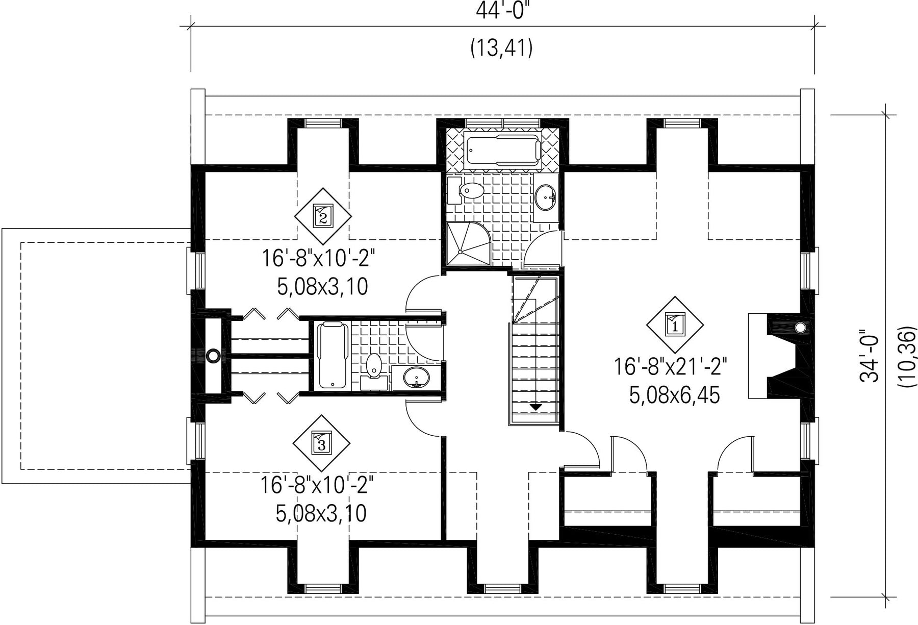
| Hauteur | 29 pi 5 po | Nombre de chambres | 3 | 
| Chambre des maîtres | Bain podium + Douche + Foyer + Lavabo simple + Toilettes | Chambre des maîtres - commentaires | Bain podium dans la lucarne | 
| Surface rez-de-chaussée | 1688 pi² | Finition extérieure | Bois + Pierre | 
| Surface étage | 1288 pi² | Type de cuisine | Coin repas + Salle à manger | 
| Garage | 0 | ||
| Mur rez-de-chaussée | 9 pi | ||
| Mur étage | 8 pi | Inclinaison toit avant/arrière | 10/12 | 
| Style d'architecture | Français | 
|---|---|
| Coût de construction 
                                
                                Montant approximatif équivalent à celui d'un entrepreneur général (région de la Rive-Sud de Montréal) pour une construction clé en main sans terrain ni infrastructures.
                             | 681058 $ | 
| Façade | 56 pi | 
| Surface habitable totale | 2976 pi² | 
| Profondeur | 34 pi | 
| Nombre de salles de bain | 2 | 
| Hauteur | 29 pi 5 po | 
| Nombre de chambres | 3 | 
| Chambre des maîtres | Bain podium + Douche + Foyer + Lavabo simple + Toilettes | 
| Chambre des maîtres - commentaires | Bain podium dans la lucarne | 
| Surface rez-de-chaussée | 1688 pi² | 
| Finition extérieure | Bois + Pierre | 
| Surface étage | 1288 pi² | 
| Type de cuisine | Coin repas + Salle à manger | 
| Garage | 0 | 
| Mur rez-de-chaussée | 9 pi | 
| Mur étage | 8 pi | 
| Inclinaison toit avant/arrière | 10/12 | 
 
  
 
  
 
  
 
 
 
 
 
 
 
  
 
  
 
  
 
  
 
  
 
  
 
  
 
  
 
  
 
  
 
  
