Description
    
    	L’apparence de cette attrayante maison à étage à la façade de briques et d’aluminium est rehaussée par le porche avec colonnes décoratives qui surplombe l’entrée. La demeure offre une surface habitable de 1 330 pieds carrés et mesure 24 pieds de largeur sur 28 pieds de profondeur. 
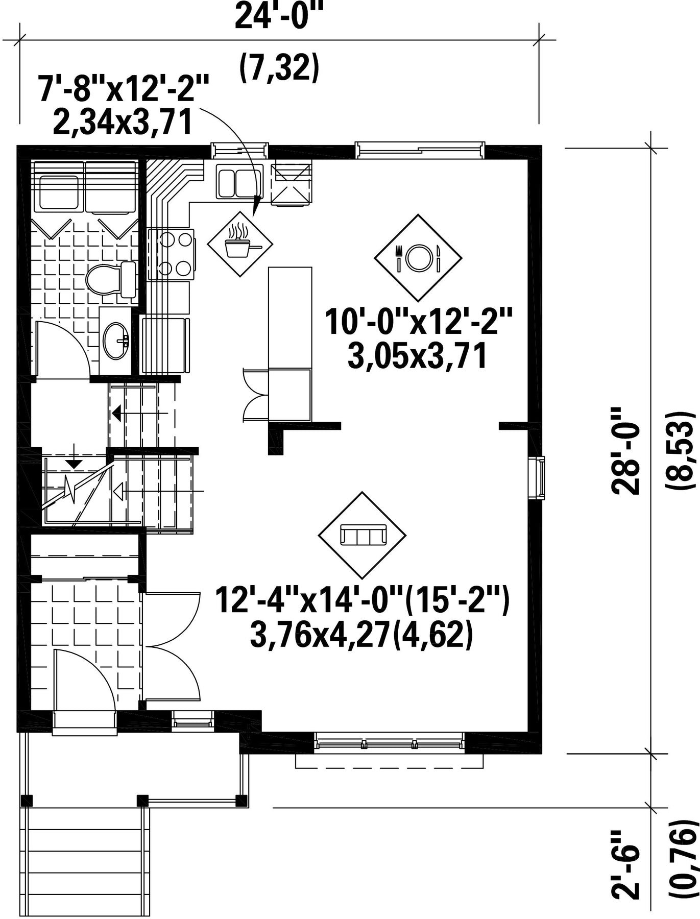
Avec 662 pieds carrés de surface habitable, le rez-de-chaussée compte un vestibule fermé avec une grande penderie, une salle d’eau, un salon, une cuisine avec une grande surface de travail et une salle à manger à aire ouverte.
L’étage de 668 pieds carrés comprend une grande salle de bains ainsi que trois chambres dont une chambre principale disposant d’une vaste penderie.
     
    
  
Avec 662 pieds carrés de surface habitable, le rez-de-chaussée compte un vestibule fermé avec une grande penderie, une salle d’eau, un salon, une cuisine avec une grande surface de travail et une salle à manger à aire ouverte.
L’étage de 668 pieds carrés comprend une grande salle de bains ainsi que trois chambres dont une chambre principale disposant d’une vaste penderie.
Caractéristiques
Mesures : Impérial| Style d'architecture | Européen | 
                        
                            Coût de construction 
                             
                                
                                Montant approximatif équivalent à celui d'un entrepreneur général (région de la Rive-Sud de Montréal) pour une construction clé en main sans terrain ni infrastructures.
                             
                        
                        
                     | 
                    245346 $ | 
|---|---|---|---|
| Façade | 24 pi | Surface habitable totale | 1330 pi² | 
| Profondeur | 28 pi | Nombre de salles de bain | 1 | 
| Hauteur | 29 pi 6 po | Nombre de chambres | 3 | 
| Chambre des maîtres - commentaires | --- | ||
| Surface rez-de-chaussée | 662 pi² | Finition extérieure | Aluminium + Brique | 
| Surface étage | 668 pi² | ||
| Garage | 0 | ||
| Mur rez-de-chaussée | 8 pi | ||
| Mur étage | 8 pi | Inclinaison toit avant/arrière | 7/12 | 
| Inclinaison toit gauche/droite | 12/12 | 
| Style d'architecture | Européen | 
|---|---|
| 
                        
                            Coût de construction 
                             
                                
                                Montant approximatif équivalent à celui d'un entrepreneur général (région de la Rive-Sud de Montréal) pour une construction clé en main sans terrain ni infrastructures.
                             
                        
                        
                     | 
                    245346 $ | 
| Façade | 24 pi | 
| Surface habitable totale | 1330 pi² | 
| Profondeur | 28 pi | 
| Nombre de salles de bain | 1 | 
| Hauteur | 29 pi 6 po | 
| Nombre de chambres | 3 | 
| Chambre des maîtres - commentaires | --- | 
| Surface rez-de-chaussée | 662 pi² | 
| Finition extérieure | Aluminium + Brique | 
| Surface étage | 668 pi² | 
| Garage | 0 | 
| Mur rez-de-chaussée | 8 pi | 
| Mur étage | 8 pi | 
| Inclinaison toit avant/arrière | 7/12 | 
| Inclinaison toit gauche/droite | 12/12 |