Description
    
    	L'apparence de cette ravissante maison à étage avec façade de briques et d’aluminium est rehaussée par le porche avec colonnes décoratives qui surplombe l’entrée. La demeure offre une surface habitable de 1 770 pieds carrés et mesure 37 pieds 6 pouces de largeur sur 38 pieds de profondeur. 
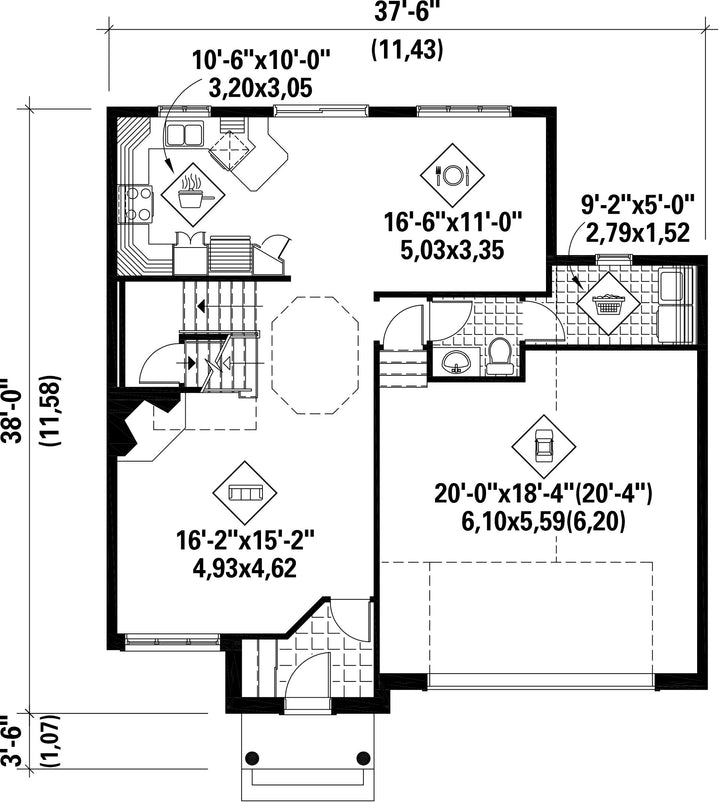
Avec 853 pieds carrés de surface habitable, le rez-de-chaussée compte un vestibule fermé, une salle d'eau, une salle de lavage, un salon avec foyer, une grande cuisine à aire ouverte, une salle à manger ainsi qu'un garage double de 425 pieds carrés.
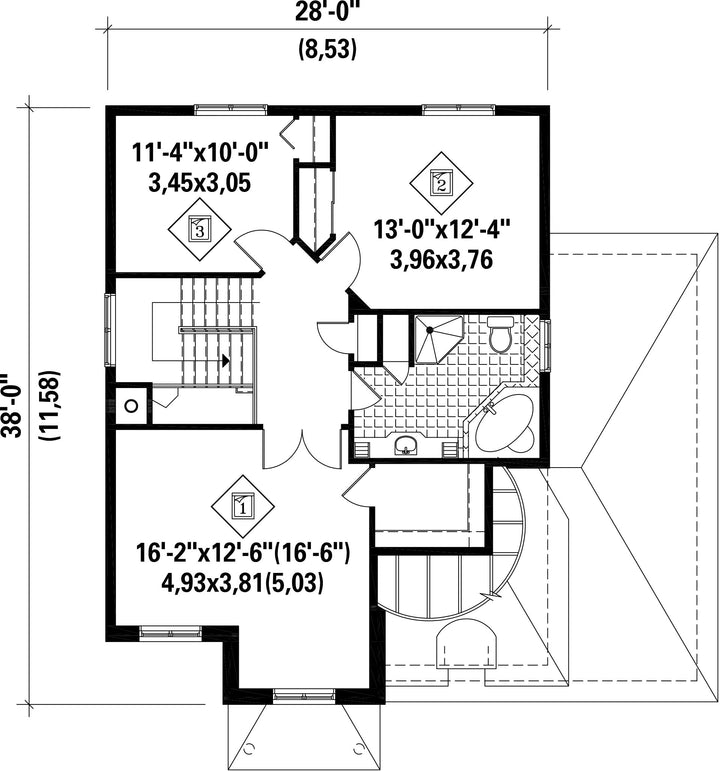
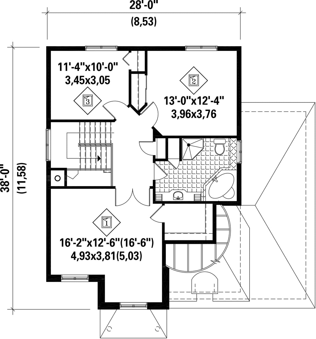
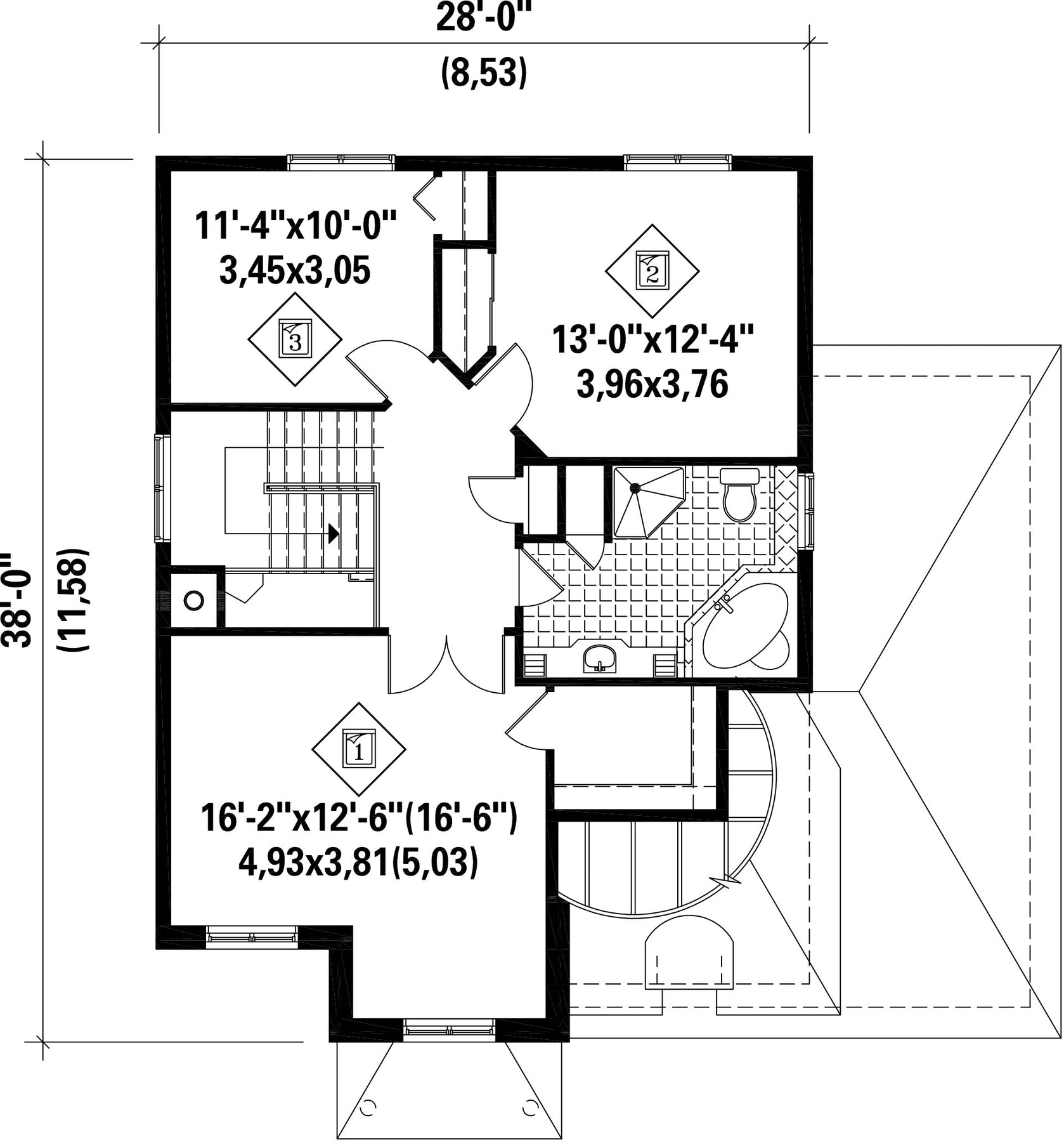
L'étage de 917 pieds carrés comprend une salle de bains avec bain en coin et trois chambres dont une grande chambre principale avec portes françaises et une vaste penderie.
     
    
  
Avec 853 pieds carrés de surface habitable, le rez-de-chaussée compte un vestibule fermé, une salle d'eau, une salle de lavage, un salon avec foyer, une grande cuisine à aire ouverte, une salle à manger ainsi qu'un garage double de 425 pieds carrés.
L'étage de 917 pieds carrés comprend une salle de bains avec bain en coin et trois chambres dont une grande chambre principale avec portes françaises et une vaste penderie.
Caractéristiques
Mesures : Impérial| Style d'architecture | Européen | 
                        
                            Coût de construction 
                             
                                
                                Montant approximatif équivalent à celui d'un entrepreneur général (région de la Rive-Sud de Montréal) pour une construction clé en main sans terrain ni infrastructures.
                             
                        
                        
                     | 
                    365264 $ | 
|---|---|---|---|
| Façade | 37 pi 6 po | Surface habitable totale | 1770 pi² | 
| Profondeur | 38 pi | Nombre de salles de bain | 1 | 
| Hauteur | 33 pi 3 po | Nombre de chambres | 3 | 
| Chambre des maîtres | Penderie + Portes doubles | Chambre des maîtres - commentaires | Grande chambre des maîtres Grande penderie dans la chambre des maîtres  | 
| Surface rez-de-chaussée | 853 pi² | Finition extérieure | Aluminium + Brique | 
| Surface étage | 917 pi² | Type de cuisine | Forme en U | 
| Surface garage | 425 pi² | Garage | 2 | 
| Mur garage | 8 pi | Mur rez-de-chaussée | 8 pi | 
| Mur étage | 8 pi | Inclinaison toit avant/arrière | 12/12+7/12 | 
| Inclinaison toit gauche/droite | 12/12 | 
| Style d'architecture | Européen | 
|---|---|
| 
                        
                            Coût de construction 
                             
                                
                                Montant approximatif équivalent à celui d'un entrepreneur général (région de la Rive-Sud de Montréal) pour une construction clé en main sans terrain ni infrastructures.
                             
                        
                        
                     | 
                    365264 $ | 
| Façade | 37 pi 6 po | 
| Surface habitable totale | 1770 pi² | 
| Profondeur | 38 pi | 
| Nombre de salles de bain | 1 | 
| Hauteur | 33 pi 3 po | 
| Nombre de chambres | 3 | 
| Chambre des maîtres | Penderie + Portes doubles | 
| Chambre des maîtres - commentaires | Grande chambre des maîtres Grande penderie dans la chambre des maîtres  | 
| Surface rez-de-chaussée | 853 pi² | 
| Finition extérieure | Aluminium + Brique | 
| Surface étage | 917 pi² | 
| Type de cuisine | Forme en U | 
| Surface garage | 425 pi² | 
| Garage | 2 | 
| Mur garage | 8 pi | 
| Mur rez-de-chaussée | 8 pi | 
| Mur étage | 8 pi | 
| Inclinaison toit avant/arrière | 12/12+7/12 | 
| Inclinaison toit gauche/droite | 12/12 |