Description
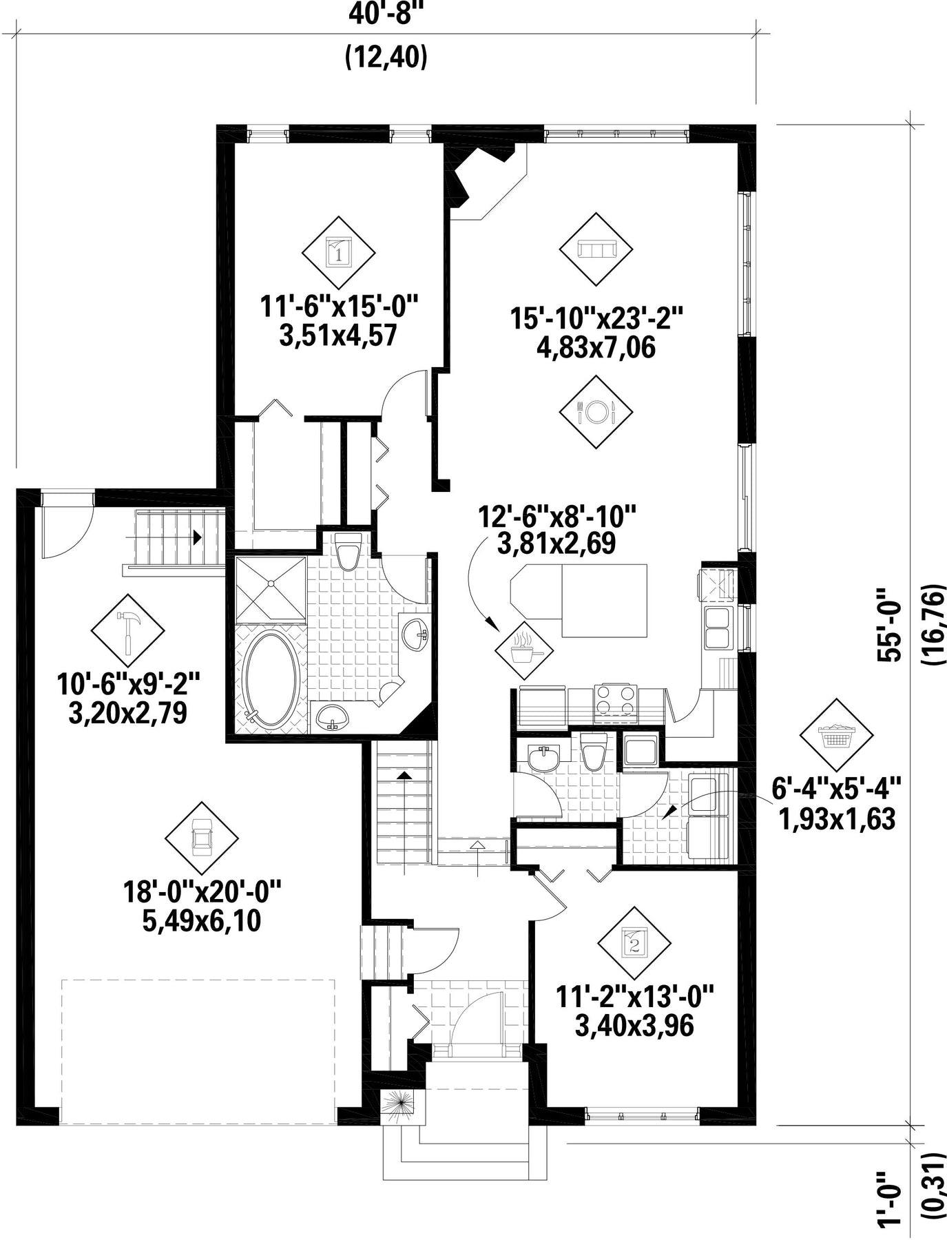
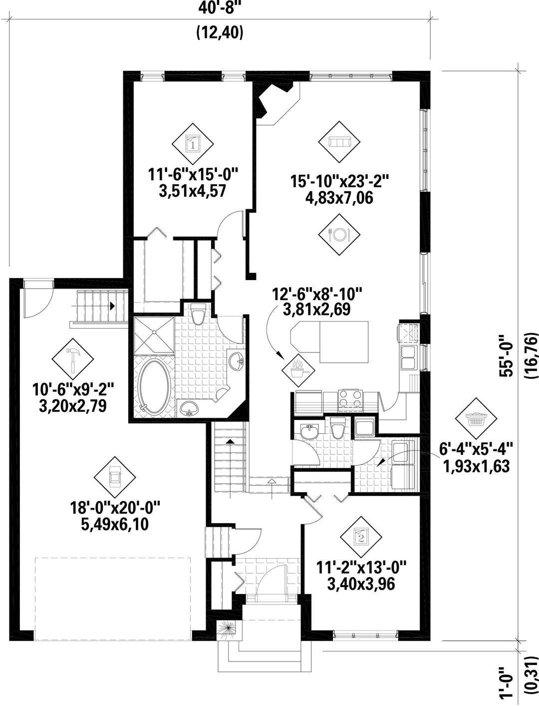
Cette jolie maison de plain-pied en briques mesure 40 pieds 8 pouces de largeur sur 55 pieds de profondeur et offre une surface habitable de 1 431 pieds carrés. Un garage double de 561 pieds carrés qui donne accès au sous-sol et à un atelier à l’arrière complète le tout.
La demeure comporte un grand vestibule, un salon avec foyer, une salle à manger, une vaste cuisine avec un îlot, une salle d’eau avec un espace pour la lessive, deux chambres à coucher et une salle de bains.
La demeure comporte un grand vestibule, un salon avec foyer, une salle à manger, une vaste cuisine avec un îlot, une salle d’eau avec un espace pour la lessive, deux chambres à coucher et une salle de bains.
Caractéristiques
Mesures : Impérial| Style d'architecture | Européen |
Coût de construction
Montant approximatif équivalent à celui d'un entrepreneur général (région de la Rive-Sud de Montréal) pour une construction clé en main sans terrain ni infrastructures.
|
445548 $ |
|---|---|---|---|
| Façade | 40 pi 8 po | Surface habitable totale | 1431 pi² |
| Profondeur | 55 pi | Nombre de salles de bain | 1 |
| Hauteur | 27 pi | Nombre de chambres | 2 |
| Chambre des maîtres | Penderie | ||
| Surface rez-de-chaussée | 1431 pi² | Finition extérieure | Aluminium + Brique |
| Type de cuisine | Comptoir repas + Îlot | ||
| Surface garage | 561 pi² | Garage | 2 |
| Mur garage | 8 pi | Mur rez-de-chaussée | 9 + 10 pi |
| Inclinaison toit avant/arrière | 10/12 | ||
| Inclinaison toit gauche/droite | 10/12 |
| Style d'architecture | Européen |
|---|---|
|
Coût de construction
Montant approximatif équivalent à celui d'un entrepreneur général (région de la Rive-Sud de Montréal) pour une construction clé en main sans terrain ni infrastructures.
|
445548 $ |
| Façade | 40 pi 8 po |
| Surface habitable totale | 1431 pi² |
| Profondeur | 55 pi |
| Nombre de salles de bain | 1 |
| Hauteur | 27 pi |
| Nombre de chambres | 2 |
| Chambre des maîtres | Penderie |
| Surface rez-de-chaussée | 1431 pi² |
| Finition extérieure | Aluminium + Brique |
| Type de cuisine | Comptoir repas + Îlot |
| Surface garage | 561 pi² |
| Garage | 2 |
| Mur garage | 8 pi |
| Mur rez-de-chaussée | 9 + 10 pi |
| Inclinaison toit avant/arrière | 10/12 |
| Inclinaison toit gauche/droite | 10/12 |