DNC000605
DNC000605
DNC000605
DNC000605

DNC000605


Jeux de plans - Sets of plans
Prix régulier$1,640.00
/

Ce site est protégé par hCaptcha, et la Politique de confidentialité et les Conditions de service de hCaptcha s’appliquent.

Description

"Escalier ouvert Vestibule fermé Cuisine et dînette fermées"

Caractéristiques

Mesures : Impérial

Style d'architecture Européen Coût de construction 
Montant approximatif équivalent à celui d'un entrepreneur général (région de la Rive-Sud de Montréal) pour une construction clé en main sans terrain ni infrastructures.
412629 $
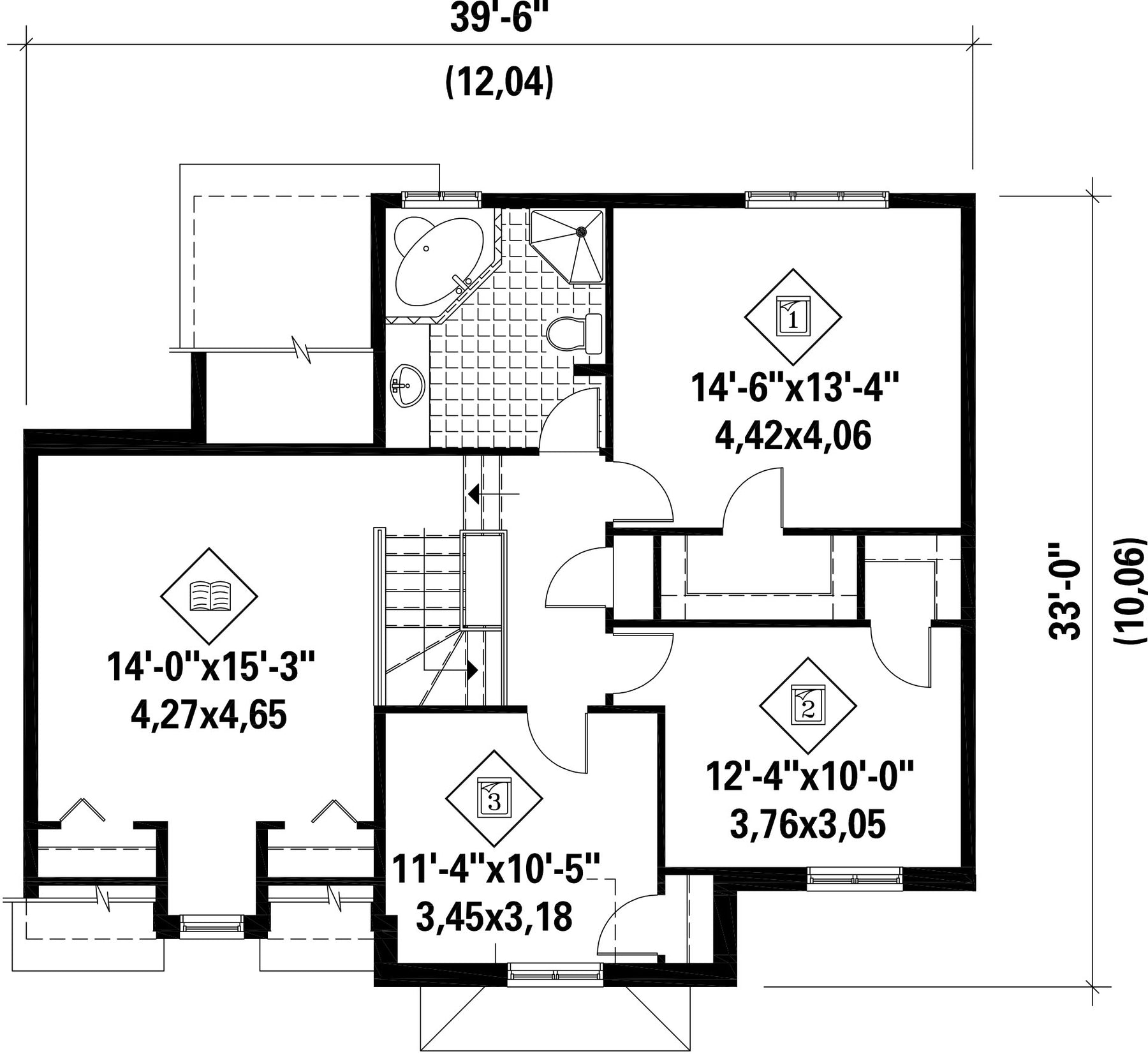
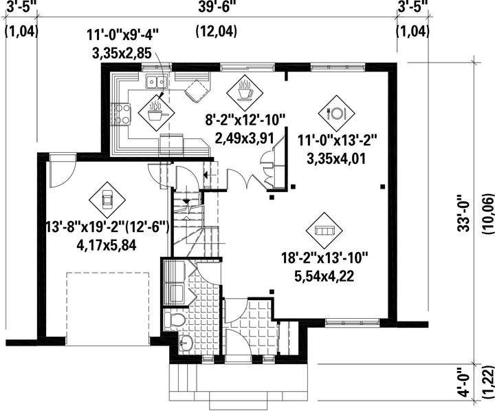
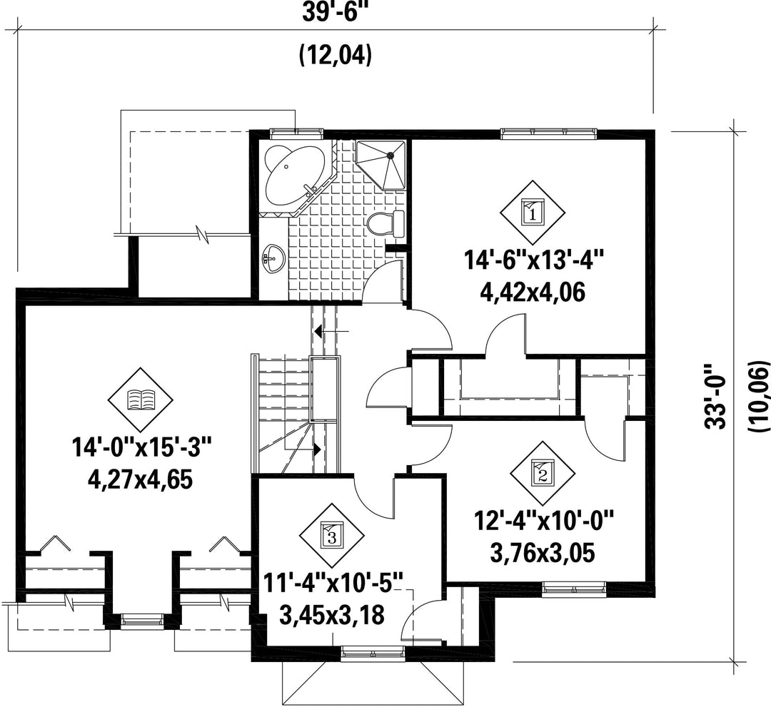
Façade 39 pi 6 po Surface habitable totale 1942 pi²
Profondeur 33 piNombre de salles de bain 1
Hauteur 31 pi 5 poNombre de chambres 3
Chambre des maîtres Penderie
Surface rez-de-chaussée 875 pi² Finition extérieure Aluminium + Brique
Surface étage 1067 pi² Type de cuisine Coin repas + Forme en U + Salle à manger
Surface garage 292 pi² Garage 1
Mur garage 8 piMur rez-de-chaussée 8 pi
Mur étage 8 piInclinaison toit avant/arrière 8/12
Inclinaison toit gauche/droite 12/12
Style d'architecture Européen
Coût de construction 
Montant approximatif équivalent à celui d'un entrepreneur général (région de la Rive-Sud de Montréal) pour une construction clé en main sans terrain ni infrastructures.
412629 $
Façade 39 pi 6 po
Surface habitable totale 1942 pi²
Profondeur 33 pi
Nombre de salles de bain 1
Hauteur 31 pi 5 po
Nombre de chambres 3
Chambre des maîtres Penderie
Surface rez-de-chaussée 875 pi²
Finition extérieure Aluminium + Brique
Surface étage 1067 pi²
Type de cuisine Coin repas + Forme en U + Salle à manger
Surface garage 292 pi²
Garage 1
Mur garage 8 pi
Mur rez-de-chaussée 8 pi
Mur étage 8 pi
Inclinaison toit avant/arrière 8/12
Inclinaison toit gauche/droite 12/12

Ces plans de maison pourraient également vous intéresser


Vu récemment