Description
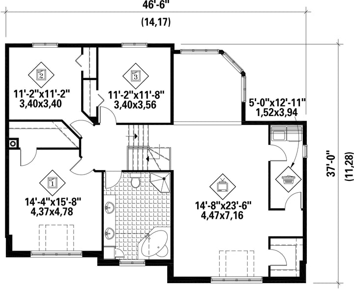
Le jeu de courbes de la façade rectiligne de cette demeure lui confère une allure plus gracieuse. Deux des fenêtres de l’étage sont couronnées d’une arche alors que celle du milieu est coiffée d’un pignon qui rompt l’effet linéaire de la toiture. Cette somptueuse demeure de 46 pieds 6 pouces de largeur sur 37 pieds de profondeur offre une surface habitable de 2 483 pieds carrés.
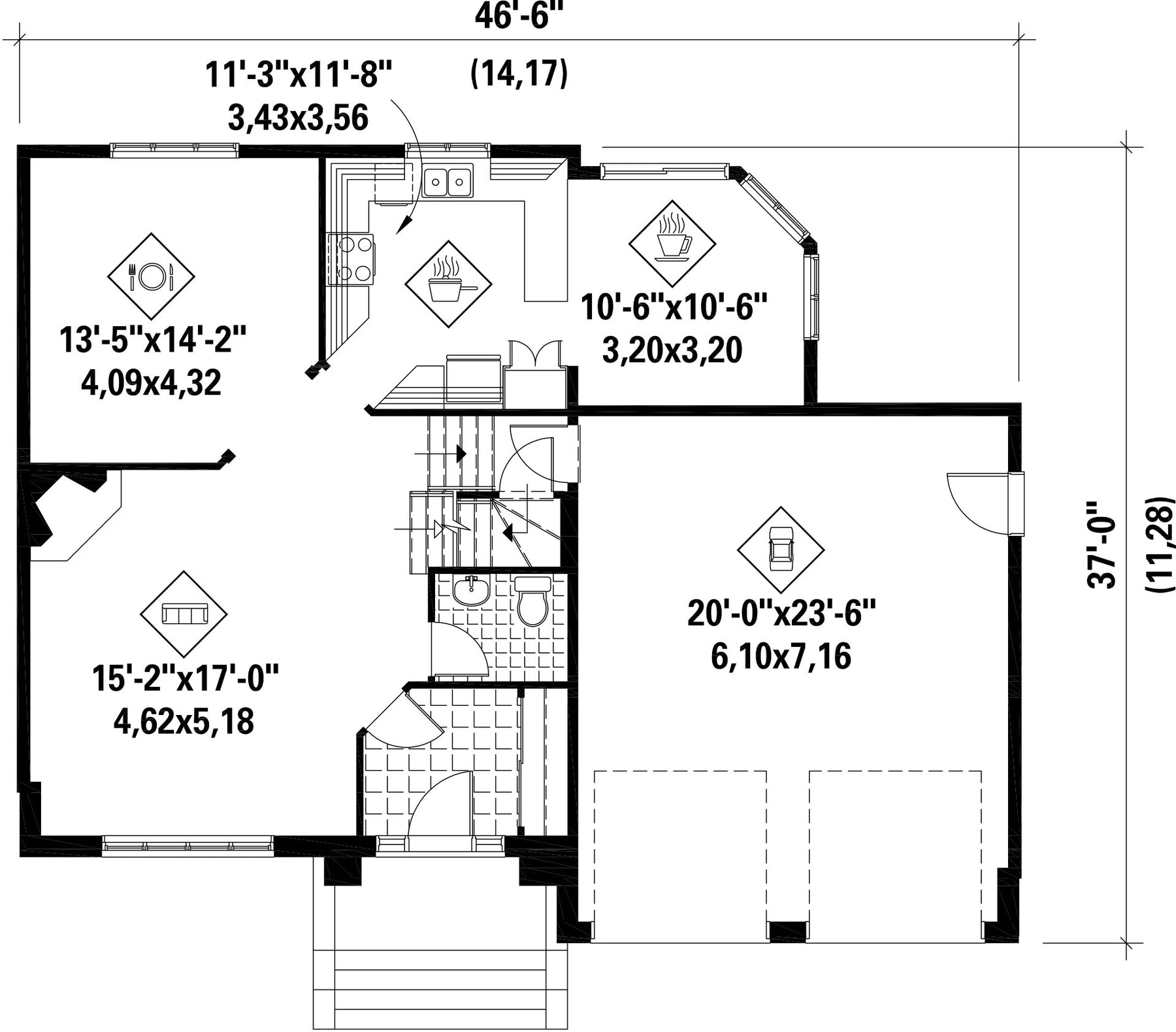
Au rez-de-chaussée, dont la surface habitable s'élève à 979 pieds carrés, on retrouve une cuisine à aire ouverte, un coin-repas entouré de larges fenêtres et comportant un accès vers une salle familiale située au-dessus du garage. Il y a également une salle à manger, un vaste salon, une salle d’eau et un garage double de 511 pieds carrés.
L’étage de 1504 pieds carrés abrite trois chambres, une salle familiale, une salle de lavage, ainsi qu’une salle de bains.
Au rez-de-chaussée, dont la surface habitable s'élève à 979 pieds carrés, on retrouve une cuisine à aire ouverte, un coin-repas entouré de larges fenêtres et comportant un accès vers une salle familiale située au-dessus du garage. Il y a également une salle à manger, un vaste salon, une salle d’eau et un garage double de 511 pieds carrés.
L’étage de 1504 pieds carrés abrite trois chambres, une salle familiale, une salle de lavage, ainsi qu’une salle de bains.
Caractéristiques
Mesures : Impérial| Style d'architecture | Européen |
Coût de construction
Montant approximatif équivalent à celui d'un entrepreneur général (région de la Rive-Sud de Montréal) pour une construction clé en main sans terrain ni infrastructures.
|
509433 $ |
|---|---|---|---|
| Façade | 46 pi 6 po | Surface habitable totale | 2483 pi² |
| Profondeur | 37 pi | Nombre de salles de bain | 1 |
| Hauteur | 33 pi 10 po | Nombre de chambres | 3 |
| Chambre des maîtres | Penderie | ||
| Surface rez-de-chaussée | 979 pi² | Finition extérieure | Agrégats + Aluminium + Brique |
| Surface étage | 1504 pi² | Type de cuisine | Coin repas + Forme en U + Salle à manger |
| Surface garage | 511 pi² | Garage | 2 |
| Mur garage | 8 pi | Mur rez-de-chaussée | 8 pi |
| Mur étage | 8 pi | Inclinaison toit avant/arrière | 10/12 |
| Inclinaison toit gauche/droite | 10/12 |
| Style d'architecture | Européen |
|---|---|
|
Coût de construction
Montant approximatif équivalent à celui d'un entrepreneur général (région de la Rive-Sud de Montréal) pour une construction clé en main sans terrain ni infrastructures.
|
509433 $ |
| Façade | 46 pi 6 po |
| Surface habitable totale | 2483 pi² |
| Profondeur | 37 pi |
| Nombre de salles de bain | 1 |
| Hauteur | 33 pi 10 po |
| Nombre de chambres | 3 |
| Chambre des maîtres | Penderie |
| Surface rez-de-chaussée | 979 pi² |
| Finition extérieure | Agrégats + Aluminium + Brique |
| Surface étage | 1504 pi² |
| Type de cuisine | Coin repas + Forme en U + Salle à manger |
| Surface garage | 511 pi² |
| Garage | 2 |
| Mur garage | 8 pi |
| Mur rez-de-chaussée | 8 pi |
| Mur étage | 8 pi |
| Inclinaison toit avant/arrière | 10/12 |
| Inclinaison toit gauche/droite | 10/12 |