Description
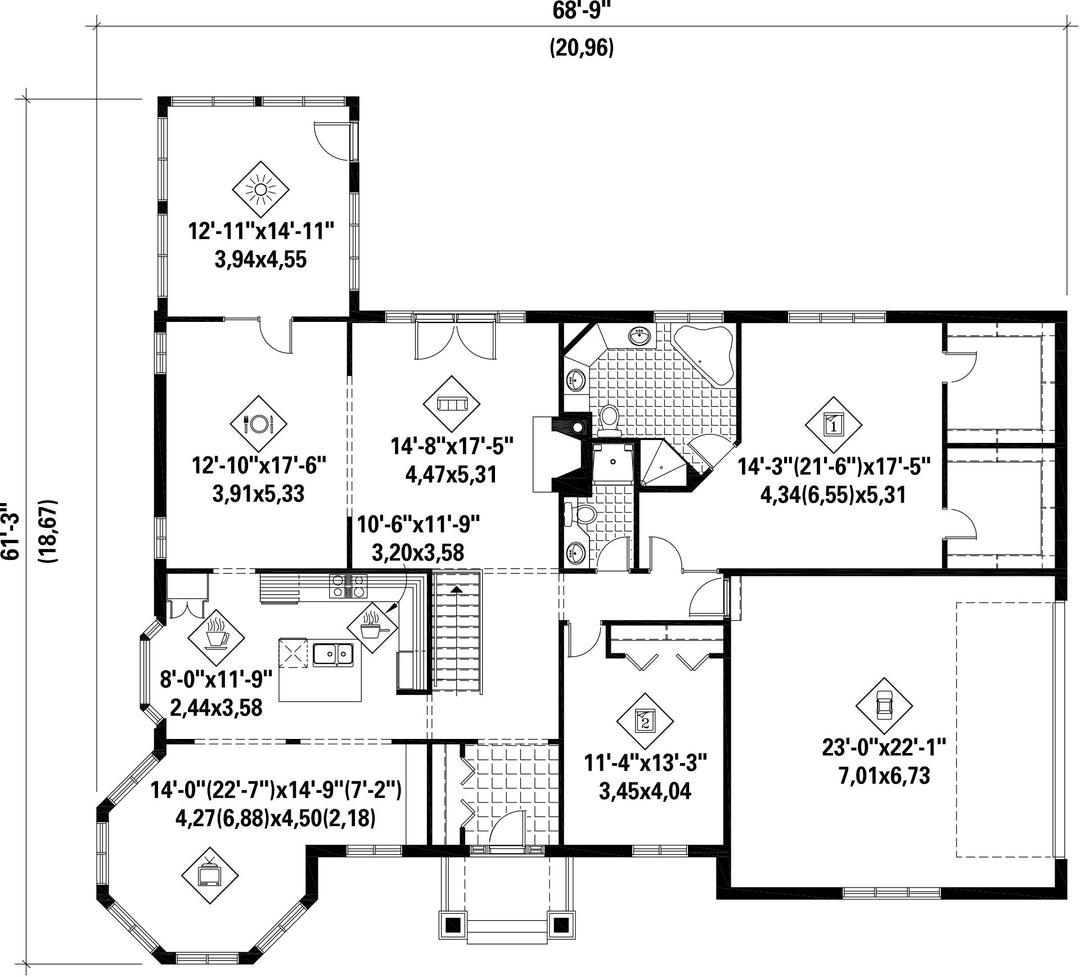
Cette attrayante maison de plain-pied, dont le revêtement extérieur est composé de briques et d'agrégats de béton, mesure 68 pieds 9 pouces de largeur sur 61 pieds 3 pouces de profondeur et offre une surface habitable de 2 147 pieds carrés.
Cette demeure comprend un grand hall d’entrée, une salle familiale, une cuisine avec de grandes surfaces de travail et un coin-repas, une salle à manger, un solarium, un salon avec foyer, deux salles de bains, et deux chambres, dont une chambre principale avec deux penderies. Un garage double de 549 pieds carrés avec entrée sur le côté vient compléter le tout.
Cette demeure comprend un grand hall d’entrée, une salle familiale, une cuisine avec de grandes surfaces de travail et un coin-repas, une salle à manger, un solarium, un salon avec foyer, deux salles de bains, et deux chambres, dont une chambre principale avec deux penderies. Un garage double de 549 pieds carrés avec entrée sur le côté vient compléter le tout.
Caractéristiques
Mesures : Impérial| Style d'architecture | Européen |
Coût de construction
Montant approximatif équivalent à celui d'un entrepreneur général (région de la Rive-Sud de Montréal) pour une construction clé en main sans terrain ni infrastructures.
|
613517 $ |
|---|---|---|---|
| Façade | 68 pi 9 po | Surface habitable totale | 2147 pi² |
| Profondeur | 61 pi 3 po | Nombre de salles de bain | 2 |
| Hauteur | 33 pi 2 po | Nombre de chambres | 2 |
| Chambre des maîtres | Bain podium + Douche + Lavabo double + Penderie + Portes doubles + Toilettes | Chambre des maîtres - commentaires | Deux penderies dans la chambre des maîtres |
| Surface rez-de-chaussée | 2147 pi² | Finition extérieure | Agrégats + Brique |
| Type de cuisine | Coin repas + Salle à manger + Îlot | ||
| Surface garage | 549 pi² | Garage | 2 |
| Mur garage | 8 pi | Mur rez-de-chaussée | 10 pi |
| Inclinaison toit avant/arrière | 9/12 | ||
| Inclinaison toit gauche/droite | 14/12 |
| Style d'architecture | Européen |
|---|---|
|
Coût de construction
Montant approximatif équivalent à celui d'un entrepreneur général (région de la Rive-Sud de Montréal) pour une construction clé en main sans terrain ni infrastructures.
|
613517 $ |
| Façade | 68 pi 9 po |
| Surface habitable totale | 2147 pi² |
| Profondeur | 61 pi 3 po |
| Nombre de salles de bain | 2 |
| Hauteur | 33 pi 2 po |
| Nombre de chambres | 2 |
| Chambre des maîtres | Bain podium + Douche + Lavabo double + Penderie + Portes doubles + Toilettes |
| Chambre des maîtres - commentaires | Deux penderies dans la chambre des maîtres |
| Surface rez-de-chaussée | 2147 pi² |
| Finition extérieure | Agrégats + Brique |
| Type de cuisine | Coin repas + Salle à manger + Îlot |
| Surface garage | 549 pi² |
| Garage | 2 |
| Mur garage | 8 pi |
| Mur rez-de-chaussée | 10 pi |
| Inclinaison toit avant/arrière | 9/12 |
| Inclinaison toit gauche/droite | 14/12 |