Description
    
    	Ces maisons à étage jumelées ont une façade de briques et un petit porche et disposent chacune d’une superficie habitable totale de 1 200 pieds carrés. La superficie des rez-de-chaussée de chaque unité est de 600 pieds carrés tout comme celle des étages. La disposition des pièces est identique au rez-de-chaussée.
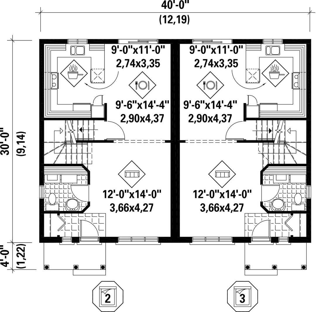
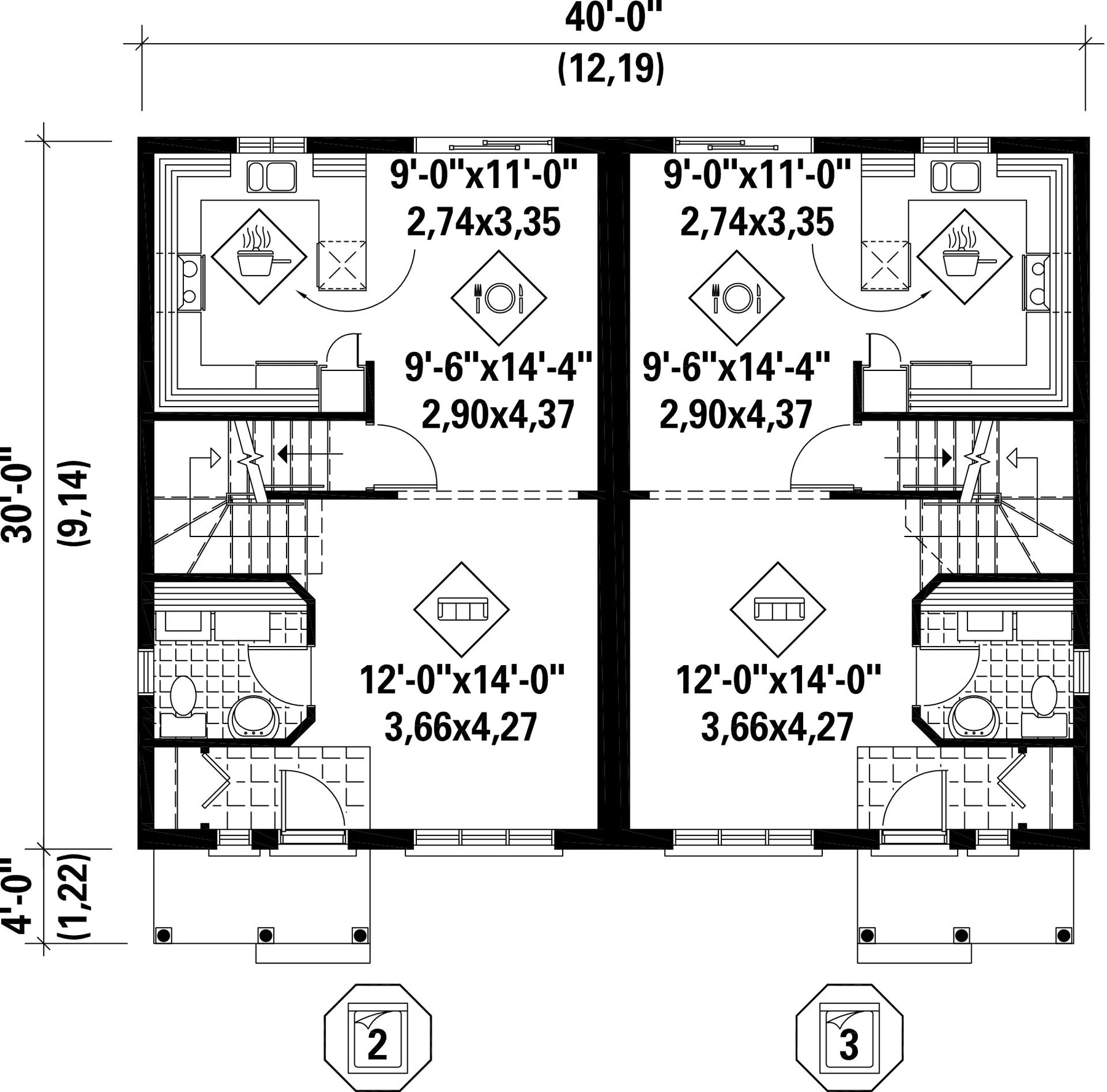
Le rez-de-chaussée de chacune des maisons comprend un hall ouvert avec placard, un salon, une salle à manger et une cuisine à aire ouverte, ainsi qu’une salle d’eau avec espace pour la laveuse et la sécheuse.
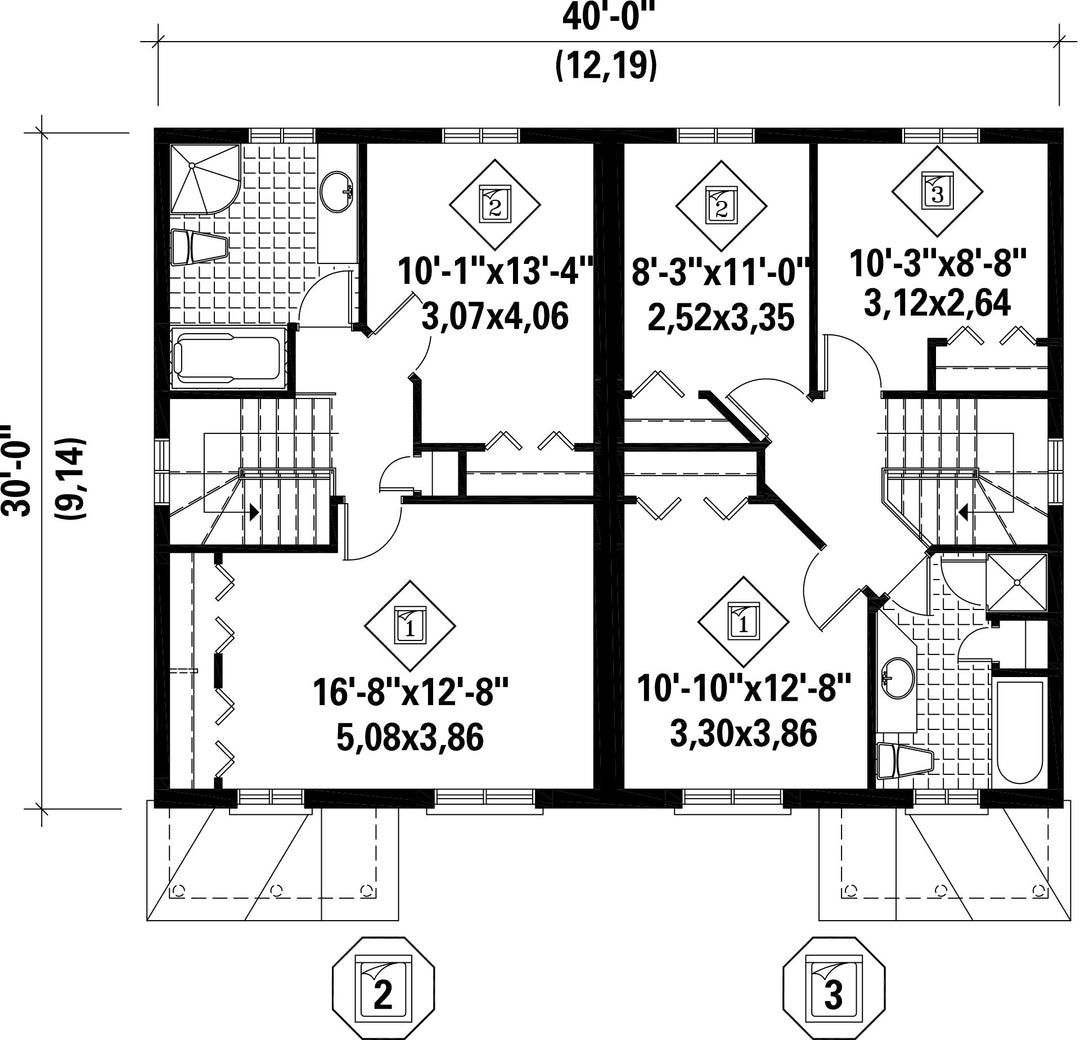
L’étage de la maison de gauche composé d’une grande salle de bains et de deux chambres, dont une chambre des maîtres avec deux placards.
L’étage de la maison de droite est composé d’une salle de bains et de trois chambres. Cette version est idéale pour les familles plus nombreuses.
     
    
  
Le rez-de-chaussée de chacune des maisons comprend un hall ouvert avec placard, un salon, une salle à manger et une cuisine à aire ouverte, ainsi qu’une salle d’eau avec espace pour la laveuse et la sécheuse.
L’étage de la maison de gauche composé d’une grande salle de bains et de deux chambres, dont une chambre des maîtres avec deux placards.
L’étage de la maison de droite est composé d’une salle de bains et de trois chambres. Cette version est idéale pour les familles plus nombreuses.
Caractéristiques
Mesures : Impérial| Style d'architecture | Européen | 
                        
                            Coût de construction 
                             
                                
                                Montant approximatif équivalent à celui d'un entrepreneur général (région de la Rive-Sud de Montréal) pour une construction clé en main sans terrain ni infrastructures.
                             
                        
                        
                     | 
                    465757 $ | 
|---|---|---|---|
| Façade | 40 pi | Surface habitable totale | 2400 pi² | 
| Profondeur | 30 pi | Nombre de salles de bain | 2 | 
| Hauteur | 30 pi 1 po | Nombre de chambres | 5 | 
| Chambre des maîtres - commentaires | --- | ||
| Surface rez-de-chaussée | 1200 pi² | Finition extérieure | Aluminium + Brique | 
| Surface étage | 1200 pi² | Type de cuisine | Forme en U | 
| Garage | 0 | ||
| Mur rez-de-chaussée | 8 pi | ||
| Mur étage | 8 pi | Inclinaison toit avant/arrière | 8/12 | 
| Inclinaison toit gauche/droite | 10/12 | 
| Style d'architecture | Européen | 
|---|---|
| 
                        
                            Coût de construction 
                             
                                
                                Montant approximatif équivalent à celui d'un entrepreneur général (région de la Rive-Sud de Montréal) pour une construction clé en main sans terrain ni infrastructures.
                             
                        
                        
                     | 
                    465757 $ | 
| Façade | 40 pi | 
| Surface habitable totale | 2400 pi² | 
| Profondeur | 30 pi | 
| Nombre de salles de bain | 2 | 
| Hauteur | 30 pi 1 po | 
| Nombre de chambres | 5 | 
| Chambre des maîtres - commentaires | --- | 
| Surface rez-de-chaussée | 1200 pi² | 
| Finition extérieure | Aluminium + Brique | 
| Surface étage | 1200 pi² | 
| Type de cuisine | Forme en U | 
| Garage | 0 | 
| Mur rez-de-chaussée | 8 pi | 
| Mur étage | 8 pi | 
| Inclinaison toit avant/arrière | 8/12 | 
| Inclinaison toit gauche/droite | 10/12 |