Description
    
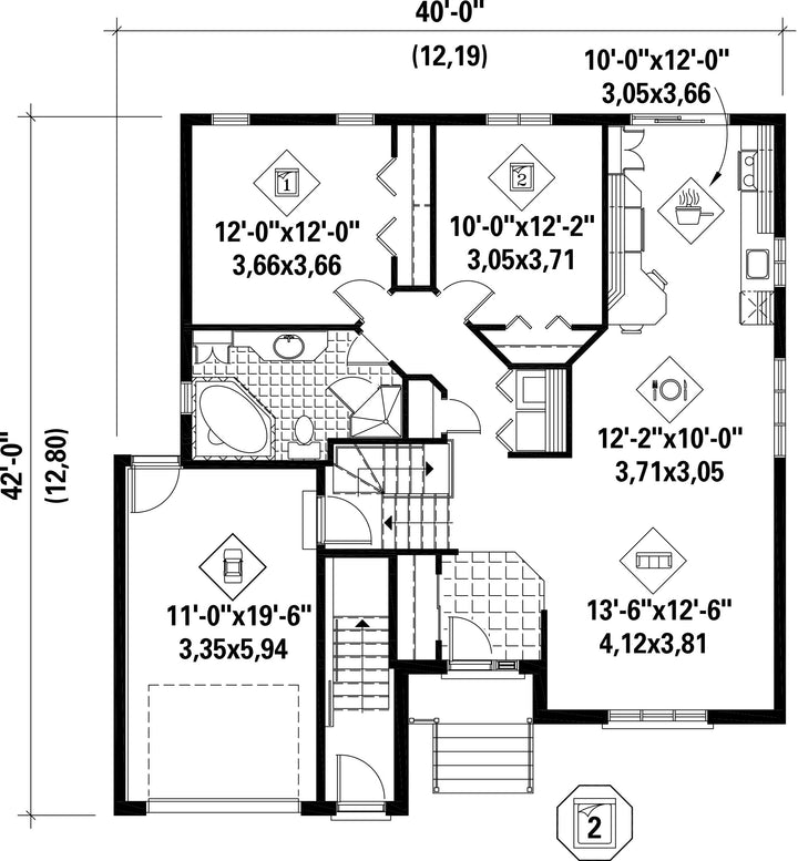
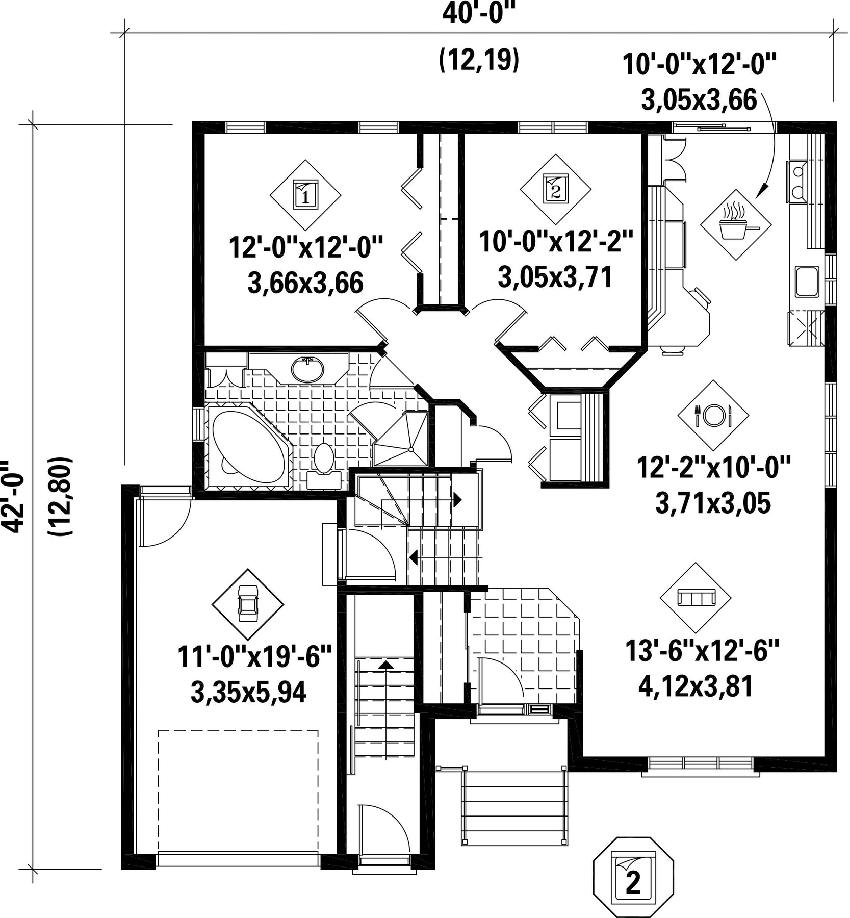
    	Cette maison de plain-pied est pourvue d’un garage simple attenant à la maison et d’un grand sous-sol dont une partie est aménagée en logement-studio. La demeure, dont la façade avant est en briques, mesure 40 pieds de largeur sur 42 pieds de profondeur, et offre une surface habitable de 2 417 pieds carrés.
L’étage principal, réparti sur une surface de 1 200 pieds carrés, comprend un salon, une cuisine fonctionnelle, une salle à manger, deux chambres, une salle de bains, ainsi qu’un garage simple de 252 pieds carrés.
Le sous-sol offre une surface habitable de 1 217 pieds carrés et comprend, d’un côté, une salle familiale et un espace de rangement pour les propriétaires. Accessible par une entrée indépendante située à côté du garage à l’avant de la demeure, le logement studio inclut une cuisine, une salle à manger et un salon à aire ouverte, une chambre ainsi qu’une salle de bains.
     
    
  
L’étage principal, réparti sur une surface de 1 200 pieds carrés, comprend un salon, une cuisine fonctionnelle, une salle à manger, deux chambres, une salle de bains, ainsi qu’un garage simple de 252 pieds carrés.
Le sous-sol offre une surface habitable de 1 217 pieds carrés et comprend, d’un côté, une salle familiale et un espace de rangement pour les propriétaires. Accessible par une entrée indépendante située à côté du garage à l’avant de la demeure, le logement studio inclut une cuisine, une salle à manger et un salon à aire ouverte, une chambre ainsi qu’une salle de bains.
Caractéristiques
Mesures : Impérial| Style d'architecture | Européen | 
                        
                            Coût de construction 
                             
                                
                                Montant approximatif équivalent à celui d'un entrepreneur général (région de la Rive-Sud de Montréal) pour une construction clé en main sans terrain ni infrastructures.
                             
                        
                        
                     | 
                    356722 $ | 
|---|---|---|---|
| Façade | 40 pi | Surface habitable totale | 2417 pi² | 
| Profondeur | 42 pi | Nombre de salles de bain | 2 | 
| Hauteur | 26 pi 9 po | Nombre de chambres | 3 | 
| Chambre des maîtres - commentaires | --- | ||
| Surface rez-de-chaussée | 1200 pi² | Finition extérieure | Aluminium + Brique | 
| Type de cuisine | Forme en L | ||
| Surface garage | 252 pi² | Garage | 1 | 
| Mur garage | 8 pi | Mur rez-de-chaussée | 8 pi | 
| Inclinaison toit avant/arrière | 8/12 | ||
| Inclinaison toit gauche/droite | 12/12 | Surface sous-sol | 1217 pi² | 
| Style d'architecture | Européen | 
|---|---|
| 
                        
                            Coût de construction 
                             
                                
                                Montant approximatif équivalent à celui d'un entrepreneur général (région de la Rive-Sud de Montréal) pour une construction clé en main sans terrain ni infrastructures.
                             
                        
                        
                     | 
                    356722 $ | 
| Façade | 40 pi | 
| Surface habitable totale | 2417 pi² | 
| Profondeur | 42 pi | 
| Nombre de salles de bain | 2 | 
| Hauteur | 26 pi 9 po | 
| Nombre de chambres | 3 | 
| Chambre des maîtres - commentaires | --- | 
| Surface rez-de-chaussée | 1200 pi² | 
| Finition extérieure | Aluminium + Brique | 
| Type de cuisine | Forme en L | 
| Surface garage | 252 pi² | 
| Garage | 1 | 
| Mur garage | 8 pi | 
| Mur rez-de-chaussée | 8 pi | 
| Inclinaison toit avant/arrière | 8/12 | 
| Inclinaison toit gauche/droite | 12/12 | 
| Surface sous-sol | 1217 pi² |