Description
    
    	Cette élégante maison à étage de style urbain mesure 24 pieds de largeur sur 26 pieds de profondeur, et possède une surface habitable de 1 200 pieds carrés.
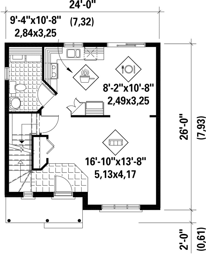
Le rez-de-chaussée de 600 pieds carrés compte un salon, une cuisine et une salle à manger à aire ouverte, et une salle d’eau avec espace pour la laveuse et la sécheuse.
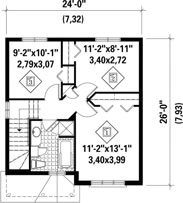
L’étage de 600 pieds carrés comprend trois chambres et une salle de bains familiale.
     
    
  
Le rez-de-chaussée de 600 pieds carrés compte un salon, une cuisine et une salle à manger à aire ouverte, et une salle d’eau avec espace pour la laveuse et la sécheuse.
L’étage de 600 pieds carrés comprend trois chambres et une salle de bains familiale.
Caractéristiques
Mesures : Impérial| Style d'architecture | Européen | 
                        
                            Coût de construction 
                             
                                
                                Montant approximatif équivalent à celui d'un entrepreneur général (région de la Rive-Sud de Montréal) pour une construction clé en main sans terrain ni infrastructures.
                             
                        
                        
                     | 
                    224805 $ | 
|---|---|---|---|
| Façade | 24 pi | Surface habitable totale | 1200 pi² | 
| Profondeur | 26 pi | Nombre de salles de bain | 1 | 
| Hauteur | 28 pi 1 po | Nombre de chambres | 3 | 
| Chambre des maîtres - commentaires | Garde-robe | ||
| Surface rez-de-chaussée | 600 pi² | Finition extérieure | Aluminium + Brique | 
| Surface étage | 600 pi² | Type de cuisine | Forme en U | 
| Garage | 0 | ||
| Mur rez-de-chaussée | 8 pi | ||
| Mur étage | 8 pi | Inclinaison toit avant/arrière | 8/12 | 
| Style d'architecture | Européen | 
|---|---|
| 
                        
                            Coût de construction 
                             
                                
                                Montant approximatif équivalent à celui d'un entrepreneur général (région de la Rive-Sud de Montréal) pour une construction clé en main sans terrain ni infrastructures.
                             
                        
                        
                     | 
                    224805 $ | 
| Façade | 24 pi | 
| Surface habitable totale | 1200 pi² | 
| Profondeur | 26 pi | 
| Nombre de salles de bain | 1 | 
| Hauteur | 28 pi 1 po | 
| Nombre de chambres | 3 | 
| Chambre des maîtres - commentaires | Garde-robe | 
| Surface rez-de-chaussée | 600 pi² | 
| Finition extérieure | Aluminium + Brique | 
| Surface étage | 600 pi² | 
| Type de cuisine | Forme en U | 
| Garage | 0 | 
| Mur rez-de-chaussée | 8 pi | 
| Mur étage | 8 pi | 
| Inclinaison toit avant/arrière | 8/12 |