23003
23003
23003
23003

Ce plan est offert en plusieurs variations. Vous pouvez consulter les variations en choissant un numéro de plan dans le menu ci-dessous. Les plans techniques dans les images ainsi que le tableau des caractéristiques et dimensions se mettront automatiquement à jour.


Jeux de plans - Sets of plans
Prix régulier$1,240.00
/

Ce site est protégé par hCaptcha, et la Politique de confidentialité et les Conditions de service de hCaptcha s’appliquent.

Description

Vestibule fermé

Caractéristiques

Mesures : Impérial

Style d'architecture Européen Coût de construction 
Montant approximatif équivalent à celui d'un entrepreneur général (région de la Rive-Sud de Montréal) pour une construction clé en main sans terrain ni infrastructures.
231853 $
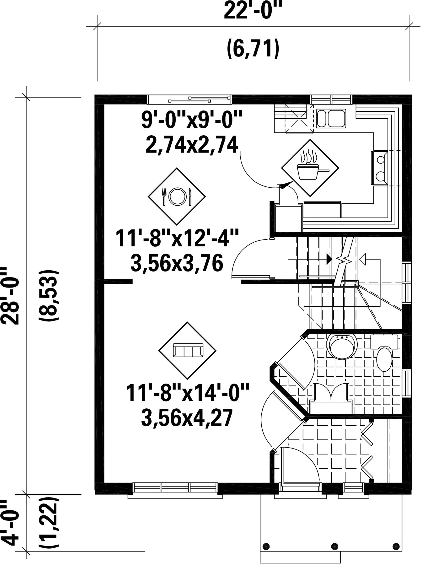
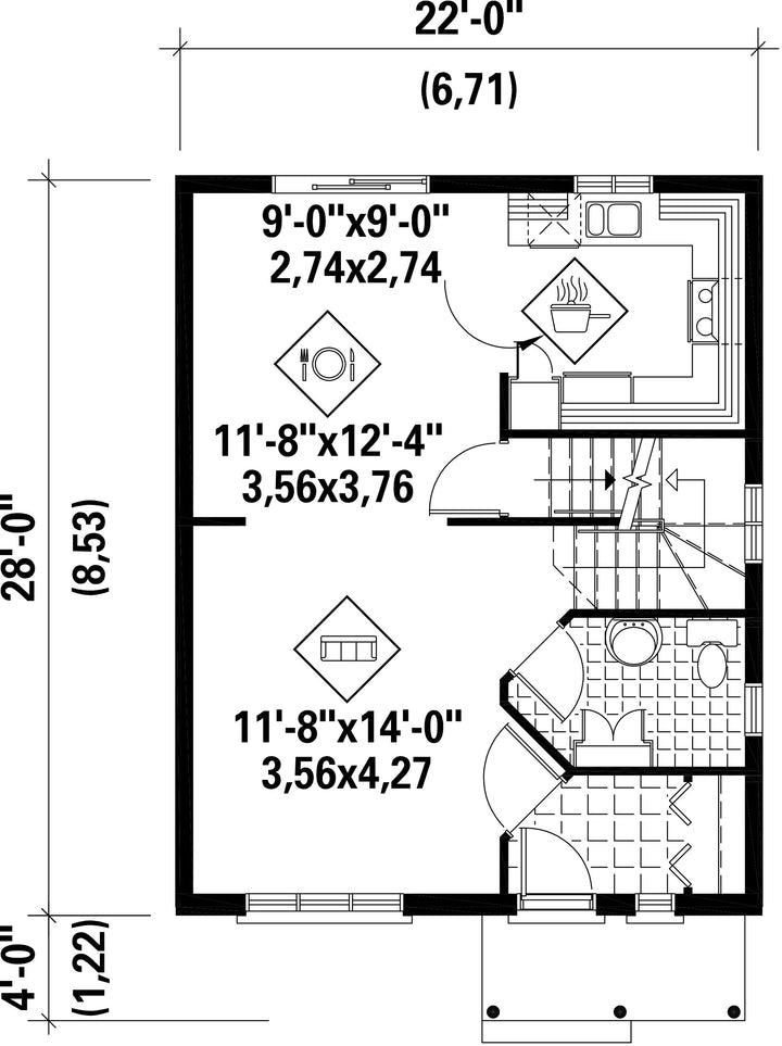
Façade 22 pi Surface habitable totale 1232 pi²
Profondeur 28 piNombre de salles de bain 1
Hauteur 29 pi 6 poNombre de chambres 3
Chambre des maîtres - commentaires Garde-robe
Surface rez-de-chaussée 616 pi² Finition extérieure Aluminium + Brique
Surface étage 616 pi² Type de cuisine Forme en U + Salle à manger
Garage 0
Mur rez-de-chaussée 8 pi
Mur étage 8 piInclinaison toit avant/arrière 10/12
Inclinaison toit gauche/droite 10/12
Style d'architecture Européen
Coût de construction 
Montant approximatif équivalent à celui d'un entrepreneur général (région de la Rive-Sud de Montréal) pour une construction clé en main sans terrain ni infrastructures.
231853 $
Façade 22 pi
Surface habitable totale 1232 pi²
Profondeur 28 pi
Nombre de salles de bain 1
Hauteur 29 pi 6 po
Nombre de chambres 3
Chambre des maîtres - commentaires Garde-robe
Surface rez-de-chaussée 616 pi²
Finition extérieure Aluminium + Brique
Surface étage 616 pi²
Type de cuisine Forme en U + Salle à manger
Garage 0
Mur rez-de-chaussée 8 pi
Mur étage 8 pi
Inclinaison toit avant/arrière 10/12
Inclinaison toit gauche/droite 10/12

Ces plans de maison pourraient également vous intéresser


Vu récemment