Description
    
    	Cette splendide maison à étage avec revêtement de pierres, de briques et d'acrylique mesure 37 pieds 10 pouces de largeur sur 43 pieds de profondeur, et possède une superficie habitable de 2 385 pieds carrés.
Au rez-de-chaussée, qui fait 1 063 pieds carrés, on retrouve une salle d’eau, un salon avec foyer et une porte-fenêtre avec accès direct à la terrasse arrière, une grande cuisine avec coin-repas, une salle à manger et un garage simple de 323 pieds carrés.
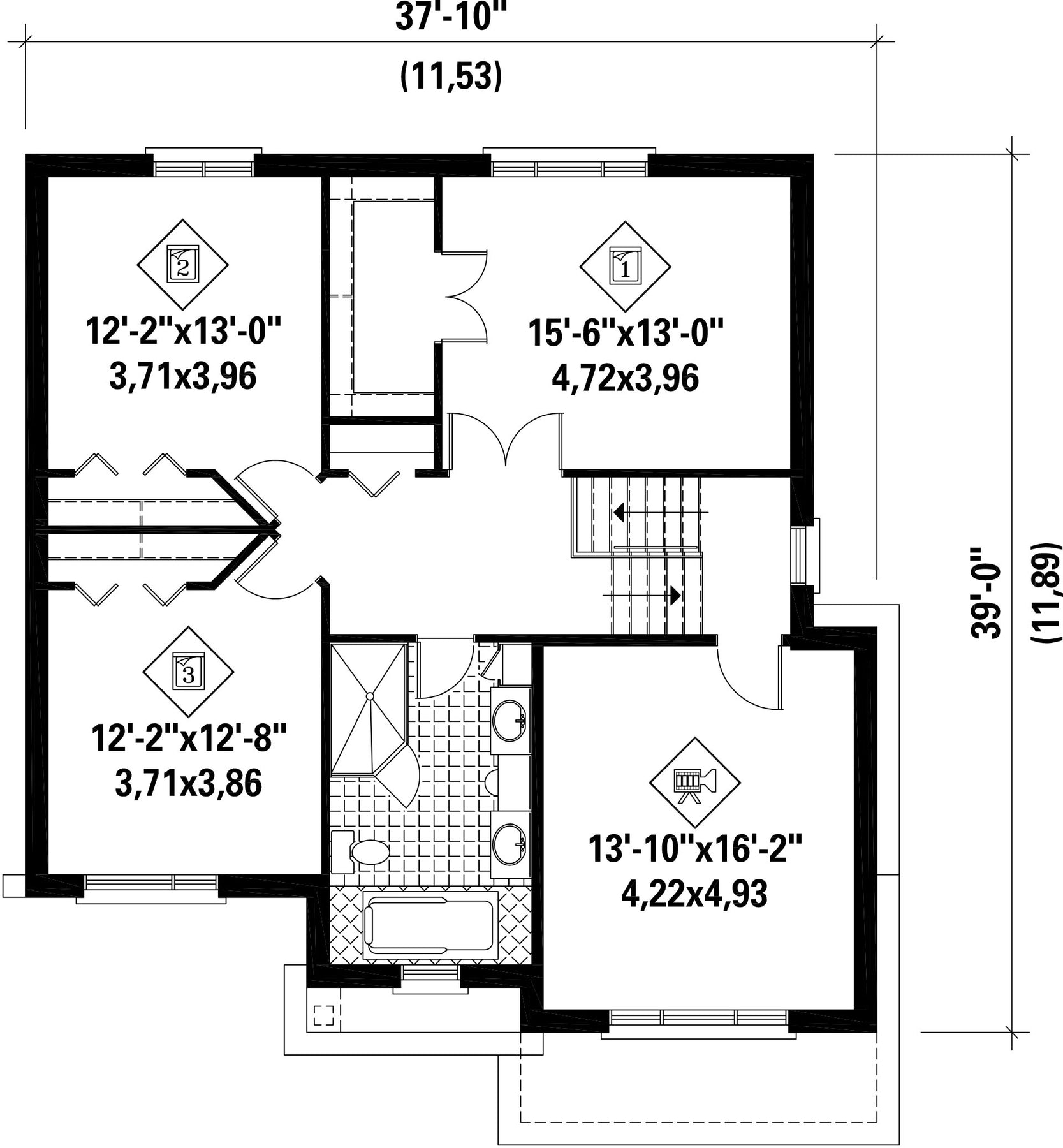
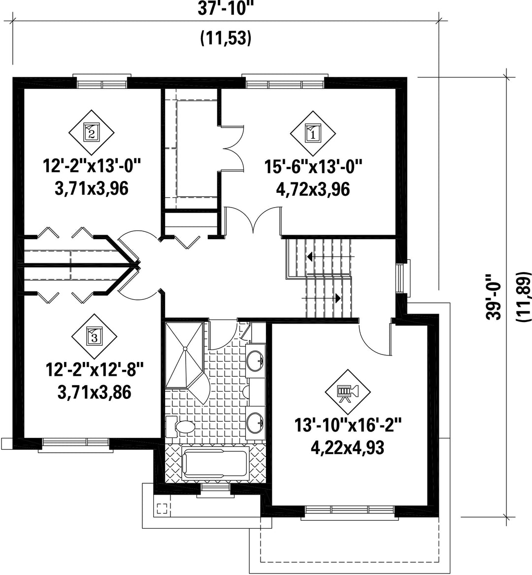
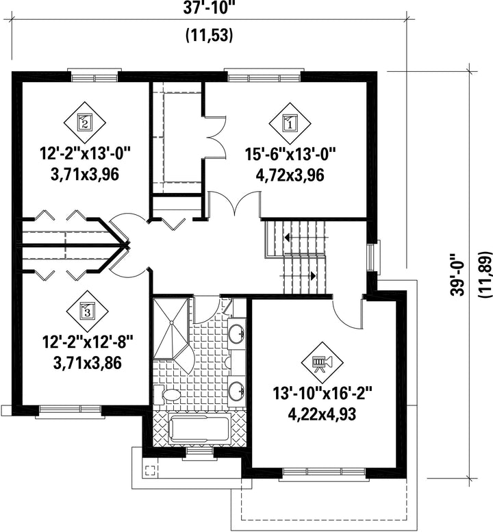
L’étage de 1 322 pieds carrés comprend une salle de bains, trois chambres à coucher, dont une immense chambre principale avec une grande penderie, et une salle familiale au-dessus du garage.
     
    
  
Au rez-de-chaussée, qui fait 1 063 pieds carrés, on retrouve une salle d’eau, un salon avec foyer et une porte-fenêtre avec accès direct à la terrasse arrière, une grande cuisine avec coin-repas, une salle à manger et un garage simple de 323 pieds carrés.
L’étage de 1 322 pieds carrés comprend une salle de bains, trois chambres à coucher, dont une immense chambre principale avec une grande penderie, et une salle familiale au-dessus du garage.
Caractéristiques
Mesures : Impérial| Style d'architecture | Européen | 
                        
                            Coût de construction 
                             
                                
                                Montant approximatif équivalent à celui d'un entrepreneur général (région de la Rive-Sud de Montréal) pour une construction clé en main sans terrain ni infrastructures.
                             
                        
                        
                     | 
                    509163 $ | 
|---|---|---|---|
| Façade | 37 pi 10 po | Surface habitable totale | 2385 pi² | 
| Profondeur | 43 pi | Nombre de salles de bain | 1 | 
| Hauteur | 40 pi 4 po | Nombre de chambres | 3 | 
| Chambre des maîtres | Penderie + Portes doubles | Chambre des maîtres - commentaires | Chambre des maîtres avec grande penderie | 
| Surface rez-de-chaussée | 1063 pi² | Finition extérieure | Agrégats + Brique + Pierre | 
| Surface étage | 1322 pi² | Type de cuisine | Coin repas + Salle à manger | 
| Surface garage | 323 pi² | Garage | 1 | 
| Mur garage | 8 pi | Mur rez-de-chaussée | 9 pi | 
| Mur étage | 8 pi | Inclinaison toit avant/arrière | 12/12 | 
| Inclinaison toit gauche/droite | 12/12 | 
| Style d'architecture | Européen | 
|---|---|
| 
                        
                            Coût de construction 
                             
                                
                                Montant approximatif équivalent à celui d'un entrepreneur général (région de la Rive-Sud de Montréal) pour une construction clé en main sans terrain ni infrastructures.
                             
                        
                        
                     | 
                    509163 $ | 
| Façade | 37 pi 10 po | 
| Surface habitable totale | 2385 pi² | 
| Profondeur | 43 pi | 
| Nombre de salles de bain | 1 | 
| Hauteur | 40 pi 4 po | 
| Nombre de chambres | 3 | 
| Chambre des maîtres | Penderie + Portes doubles | 
| Chambre des maîtres - commentaires | Chambre des maîtres avec grande penderie | 
| Surface rez-de-chaussée | 1063 pi² | 
| Finition extérieure | Agrégats + Brique + Pierre | 
| Surface étage | 1322 pi² | 
| Type de cuisine | Coin repas + Salle à manger | 
| Surface garage | 323 pi² | 
| Garage | 1 | 
| Mur garage | 8 pi | 
| Mur rez-de-chaussée | 9 pi | 
| Mur étage | 8 pi | 
| Inclinaison toit avant/arrière | 12/12 | 
| Inclinaison toit gauche/droite | 12/12 |