Description
Avec sa façade en briques, ses détails architecturaux et son abondante fenestration, cette maison à étage est des plus élégantes. La demeure mesure 30 pieds de largeur sur 28 pieds de profondeur et possède une surface habitable de 1 552 pieds carrés.
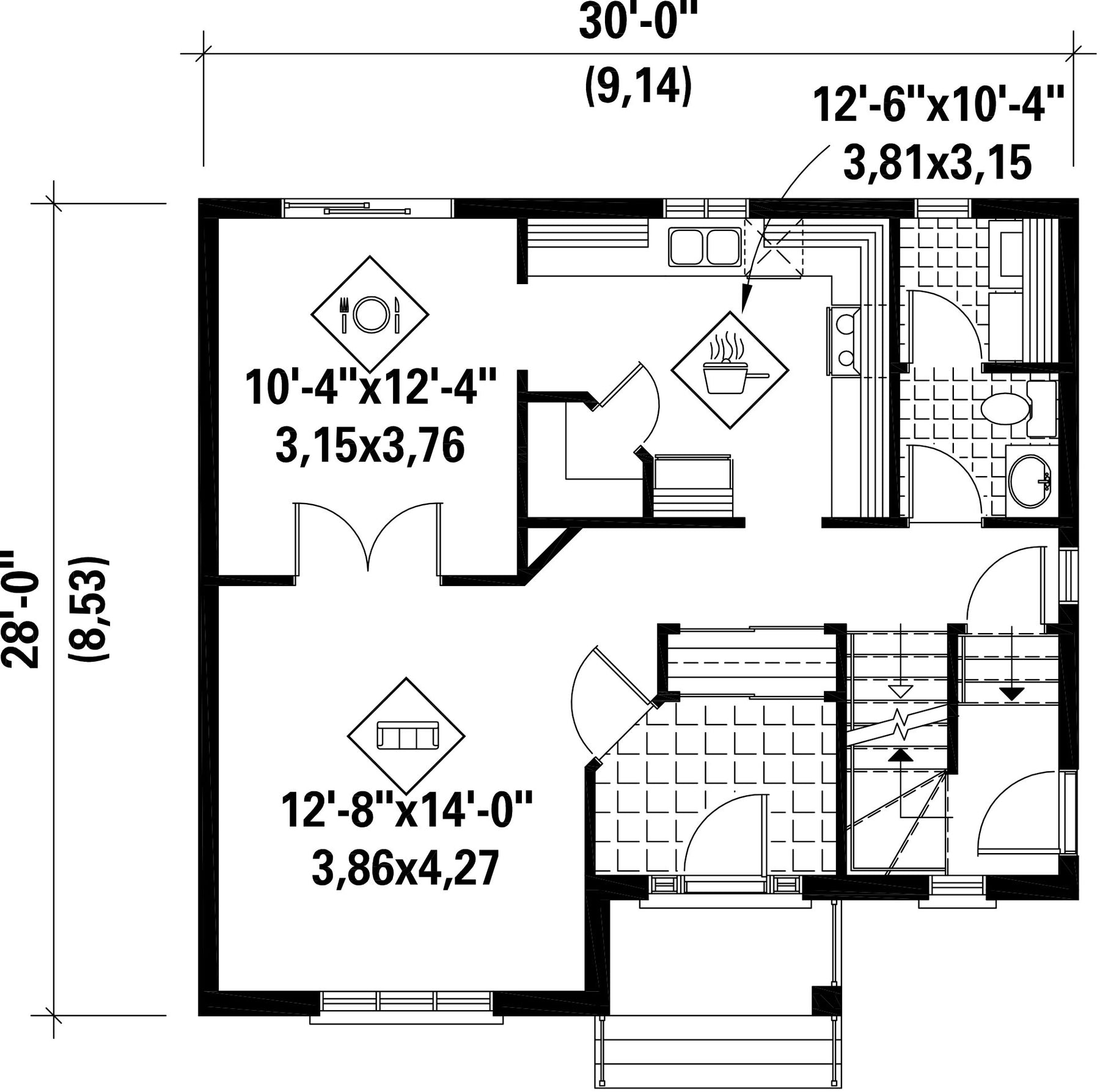
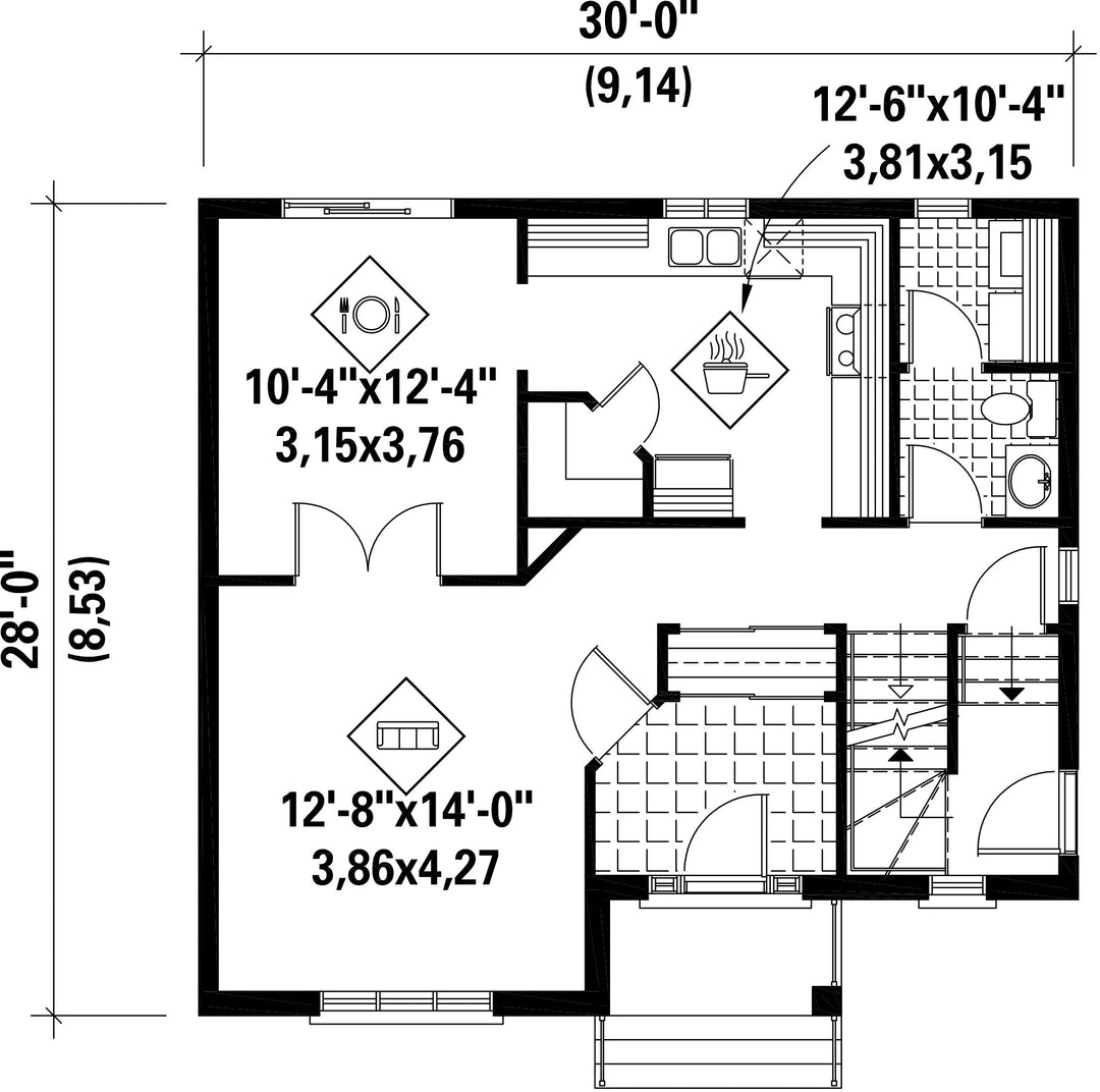
Réparti sur 776 pieds carrés, le rez-de-chaussée comporte un grand vestibule fermé, un salon, une salle à manger, une cuisine avec un grand garde-manger, et une salle d’eau adjacente à une salle de lavage.
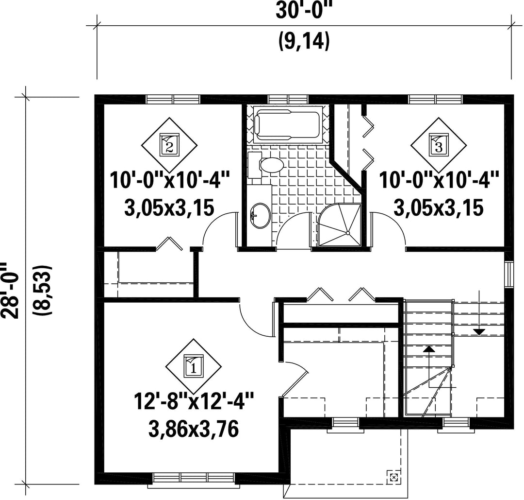
L’étage, qui occupe également 776 pieds carrés, abrite une salle de bains ainsi que trois chambres, dont deux qui sont de dimensions identiques, et la chambre principale qui est dotée d’une grande penderie.
Réparti sur 776 pieds carrés, le rez-de-chaussée comporte un grand vestibule fermé, un salon, une salle à manger, une cuisine avec un grand garde-manger, et une salle d’eau adjacente à une salle de lavage.
L’étage, qui occupe également 776 pieds carrés, abrite une salle de bains ainsi que trois chambres, dont deux qui sont de dimensions identiques, et la chambre principale qui est dotée d’une grande penderie.
Caractéristiques
Mesures : Impérial| Style d'architecture | Européen |
Coût de construction
Montant approximatif équivalent à celui d'un entrepreneur général (région de la Rive-Sud de Montréal) pour une construction clé en main sans terrain ni infrastructures.
|
290937 $ |
|---|---|---|---|
| Façade | 30 pi | Surface habitable totale | 1552 pi² |
| Profondeur | 28 pi | Nombre de salles de bain | 1 |
| Hauteur | 31 pi 7 po | Nombre de chambres | 3 |
| Chambre des maîtres | Penderie | Chambre des maîtres - commentaires | Grande penderie |
| Surface rez-de-chaussée | 776 pi² | Finition extérieure | Aluminium + Brique |
| Surface étage | 776 pi² | Type de cuisine | Salle à manger |
| Garage | 0 | ||
| Mur rez-de-chaussée | 8 pi | ||
| Mur étage | 8 pi | Inclinaison toit avant/arrière | 10/12 |
| Style d'architecture | Européen |
|---|---|
|
Coût de construction
Montant approximatif équivalent à celui d'un entrepreneur général (région de la Rive-Sud de Montréal) pour une construction clé en main sans terrain ni infrastructures.
|
290937 $ |
| Façade | 30 pi |
| Surface habitable totale | 1552 pi² |
| Profondeur | 28 pi |
| Nombre de salles de bain | 1 |
| Hauteur | 31 pi 7 po |
| Nombre de chambres | 3 |
| Chambre des maîtres | Penderie |
| Chambre des maîtres - commentaires | Grande penderie |
| Surface rez-de-chaussée | 776 pi² |
| Finition extérieure | Aluminium + Brique |
| Surface étage | 776 pi² |
| Type de cuisine | Salle à manger |
| Garage | 0 |
| Mur rez-de-chaussée | 8 pi |
| Mur étage | 8 pi |
| Inclinaison toit avant/arrière | 10/12 |