Description
Les moulures décoratives et le revêtement de briques et de pierres donnent à cette maison à étage une allure fort distinguée. Ce modèle mesure 38 pieds de largeur sur 36 pieds de profondeur et offre une surface habitable de 1 986 pieds carrés.
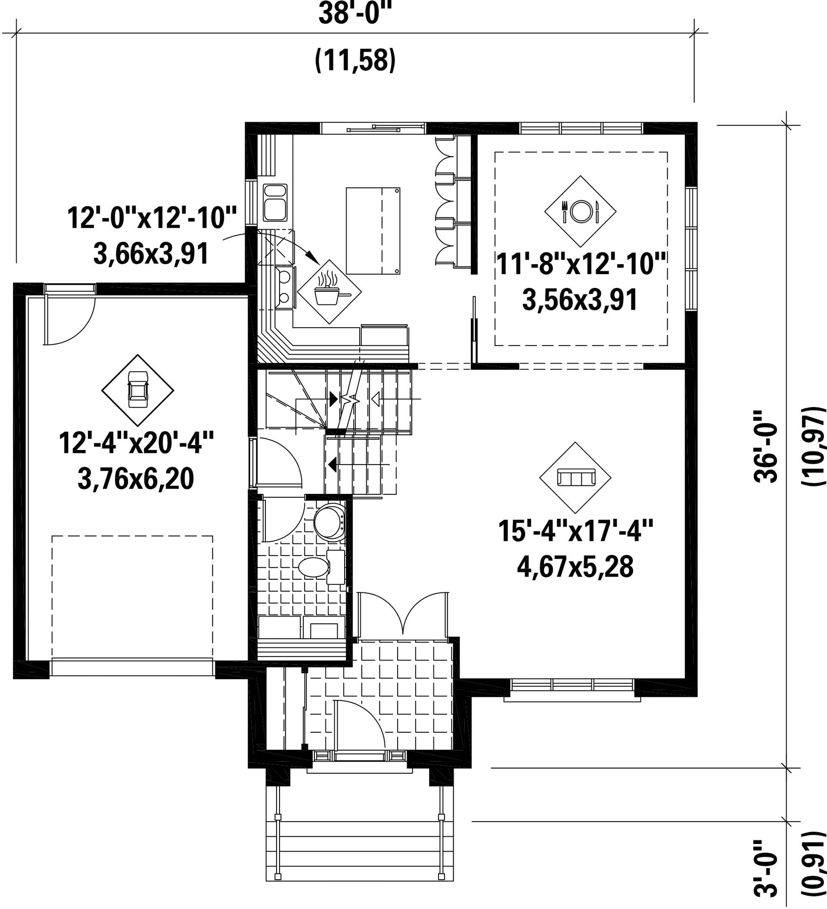
D'une surface de 850 pieds carrés, le rez-de-chaussée comporte un vestibule fermé, un salon, une salle à manger, une salle d'eau avec espace pour la laveuse et la sécheuse, une cuisine avec plusieurs espaces de rangement, un îlot et un comptoir repas. La maison dispose également d’un garage simple de 286 pieds carrés.
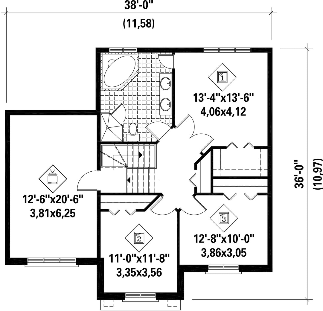
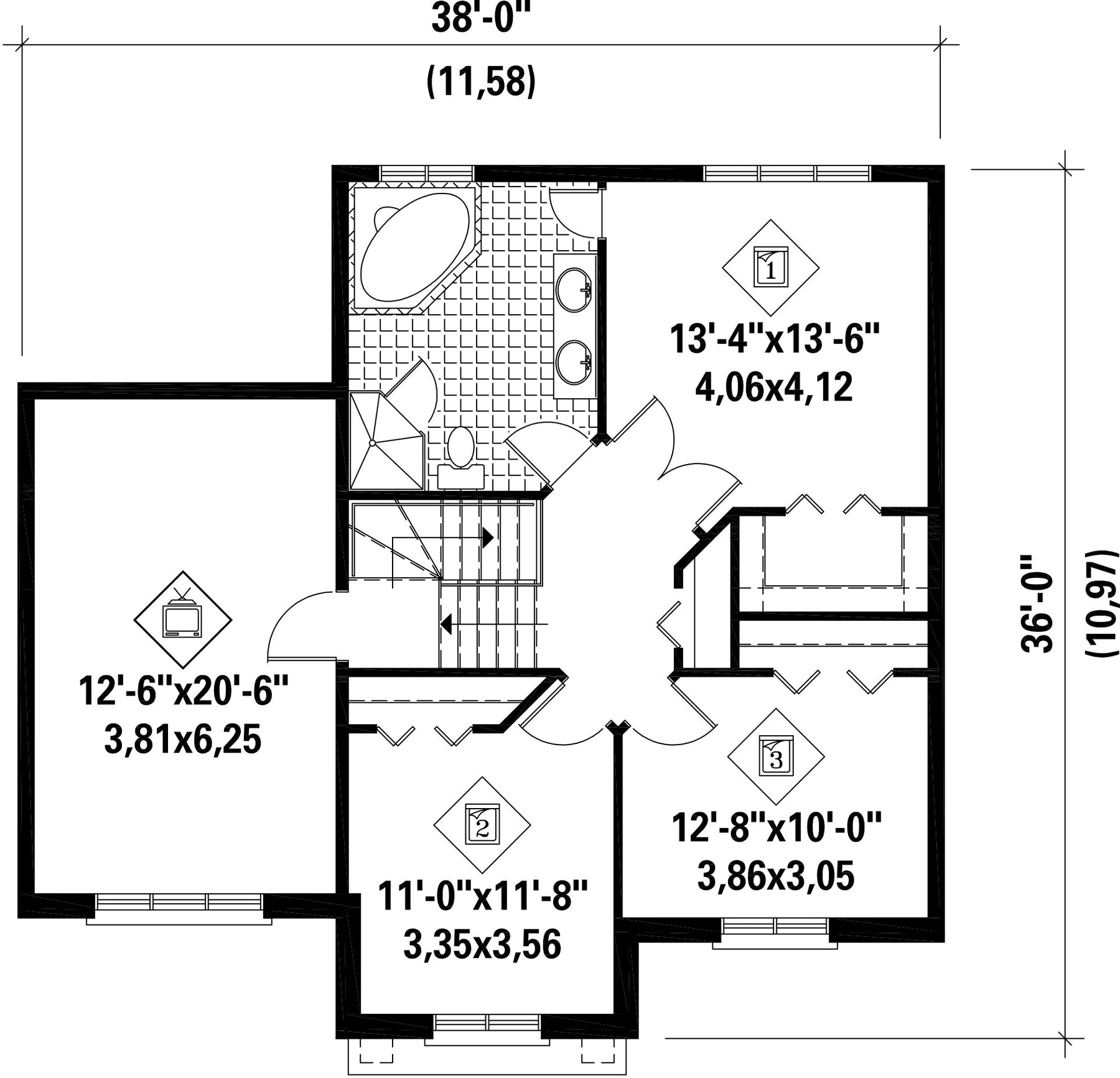
L'étage de 1 136 pieds carrés compte une salle de séjour située au-dessus du garage, une grande salle de bains avec bain podium, et trois chambres, dont une chambre des maîtres avec portes françaises et une vaste penderie.
D'une surface de 850 pieds carrés, le rez-de-chaussée comporte un vestibule fermé, un salon, une salle à manger, une salle d'eau avec espace pour la laveuse et la sécheuse, une cuisine avec plusieurs espaces de rangement, un îlot et un comptoir repas. La maison dispose également d’un garage simple de 286 pieds carrés.
L'étage de 1 136 pieds carrés compte une salle de séjour située au-dessus du garage, une grande salle de bains avec bain podium, et trois chambres, dont une chambre des maîtres avec portes françaises et une vaste penderie.
Caractéristiques
Mesures : Impérial| Style d'architecture | Européen |
Coût de construction
Montant approximatif équivalent à celui d'un entrepreneur général (région de la Rive-Sud de Montréal) pour une construction clé en main sans terrain ni infrastructures.
|
408989 $ |
|---|---|---|---|
| Façade | 38 pi | Surface habitable totale | 1986 pi² |
| Profondeur | 36 pi | Nombre de salles de bain | 1 |
| Hauteur | 35 pi 11 po | Nombre de chambres | 3 |
| Chambre des maîtres | Bain podium + Douche + Lavabo double + Penderie + Portes doubles + Toilettes | Chambre des maîtres - commentaires | Grande penderie dans la chambre des maîtres |
| Surface rez-de-chaussée | 850 pi² | Finition extérieure | Agrégats + Brique + Pierre |
| Surface étage | 1136 pi² | Type de cuisine | Comptoir repas + Salle à manger + Îlot |
| Surface garage | 286 pi² | Garage | 1 |
| Mur garage | 8 pi | Mur rez-de-chaussée | 9 pi |
| Mur étage | 8 pi | Inclinaison toit avant/arrière | 8/12 |
| Style d'architecture | Européen |
|---|---|
|
Coût de construction
Montant approximatif équivalent à celui d'un entrepreneur général (région de la Rive-Sud de Montréal) pour une construction clé en main sans terrain ni infrastructures.
|
408989 $ |
| Façade | 38 pi |
| Surface habitable totale | 1986 pi² |
| Profondeur | 36 pi |
| Nombre de salles de bain | 1 |
| Hauteur | 35 pi 11 po |
| Nombre de chambres | 3 |
| Chambre des maîtres | Bain podium + Douche + Lavabo double + Penderie + Portes doubles + Toilettes |
| Chambre des maîtres - commentaires | Grande penderie dans la chambre des maîtres |
| Surface rez-de-chaussée | 850 pi² |
| Finition extérieure | Agrégats + Brique + Pierre |
| Surface étage | 1136 pi² |
| Type de cuisine | Comptoir repas + Salle à manger + Îlot |
| Surface garage | 286 pi² |
| Garage | 1 |
| Mur garage | 8 pi |
| Mur rez-de-chaussée | 9 pi |
| Mur étage | 8 pi |
| Inclinaison toit avant/arrière | 8/12 |