Description
Cette prestigieuse maison à étage entièrement recouverte de pierres et d’aluminium se distingue par une abondante fenestration. Elle mesure 48 pieds de largeur sur 33 pieds de profondeur, offre une surface habitable de 2 330 pieds carrés, et dispose d'un garage simple de 364 pieds carrés.
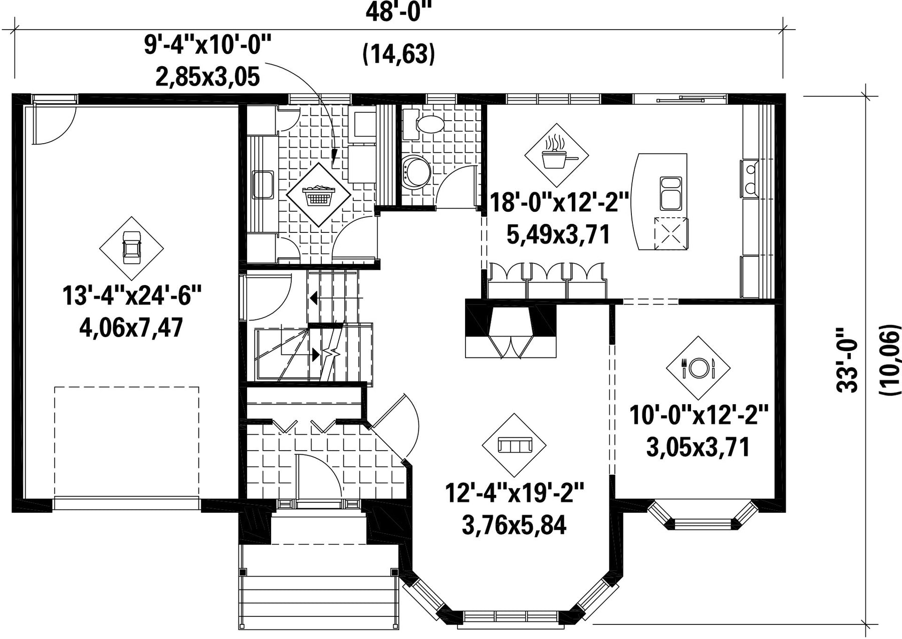
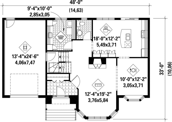
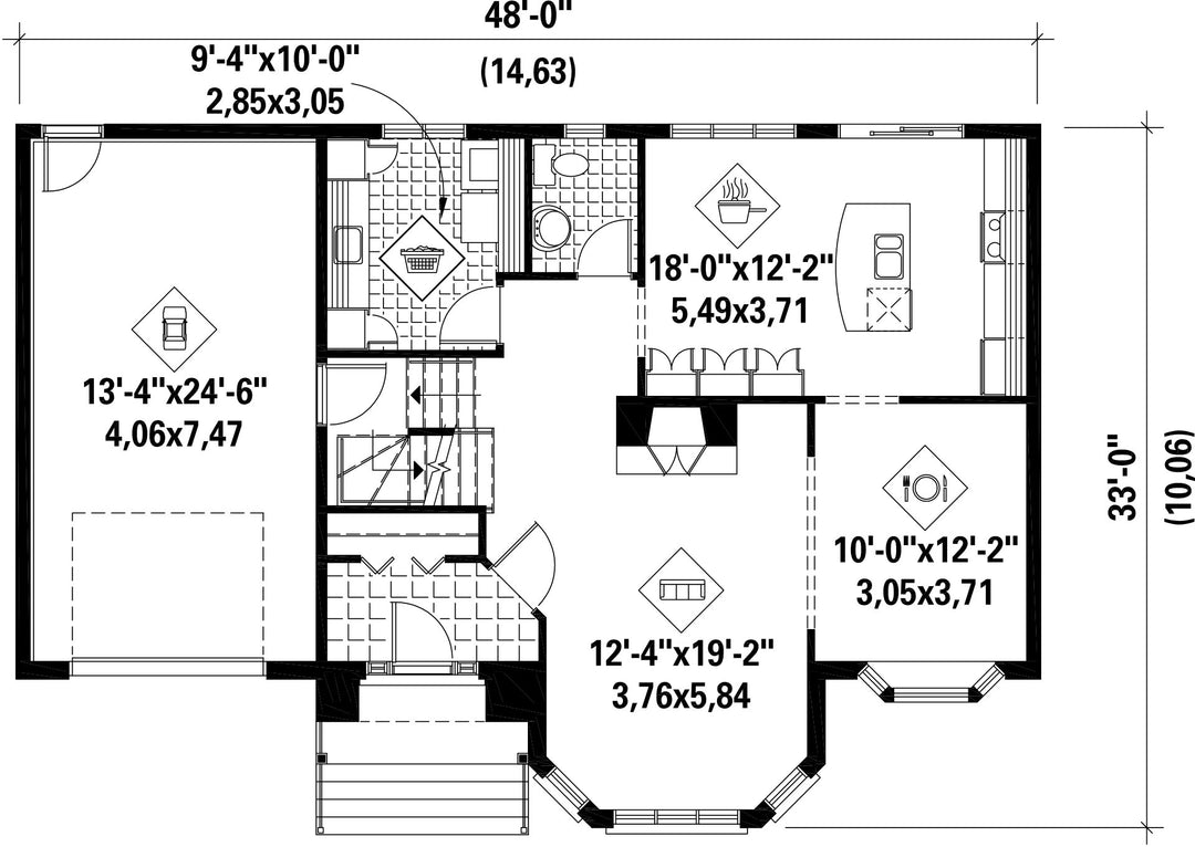
Le rez-de-chaussée occupe 973 pieds carrés et compte un grand salon avec foyer, une salle à manger, une vaste cuisine avec un îlot, une salle d’eau et une salle de lavage.
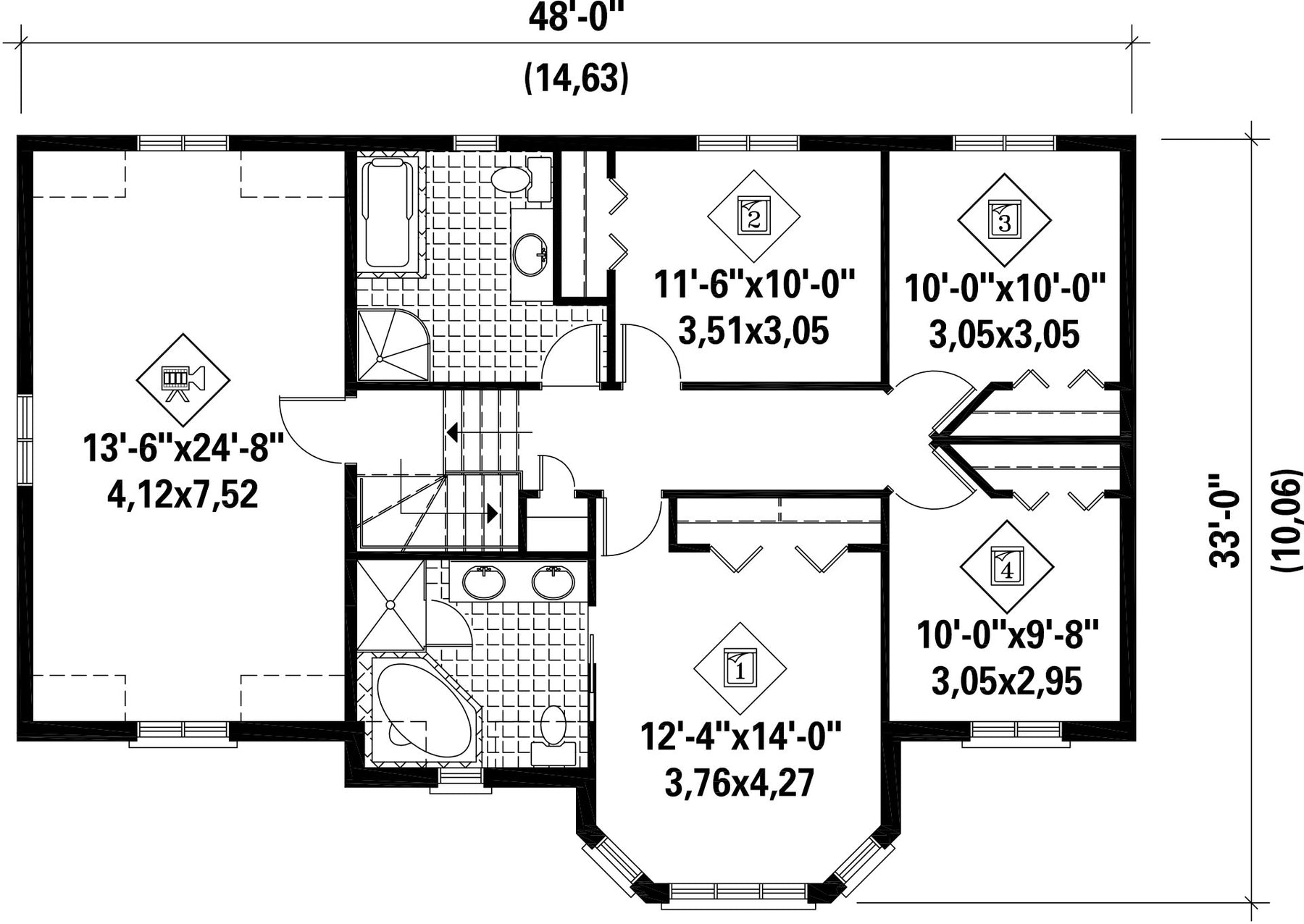
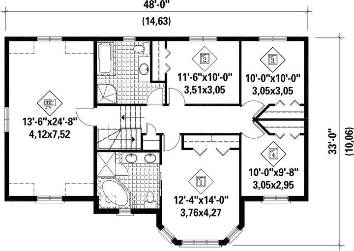
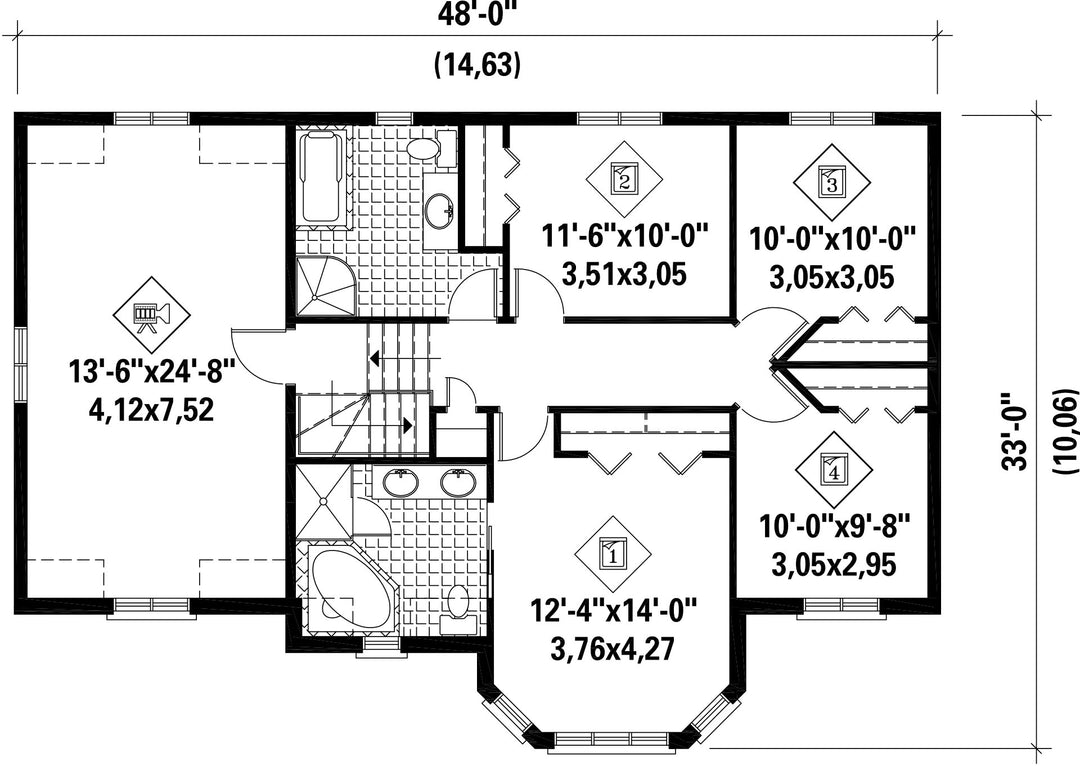
L’étage possède une superficie de 1 357 pieds carrés et comprend une salle de bains familiale, une pièce pouvant servir de salle familiale située au-dessus du garage, ainsi que quatre chambres dont une chambre principale avec salle de bains privée.
Le rez-de-chaussée occupe 973 pieds carrés et compte un grand salon avec foyer, une salle à manger, une vaste cuisine avec un îlot, une salle d’eau et une salle de lavage.
L’étage possède une superficie de 1 357 pieds carrés et comprend une salle de bains familiale, une pièce pouvant servir de salle familiale située au-dessus du garage, ainsi que quatre chambres dont une chambre principale avec salle de bains privée.
Caractéristiques
Mesures : Impérial| Style d'architecture | Européen |
Coût de construction
Montant approximatif équivalent à celui d'un entrepreneur général (région de la Rive-Sud de Montréal) pour une construction clé en main sans terrain ni infrastructures.
|
483206 $ |
|---|---|---|---|
| Façade | 48 pi | Surface habitable totale | 2330 pi² |
| Profondeur | 33 pi | Nombre de salles de bain | 2 |
| Hauteur | 35 pi 6 po | Nombre de chambres | 4 |
| Chambre des maîtres | Bain podium + Douche + Lavabo double + Toilettes | Chambre des maîtres - commentaires | Salle de bain des maîtres avec bain en coin |
| Surface rez-de-chaussée | 973 pi² | Finition extérieure | Aluminium + Pierre |
| Surface étage | 1357 pi² | Type de cuisine | Coin repas + Laboratoire + Salle à manger + Îlot |
| Surface garage | 364 pi² | Garage | 1 |
| Mur garage | 8 pi | Mur rez-de-chaussée | 8 pi |
| Mur étage | 8 pi | Inclinaison toit avant/arrière | 12/12 |
| Inclinaison toit gauche/droite | 12/12 |
| Style d'architecture | Européen |
|---|---|
|
Coût de construction
Montant approximatif équivalent à celui d'un entrepreneur général (région de la Rive-Sud de Montréal) pour une construction clé en main sans terrain ni infrastructures.
|
483206 $ |
| Façade | 48 pi |
| Surface habitable totale | 2330 pi² |
| Profondeur | 33 pi |
| Nombre de salles de bain | 2 |
| Hauteur | 35 pi 6 po |
| Nombre de chambres | 4 |
| Chambre des maîtres | Bain podium + Douche + Lavabo double + Toilettes |
| Chambre des maîtres - commentaires | Salle de bain des maîtres avec bain en coin |
| Surface rez-de-chaussée | 973 pi² |
| Finition extérieure | Aluminium + Pierre |
| Surface étage | 1357 pi² |
| Type de cuisine | Coin repas + Laboratoire + Salle à manger + Îlot |
| Surface garage | 364 pi² |
| Garage | 1 |
| Mur garage | 8 pi |
| Mur rez-de-chaussée | 8 pi |
| Mur étage | 8 pi |
| Inclinaison toit avant/arrière | 12/12 |
| Inclinaison toit gauche/droite | 12/12 |