Description
    
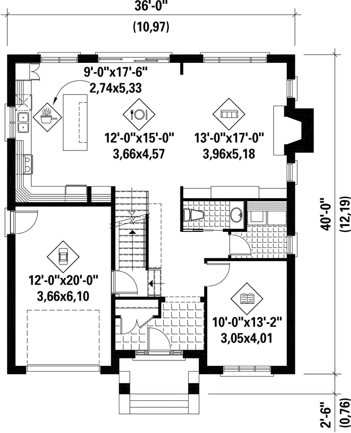
    	L’apparence de cette ravissante maison à étage avec façade de pierres et briques est rehaussée par les impostes aux fenêtres. La demeure, qui offre une surface habitable de 2 043 pieds carrés, mesure 36 pieds de largeur sur 40 pieds de profondeur. 
Avec 1 145 pieds carrés de surface habitable, le rez-de-chaussée compte une salle de lecture, une salle d’eau, une buanderie, un salon avec foyer, une grande cuisine à aire ouverte, une salle à manger ainsi qu’un garage simple de 275 pieds carrés.
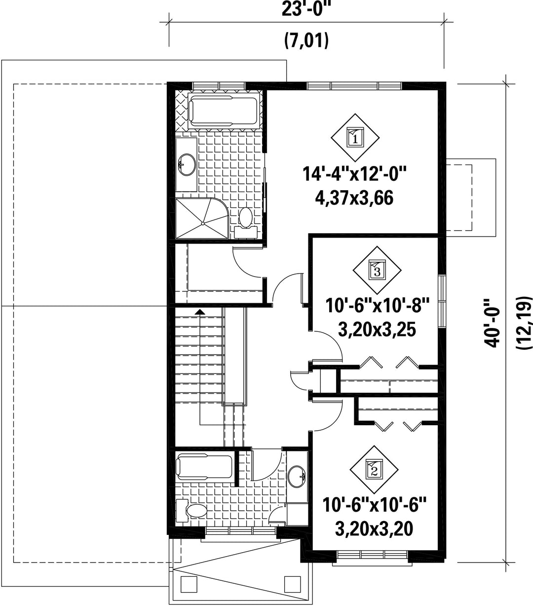
L’étage de 898 pieds carrés comprend une salle de bains et trois chambres dont une grande chambre principale avec salle de bains privée.
     
    
  
Avec 1 145 pieds carrés de surface habitable, le rez-de-chaussée compte une salle de lecture, une salle d’eau, une buanderie, un salon avec foyer, une grande cuisine à aire ouverte, une salle à manger ainsi qu’un garage simple de 275 pieds carrés.
L’étage de 898 pieds carrés comprend une salle de bains et trois chambres dont une grande chambre principale avec salle de bains privée.
Caractéristiques
Mesures : Impérial| Style d'architecture | Européen | 
                        
                            Coût de construction 
                             
                                
                                Montant approximatif équivalent à celui d'un entrepreneur général (région de la Rive-Sud de Montréal) pour une construction clé en main sans terrain ni infrastructures.
                             
                        
                        
                     | 
                    466556 $ | 
|---|---|---|---|
| Façade | 36 pi | Surface habitable totale | 2043 pi² | 
| Profondeur | 40 pi | Nombre de salles de bain | 2 | 
| Hauteur | 36 pi 8 po | Nombre de chambres | 3 | 
| Chambre des maîtres | Baignoire + Douche + Lavabo simple + Penderie + Toilettes | Chambre des maîtres - commentaires | Chambre des maîtres de bonnes dimensions avec salle de bain privée | 
| Surface rez-de-chaussée | 1145 pi² | Finition extérieure | Aluminium + Brique + Pierre | 
| Surface étage | 898 pi² | Type de cuisine | Comptoir repas + Forme en L + Îlot | 
| Surface garage | 275 pi² | Garage | 1 | 
| Mur garage | 8 pi | Mur rez-de-chaussée | 9 pi | 
| Mur étage | 8 pi | Inclinaison toit avant/arrière | 8/12 | 
| Style d'architecture | Européen | 
|---|---|
| 
                        
                            Coût de construction 
                             
                                
                                Montant approximatif équivalent à celui d'un entrepreneur général (région de la Rive-Sud de Montréal) pour une construction clé en main sans terrain ni infrastructures.
                             
                        
                        
                     | 
                    466556 $ | 
| Façade | 36 pi | 
| Surface habitable totale | 2043 pi² | 
| Profondeur | 40 pi | 
| Nombre de salles de bain | 2 | 
| Hauteur | 36 pi 8 po | 
| Nombre de chambres | 3 | 
| Chambre des maîtres | Baignoire + Douche + Lavabo simple + Penderie + Toilettes | 
| Chambre des maîtres - commentaires | Chambre des maîtres de bonnes dimensions avec salle de bain privée | 
| Surface rez-de-chaussée | 1145 pi² | 
| Finition extérieure | Aluminium + Brique + Pierre | 
| Surface étage | 898 pi² | 
| Type de cuisine | Comptoir repas + Forme en L + Îlot | 
| Surface garage | 275 pi² | 
| Garage | 1 | 
| Mur garage | 8 pi | 
| Mur rez-de-chaussée | 9 pi | 
| Mur étage | 8 pi | 
| Inclinaison toit avant/arrière | 8/12 |