Description
Avec son revêtement de briques et de pierres, cette maison à étage se veut à la fois moderne et invitante. Elle mesure 36 pieds de largeur sur 40 pieds de profondeur, offre une surface habitable de 2 565 pieds carrés et possède un garage simple de 225 pieds carrés.
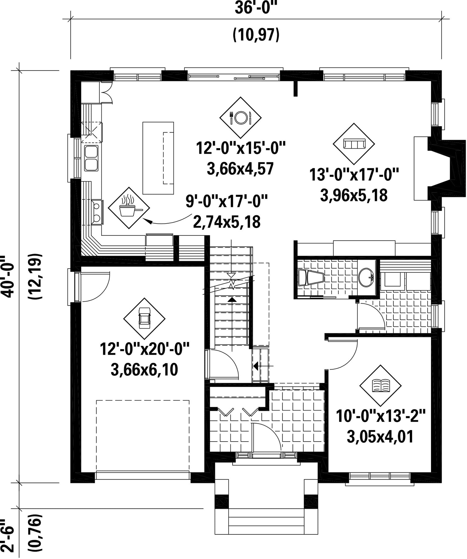
Le rez-de-chaussée occupe 1 145 pieds carrés et comporte un vestibule, une salle de lecture, une salle d'eau, une salle de lavage, et une vaste aire ouverte comprenant un salon avec foyer, une salle à manger et une grande cuisine avec îlot.
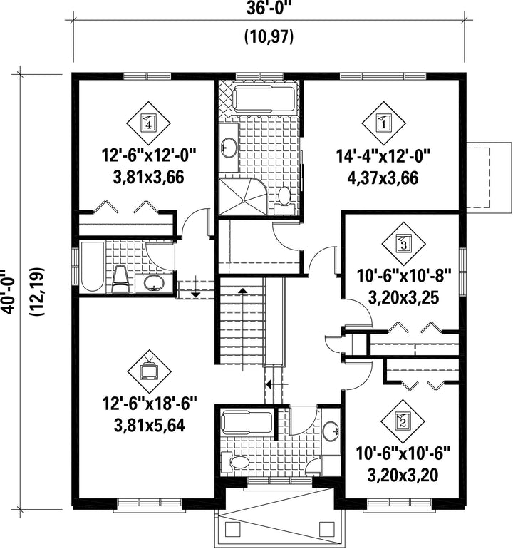
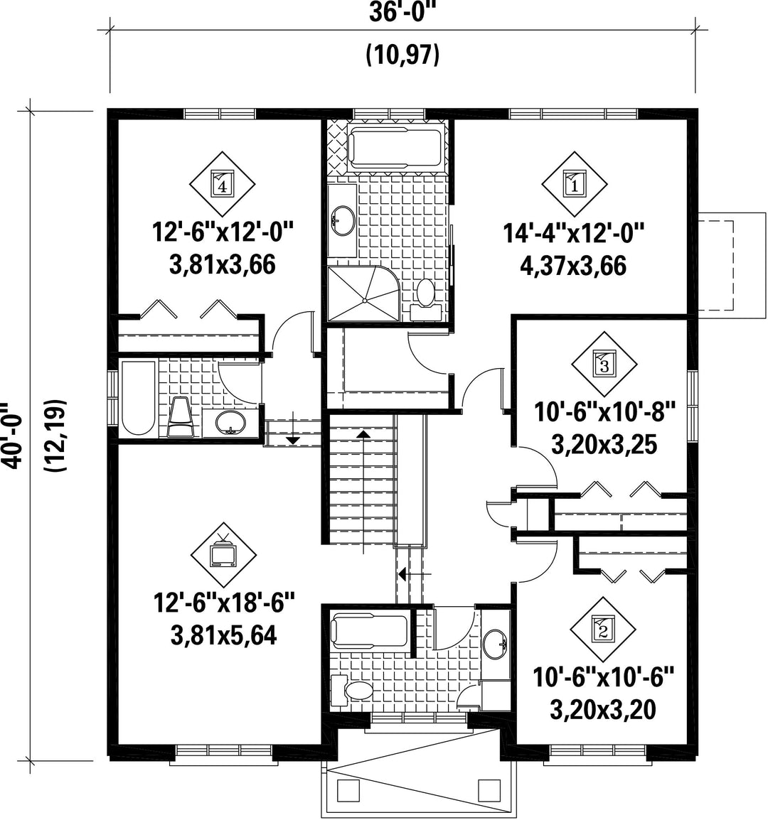
L'étage est réparti sur 1 420 pieds carrés et compte une salle familiale au-dessus du garage, deux salles de bains, et quatre chambres, dont une chambre principale disposant d’une grande penderie et d’une salle de bains privée.
Le rez-de-chaussée occupe 1 145 pieds carrés et comporte un vestibule, une salle de lecture, une salle d'eau, une salle de lavage, et une vaste aire ouverte comprenant un salon avec foyer, une salle à manger et une grande cuisine avec îlot.
L'étage est réparti sur 1 420 pieds carrés et compte une salle familiale au-dessus du garage, deux salles de bains, et quatre chambres, dont une chambre principale disposant d’une grande penderie et d’une salle de bains privée.
Caractéristiques
Mesures : Impérial| Style d'architecture | Européen |
Coût de construction
Montant approximatif équivalent à celui d'un entrepreneur général (région de la Rive-Sud de Montréal) pour une construction clé en main sans terrain ni infrastructures.
|
526312 $ |
|---|---|---|---|
| Façade | 36 pi | Surface habitable totale | 2565 pi² |
| Profondeur | 40 pi | Nombre de salles de bain | 3 |
| Hauteur | 36 pi 8 po | Nombre de chambres | 4 |
| Chambre des maîtres | Bain podium + Douche + Lavabo simple + Penderie + Toilettes | Chambre des maîtres - commentaires | Grande fenêtre dans la chambre des maîtres |
| Surface rez-de-chaussée | 1145 pi² | Finition extérieure | Aluminium + Brique + Pierre |
| Surface étage | 1420 pi² | Type de cuisine | Comptoir repas + Forme en L + Îlot |
| Surface garage | 225 pi² | Garage | 1 |
| Mur garage | 8 pi | Mur rez-de-chaussée | 9 pi |
| Mur étage | 8 pi | Inclinaison toit avant/arrière | 8/12 |
| Inclinaison toit gauche/droite | 8/12 |
| Style d'architecture | Européen |
|---|---|
|
Coût de construction
Montant approximatif équivalent à celui d'un entrepreneur général (région de la Rive-Sud de Montréal) pour une construction clé en main sans terrain ni infrastructures.
|
526312 $ |
| Façade | 36 pi |
| Surface habitable totale | 2565 pi² |
| Profondeur | 40 pi |
| Nombre de salles de bain | 3 |
| Hauteur | 36 pi 8 po |
| Nombre de chambres | 4 |
| Chambre des maîtres | Bain podium + Douche + Lavabo simple + Penderie + Toilettes |
| Chambre des maîtres - commentaires | Grande fenêtre dans la chambre des maîtres |
| Surface rez-de-chaussée | 1145 pi² |
| Finition extérieure | Aluminium + Brique + Pierre |
| Surface étage | 1420 pi² |
| Type de cuisine | Comptoir repas + Forme en L + Îlot |
| Surface garage | 225 pi² |
| Garage | 1 |
| Mur garage | 8 pi |
| Mur rez-de-chaussée | 9 pi |
| Mur étage | 8 pi |
| Inclinaison toit avant/arrière | 8/12 |
| Inclinaison toit gauche/droite | 8/12 |