Description
Cette prestigieuse maison à étage avec mezzanine se distingue par son revêtement extérieur composé de bardeaux de cèdre, de pierres et d’aluminium posé à l’horizontale. La résidence mesure 61 pieds de largeur sur 58 pieds de profondeur et possède une surface habitable de 3 151 pieds carrés.
Le rez-de-chaussée dispose d’une surface habitable de 1 666 pieds carrés et compte une salle de lecture, un salon, une vaste cuisine avec coin-repas, une salle à manger, un solarium, une salle familiale avec foyer, une salle d’eau, une buanderie et un garage double de 550 pieds carrés.
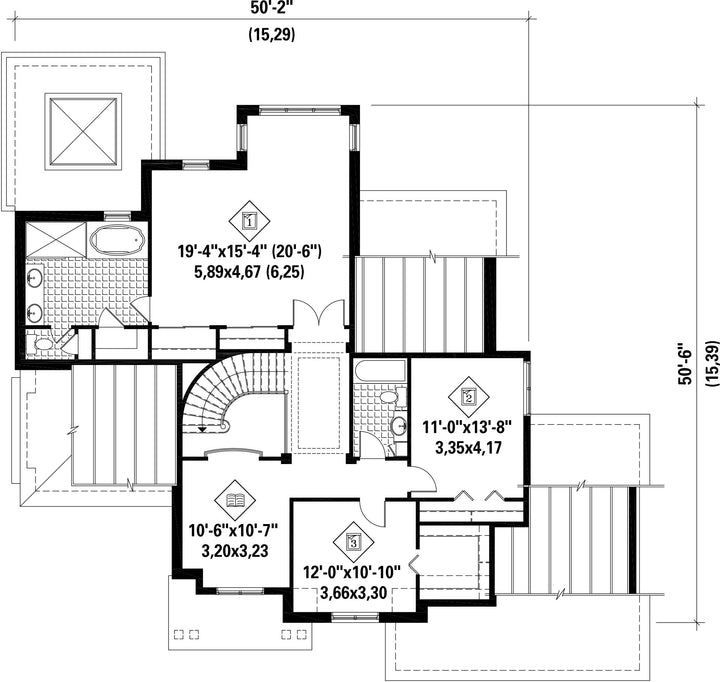
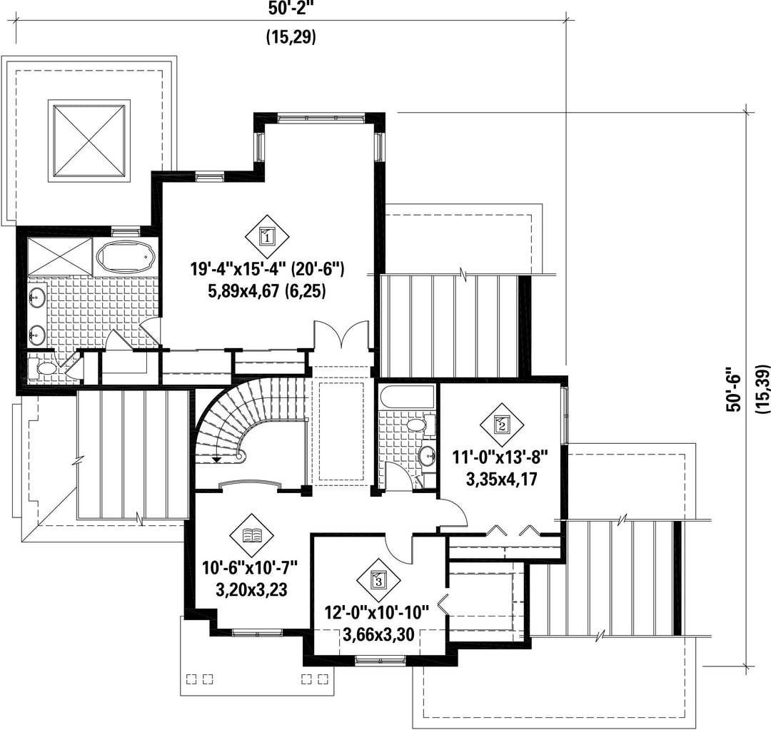
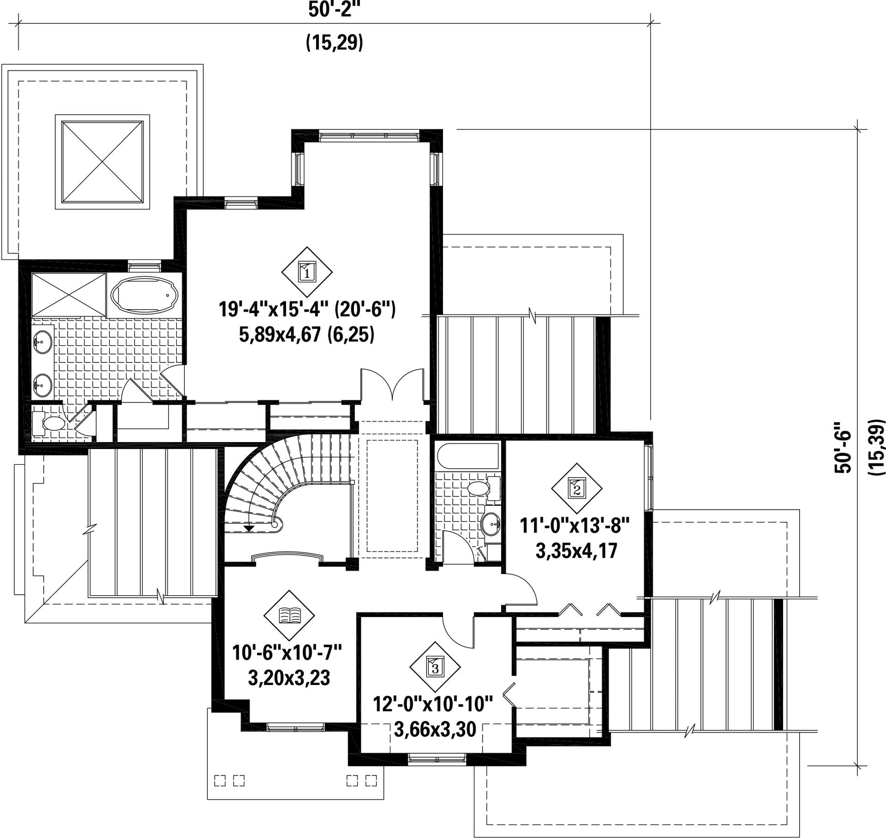
Avec ses 1 485 pieds carrés, l’étage comprend un coin lecture, une salle de bains, trois chambres, dont une spacieuse chambre des maîtres avec salle de bain privée.
Le rez-de-chaussée dispose d’une surface habitable de 1 666 pieds carrés et compte une salle de lecture, un salon, une vaste cuisine avec coin-repas, une salle à manger, un solarium, une salle familiale avec foyer, une salle d’eau, une buanderie et un garage double de 550 pieds carrés.
Avec ses 1 485 pieds carrés, l’étage comprend un coin lecture, une salle de bains, trois chambres, dont une spacieuse chambre des maîtres avec salle de bain privée.
Caractéristiques
Mesures : Impérial| Style d'architecture | Européen |
Coût de construction
Montant approximatif équivalent à celui d'un entrepreneur général (région de la Rive-Sud de Montréal) pour une construction clé en main sans terrain ni infrastructures.
|
742571 $ |
|---|---|---|---|
| Façade | 61 pi | Surface habitable totale | 3151 pi² |
| Profondeur | 58 pi | Nombre de salles de bain | 2 |
| Hauteur | 38 pi 7 po | Nombre de chambres | 3 |
| Chambre des maîtres | Bain podium + Douche + Lavabo double + Penderie + Portes doubles + Toilettes | Chambre des maîtres - commentaires | Vaste chambre des maîtres avec salle de bain privée |
| Surface rez-de-chaussée | 1666 pi² | Finition extérieure | Aluminium + Bardeau de cèdre + Pierre |
| Surface étage | 1485 pi² | Type de cuisine | Coin repas + Comptoir repas + Salle à manger + Îlot |
| Surface garage | 550 pi² | Garage | 2 |
| Mur garage | 8 pi | Mur rez-de-chaussée | 9 pi |
| Mur étage | 9 pi | Inclinaison toit avant/arrière | 10/12 |
| Inclinaison toit gauche/droite | 14/12 |
| Style d'architecture | Européen |
|---|---|
|
Coût de construction
Montant approximatif équivalent à celui d'un entrepreneur général (région de la Rive-Sud de Montréal) pour une construction clé en main sans terrain ni infrastructures.
|
742571 $ |
| Façade | 61 pi |
| Surface habitable totale | 3151 pi² |
| Profondeur | 58 pi |
| Nombre de salles de bain | 2 |
| Hauteur | 38 pi 7 po |
| Nombre de chambres | 3 |
| Chambre des maîtres | Bain podium + Douche + Lavabo double + Penderie + Portes doubles + Toilettes |
| Chambre des maîtres - commentaires | Vaste chambre des maîtres avec salle de bain privée |
| Surface rez-de-chaussée | 1666 pi² |
| Finition extérieure | Aluminium + Bardeau de cèdre + Pierre |
| Surface étage | 1485 pi² |
| Type de cuisine | Coin repas + Comptoir repas + Salle à manger + Îlot |
| Surface garage | 550 pi² |
| Garage | 2 |
| Mur garage | 8 pi |
| Mur rez-de-chaussée | 9 pi |
| Mur étage | 9 pi |
| Inclinaison toit avant/arrière | 10/12 |
| Inclinaison toit gauche/droite | 14/12 |