Description
    
    	Cette grande maison à étage comprend une pièce aménagée au-dessus du garage simple. La demeure, qui mesure 36 pieds de largeur sur 34 pieds de profondeur, offre une surface habitable de 1 834 pieds carrés.
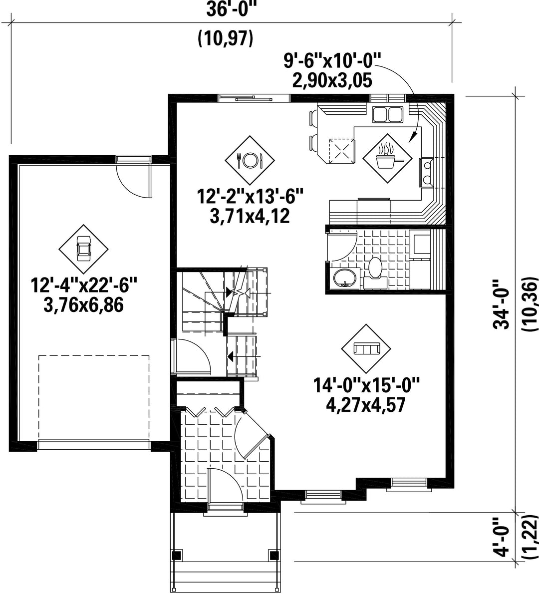
Le rez-de-chaussée, qui fait 761 pieds carrés, comporte une cuisine, une salle à manger, une salle d’eau, un salon, et est relié à un garage simple.
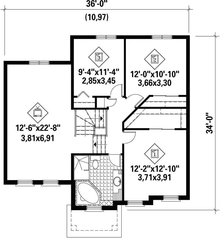
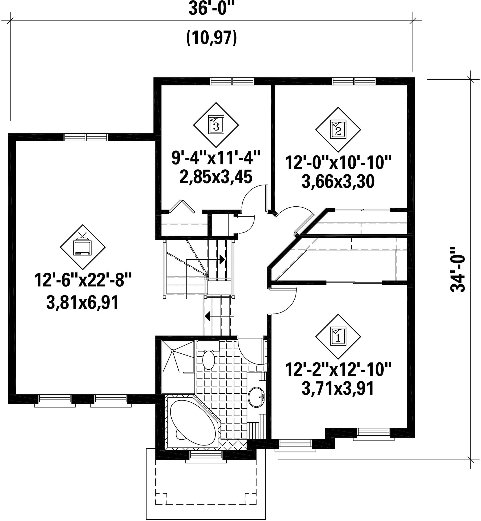
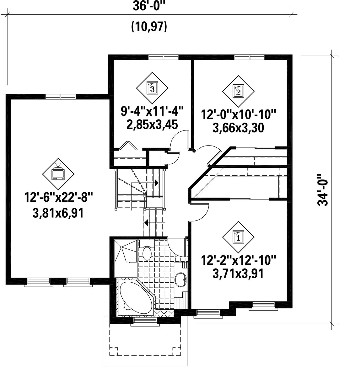
L’étage de 1 073 pieds carrés comprend une chambre principale avec penderie, deux chambres supplémentaires, une salle de bains et une salle familiale située au-dessus du garage.
     
    
  
Le rez-de-chaussée, qui fait 761 pieds carrés, comporte une cuisine, une salle à manger, une salle d’eau, un salon, et est relié à un garage simple.
L’étage de 1 073 pieds carrés comprend une chambre principale avec penderie, deux chambres supplémentaires, une salle de bains et une salle familiale située au-dessus du garage.
Caractéristiques
Mesures : Impérial| Style d'architecture | Européen | 
                        
                            Coût de construction 
                             
                                
                                Montant approximatif équivalent à celui d'un entrepreneur général (région de la Rive-Sud de Montréal) pour une construction clé en main sans terrain ni infrastructures.
                             
                        
                        
                     | 
                    361110 $ | 
|---|---|---|---|
| Façade | 36 pi | Surface habitable totale | 1834 pi² | 
| Profondeur | 34 pi | Nombre de salles de bain | 1 | 
| Hauteur | 32 pi 7 po | Nombre de chambres | 3 | 
| Chambre des maîtres | Penderie | Chambre des maîtres - commentaires | Grande penderie | 
| Surface rez-de-chaussée | 761 pi² | Finition extérieure | Aluminium + Bardeau de cèdre + Brique + Pierre | 
| Surface étage | 1073 pi² | ||
| Surface garage | 312 pi² | Garage | 1 | 
| Mur garage | 8 pi | Mur rez-de-chaussée | 8 pi | 
| Mur étage | 8 pi | Inclinaison toit avant/arrière | 8/12 | 
| Style d'architecture | Européen | 
|---|---|
| 
                        
                            Coût de construction 
                             
                                
                                Montant approximatif équivalent à celui d'un entrepreneur général (région de la Rive-Sud de Montréal) pour une construction clé en main sans terrain ni infrastructures.
                             
                        
                        
                     | 
                    361110 $ | 
| Façade | 36 pi | 
| Surface habitable totale | 1834 pi² | 
| Profondeur | 34 pi | 
| Nombre de salles de bain | 1 | 
| Hauteur | 32 pi 7 po | 
| Nombre de chambres | 3 | 
| Chambre des maîtres | Penderie | 
| Chambre des maîtres - commentaires | Grande penderie | 
| Surface rez-de-chaussée | 761 pi² | 
| Finition extérieure | Aluminium + Bardeau de cèdre + Brique + Pierre | 
| Surface étage | 1073 pi² | 
| Surface garage | 312 pi² | 
| Garage | 1 | 
| Mur garage | 8 pi | 
| Mur rez-de-chaussée | 8 pi | 
| Mur étage | 8 pi | 
| Inclinaison toit avant/arrière | 8/12 |