Description
    
    	Cette jolie maison à étage mesure 46 pieds de largeur sur 34 pieds de profondeur et offre une surface habitable de 1 927 pieds carrés. Le garage de 341 pieds carrés peut loger une voiture.
Le rez-de-chaussée occupe 926 pieds carrés et comprend un vestibule avec un grand placard, une salle d’eau, un espace pour la laveuse et la sécheuse, un salon, une salle à manger et une cuisine pouvant être équipée d’une banquette ou d’un îlot. Toutes ces pièces ont des plafonds de 9 pieds de hauteur.
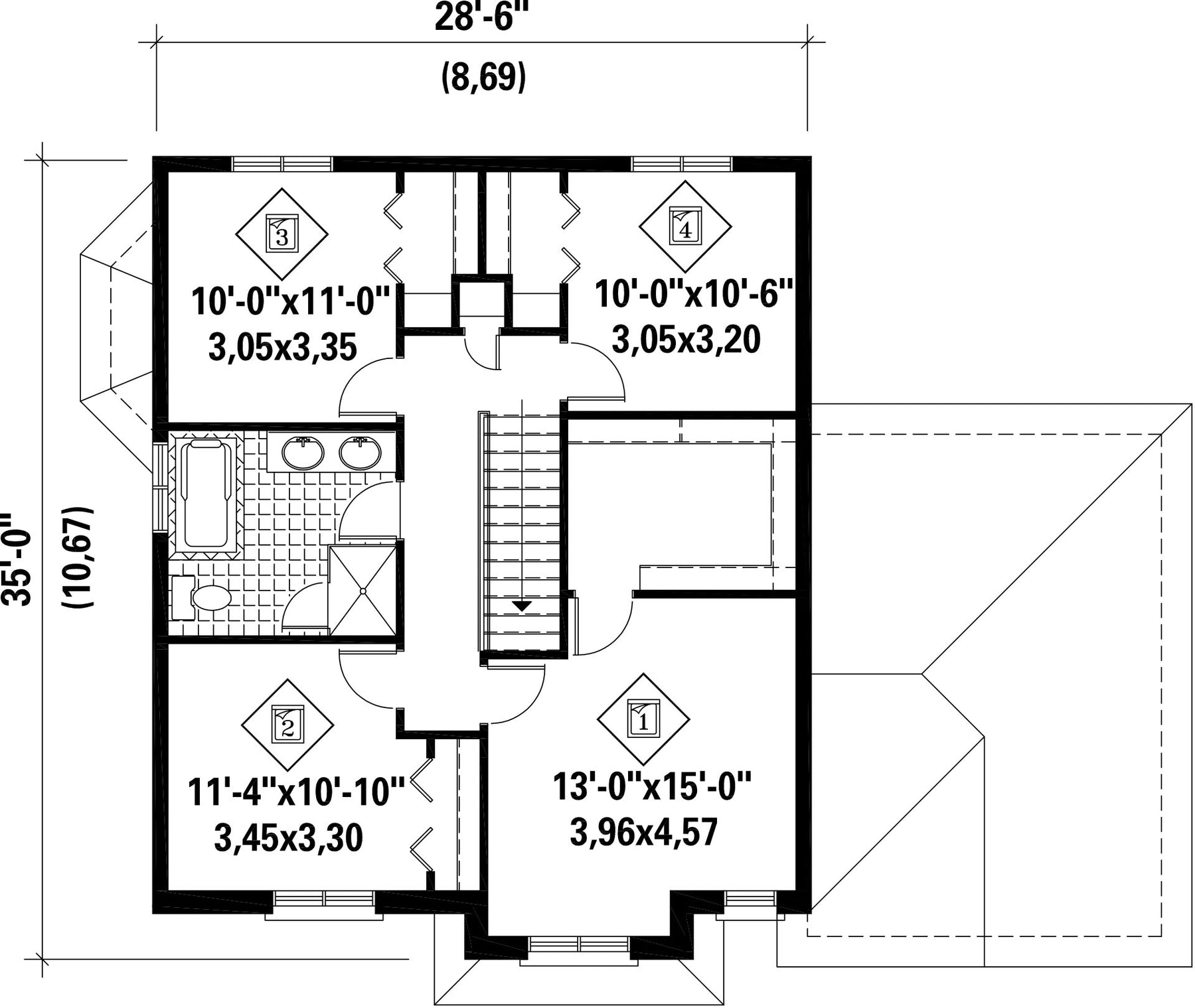
L'étage possède une surface habitable de 961 pieds carrés et comprend une grande chambre des maîtres disposant d’une vaste penderie, trois chambres secondaires, ainsi qu'une salle de bains.
     
    
  
Le rez-de-chaussée occupe 926 pieds carrés et comprend un vestibule avec un grand placard, une salle d’eau, un espace pour la laveuse et la sécheuse, un salon, une salle à manger et une cuisine pouvant être équipée d’une banquette ou d’un îlot. Toutes ces pièces ont des plafonds de 9 pieds de hauteur.
L'étage possède une surface habitable de 961 pieds carrés et comprend une grande chambre des maîtres disposant d’une vaste penderie, trois chambres secondaires, ainsi qu'une salle de bains.
Caractéristiques
Mesures : Impérial| Style d'architecture | Européen | 
                        
                            Coût de construction 
                             
                                
                                Montant approximatif équivalent à celui d'un entrepreneur général (région de la Rive-Sud de Montréal) pour une construction clé en main sans terrain ni infrastructures.
                             
                        
                        
                     | 
                    444392 $ | 
|---|---|---|---|
| Façade | 46 pi | Surface habitable totale | 1927 pi² | 
| Profondeur | 34 pi | Nombre de salles de bain | 1 | 
| Hauteur | 38 pi 5 po | Nombre de chambres | 4 | 
| Chambre des maîtres | Penderie | Chambre des maîtres - commentaires | Chambre des maîtres avec très grande penderie | 
| Surface rez-de-chaussée | 966 pi² | Finition extérieure | Agrégats + Brique + Pierre | 
| Surface étage | 961 pi² | Type de cuisine | Forme en L + Salle à manger | 
| Surface garage | 341 pi² | Garage | 1 | 
| Mur garage | 8 pi | Mur rez-de-chaussée | 9 pi | 
| Mur étage | 8 pi | Inclinaison toit avant/arrière | 12/12 | 
| Inclinaison toit gauche/droite | 12/12 | 
| Style d'architecture | Européen | 
|---|---|
| 
                        
                            Coût de construction 
                             
                                
                                Montant approximatif équivalent à celui d'un entrepreneur général (région de la Rive-Sud de Montréal) pour une construction clé en main sans terrain ni infrastructures.
                             
                        
                        
                     | 
                    444392 $ | 
| Façade | 46 pi | 
| Surface habitable totale | 1927 pi² | 
| Profondeur | 34 pi | 
| Nombre de salles de bain | 1 | 
| Hauteur | 38 pi 5 po | 
| Nombre de chambres | 4 | 
| Chambre des maîtres | Penderie | 
| Chambre des maîtres - commentaires | Chambre des maîtres avec très grande penderie | 
| Surface rez-de-chaussée | 966 pi² | 
| Finition extérieure | Agrégats + Brique + Pierre | 
| Surface étage | 961 pi² | 
| Type de cuisine | Forme en L + Salle à manger | 
| Surface garage | 341 pi² | 
| Garage | 1 | 
| Mur garage | 8 pi | 
| Mur rez-de-chaussée | 9 pi | 
| Mur étage | 8 pi | 
| Inclinaison toit avant/arrière | 12/12 | 
| Inclinaison toit gauche/droite | 12/12 |