Description
    
    	Cette splendide maison à étage avec revêtement de briques et de pierres mesure 46 pieds de largeur sur 34 pieds de profondeur, et possède une superficie habitable de 1 927 pieds carrés.
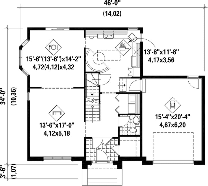
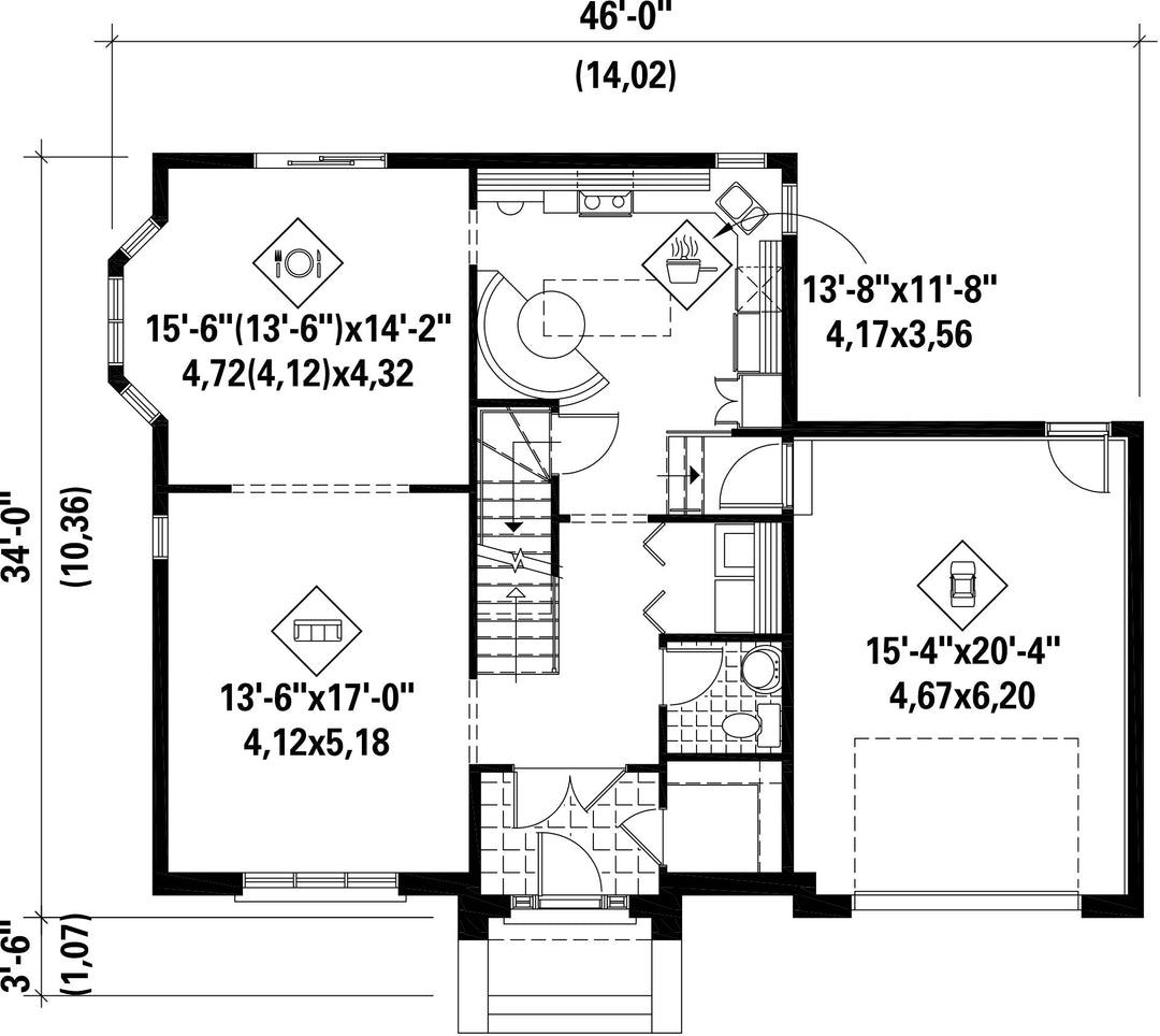
Au rez-de-chaussée, qui fait 966 pieds carrés, on retrouve un vestibule fermé, une salle d'eau, un grand placard pour la laveuse et la sécheuse, un salon, une cuisine avec îlot et coin-repas, une salle à manger et un garage simple de 341 pieds carrés.
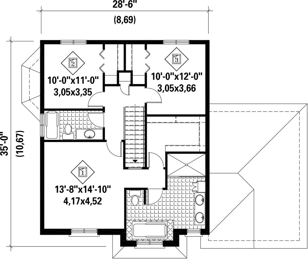
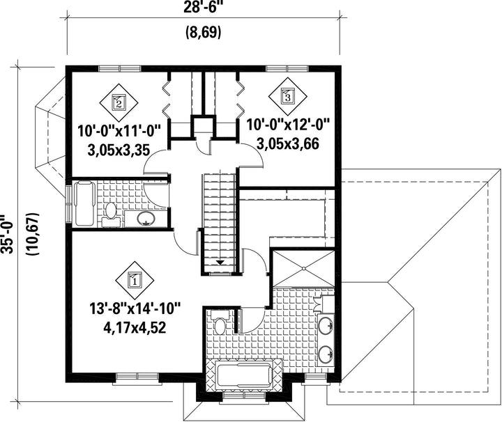
L'étage de 961 pieds carrés comprend une salle de bains et trois chambres à coucher, dont une chambre principale disposant d’une grande salle de bains privée et d’une immense penderie.
     
    
  
Au rez-de-chaussée, qui fait 966 pieds carrés, on retrouve un vestibule fermé, une salle d'eau, un grand placard pour la laveuse et la sécheuse, un salon, une cuisine avec îlot et coin-repas, une salle à manger et un garage simple de 341 pieds carrés.
L'étage de 961 pieds carrés comprend une salle de bains et trois chambres à coucher, dont une chambre principale disposant d’une grande salle de bains privée et d’une immense penderie.
Caractéristiques
Mesures : Impérial| Style d'architecture | Européen | 
                        
                            Coût de construction 
                             
                                
                                Montant approximatif équivalent à celui d'un entrepreneur général (région de la Rive-Sud de Montréal) pour une construction clé en main sans terrain ni infrastructures.
                             
                        
                        
                     | 
                    411561 $ | 
|---|---|---|---|
| Façade | 46 pi | Surface habitable totale | 1927 pi² | 
| Profondeur | 34 pi | Nombre de salles de bain | 2 | 
| Hauteur | 38 pi 5 po | Nombre de chambres | 3 | 
| Chambre des maîtres | Baignoire + Douche + Lavabo double + Penderie + Toilettes | Chambre des maîtres - commentaires | Chambre des maîtres à l'avant de la maison avec salle de bain privée | 
| Surface rez-de-chaussée | 966 pi² | Finition extérieure | Agrégats + Brique + Pierre | 
| Surface étage | 961 pi² | Type de cuisine | Forme en L + Salle à manger | 
| Surface garage | 341 pi² | Garage | 1 | 
| Mur garage | 8 pi | Mur rez-de-chaussée | 9 pi | 
| Mur étage | 8 pi | Inclinaison toit avant/arrière | 12/12 | 
| Inclinaison toit gauche/droite | 12/12 | 
| Style d'architecture | Européen | 
|---|---|
| 
                        
                            Coût de construction 
                             
                                
                                Montant approximatif équivalent à celui d'un entrepreneur général (région de la Rive-Sud de Montréal) pour une construction clé en main sans terrain ni infrastructures.
                             
                        
                        
                     | 
                    411561 $ | 
| Façade | 46 pi | 
| Surface habitable totale | 1927 pi² | 
| Profondeur | 34 pi | 
| Nombre de salles de bain | 2 | 
| Hauteur | 38 pi 5 po | 
| Nombre de chambres | 3 | 
| Chambre des maîtres | Baignoire + Douche + Lavabo double + Penderie + Toilettes | 
| Chambre des maîtres - commentaires | Chambre des maîtres à l'avant de la maison avec salle de bain privée | 
| Surface rez-de-chaussée | 966 pi² | 
| Finition extérieure | Agrégats + Brique + Pierre | 
| Surface étage | 961 pi² | 
| Type de cuisine | Forme en L + Salle à manger | 
| Surface garage | 341 pi² | 
| Garage | 1 | 
| Mur garage | 8 pi | 
| Mur rez-de-chaussée | 9 pi | 
| Mur étage | 8 pi | 
| Inclinaison toit avant/arrière | 12/12 | 
| Inclinaison toit gauche/droite | 12/12 |