Description
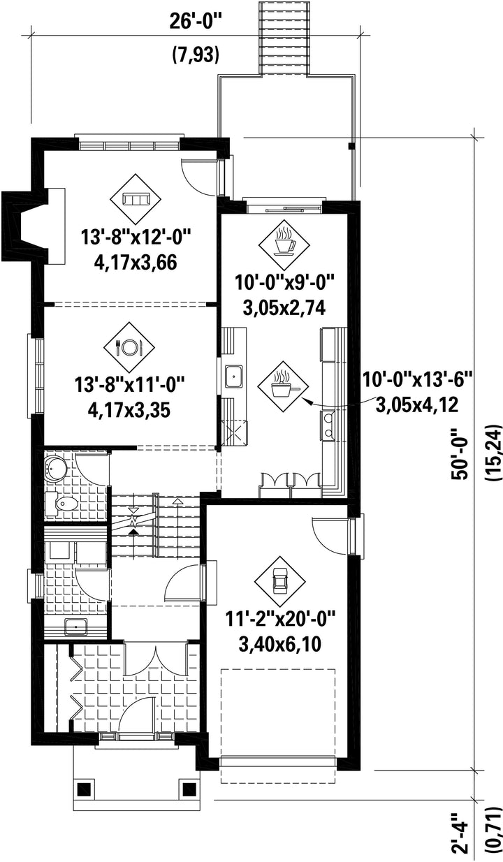
Cette maison à étage entièrement revêtue de brique et de pierres se distingue des autres par son faux balcon français au-dessus de l'entrée et ses multiples paliers à l’intérieur. La résidence de 26 pieds de largeur sur 50 pieds de profondeur a une surface habitable de 2 198 pieds carrés.
Avec ses 966 pieds carrés de surface habitable, le rez-de-chaussée compte une buanderie, une salle d’eau, une cuisine avec coin-repas et passe-plat vers la salle à manger, ainsi qu’un salon avec foyer et un accès direct à la terrasse arrière. Le garage, qui occupe une surface de 257 pieds carrés, peut loger une voiture et possède une porte de service sur le côté.
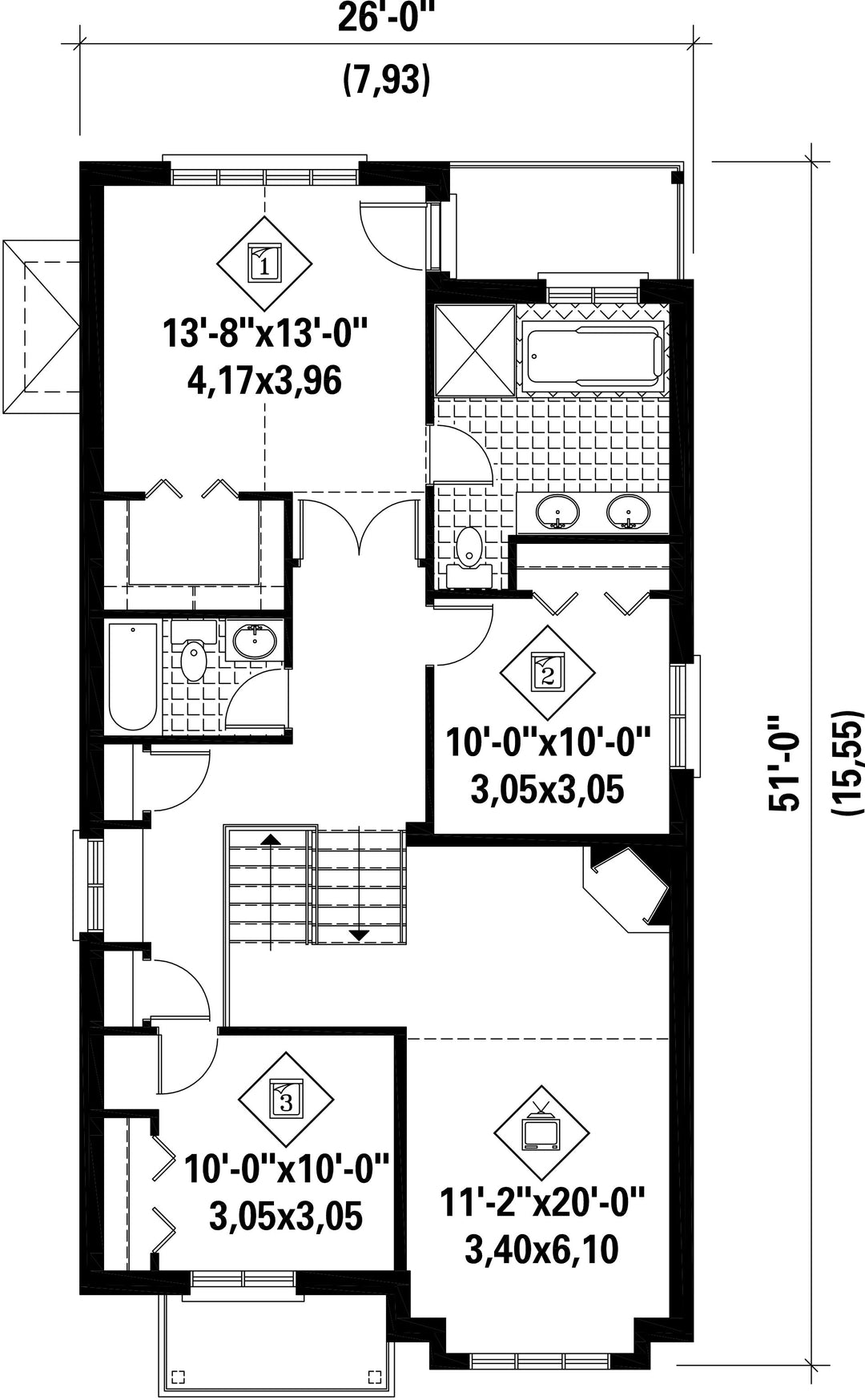
L’étage de 1 232 pieds carrés comprend une salle familiale avec foyer, une salle de bains et trois chambres, dont une chambre principale avec une grande penderie, une salle de bains privée et un balcon extérieur.
Avec ses 966 pieds carrés de surface habitable, le rez-de-chaussée compte une buanderie, une salle d’eau, une cuisine avec coin-repas et passe-plat vers la salle à manger, ainsi qu’un salon avec foyer et un accès direct à la terrasse arrière. Le garage, qui occupe une surface de 257 pieds carrés, peut loger une voiture et possède une porte de service sur le côté.
L’étage de 1 232 pieds carrés comprend une salle familiale avec foyer, une salle de bains et trois chambres, dont une chambre principale avec une grande penderie, une salle de bains privée et un balcon extérieur.
Caractéristiques
Mesures : Impérial| Style d'architecture | Européen |
Coût de construction
Montant approximatif équivalent à celui d'un entrepreneur général (région de la Rive-Sud de Montréal) pour une construction clé en main sans terrain ni infrastructures.
|
498442 $ |
|---|---|---|---|
| Façade | 26 pi | Surface habitable totale | 2198 pi² |
| Profondeur | 50 pi | Nombre de salles de bain | 2 |
| Hauteur | 38 pi 5 po | Nombre de chambres | 3 |
| Chambre des maîtres | Baignoire + Douche + Lavabo double + Penderie + Portes doubles + Toilettes | Chambre des maîtres - commentaires | Chambre des maîtres avec balcon extérieur |
| Surface rez-de-chaussée | 966 pi² | Finition extérieure | Agrégats + Brique + Pierre |
| Surface étage | 1232 pi² | Type de cuisine | Coin repas + Laboratoire + Salle à manger |
| Surface garage | 257 pi² | Garage | 1 |
| Mur garage | 8 pi | Mur rez-de-chaussée | 9 pi |
| Mur étage | 8 pi | Inclinaison toit avant/arrière | 8/12 |
| Inclinaison toit gauche/droite | 12/12 |
| Style d'architecture | Européen |
|---|---|
|
Coût de construction
Montant approximatif équivalent à celui d'un entrepreneur général (région de la Rive-Sud de Montréal) pour une construction clé en main sans terrain ni infrastructures.
|
498442 $ |
| Façade | 26 pi |
| Surface habitable totale | 2198 pi² |
| Profondeur | 50 pi |
| Nombre de salles de bain | 2 |
| Hauteur | 38 pi 5 po |
| Nombre de chambres | 3 |
| Chambre des maîtres | Baignoire + Douche + Lavabo double + Penderie + Portes doubles + Toilettes |
| Chambre des maîtres - commentaires | Chambre des maîtres avec balcon extérieur |
| Surface rez-de-chaussée | 966 pi² |
| Finition extérieure | Agrégats + Brique + Pierre |
| Surface étage | 1232 pi² |
| Type de cuisine | Coin repas + Laboratoire + Salle à manger |
| Surface garage | 257 pi² |
| Garage | 1 |
| Mur garage | 8 pi |
| Mur rez-de-chaussée | 9 pi |
| Mur étage | 8 pi |
| Inclinaison toit avant/arrière | 8/12 |
| Inclinaison toit gauche/droite | 12/12 |