21259
21259
21259
21259

Jeux de plans - Sets of plans
Prix régulier$1,940.00
/

Ce site est protégé par hCaptcha, et la Politique de confidentialité et les Conditions de service de hCaptcha s’appliquent.

Description

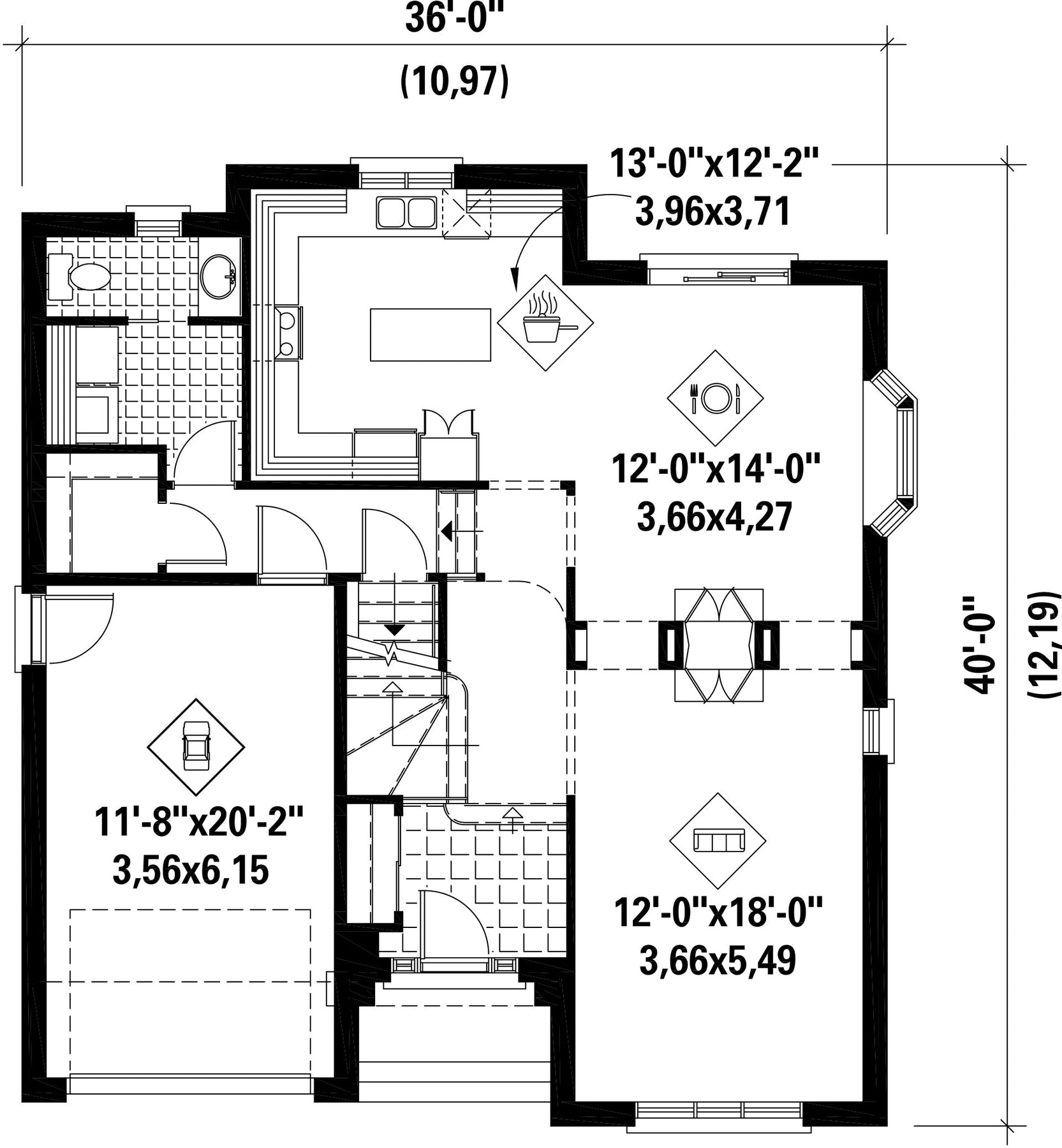
Grand hall d'entrée, Foyer à deux faces sur la salon et la salle à manger

Caractéristiques

Mesures : Impérial

Style d'architecture Européen Coût de construction 
Montant approximatif équivalent à celui d'un entrepreneur général (région de la Rive-Sud de Montréal) pour une construction clé en main sans terrain ni infrastructures.
471242 $
Façade 36 pi Surface habitable totale 2268 pi²
Profondeur 40 piNombre de salles de bain 2
Hauteur 37 pi 7 poNombre de chambres 4
Chambre des maîtres Baignoire + Douche + Lavabo double + Penderie + Toilettes Chambre des maîtres - commentaires Grande penderie dans la chambre des maîtres
Surface rez-de-chaussée 1027 pi² Finition extérieure Aluminium + Brique + Pierre
Surface étage 1241 pi² Type de cuisine Forme en U + Îlot
Surface garage 284 pi² Garage 1
Mur garage 8 piMur rez-de-chaussée 8 pi
Mur étage 8 piInclinaison toit avant/arrière 12/12
Inclinaison toit gauche/droite 12/12
Style d'architecture Européen
Coût de construction 
Montant approximatif équivalent à celui d'un entrepreneur général (région de la Rive-Sud de Montréal) pour une construction clé en main sans terrain ni infrastructures.
471242 $
Façade 36 pi
Surface habitable totale 2268 pi²
Profondeur 40 pi
Nombre de salles de bain 2
Hauteur 37 pi 7 po
Nombre de chambres 4
Chambre des maîtres Baignoire + Douche + Lavabo double + Penderie + Toilettes
Chambre des maîtres - commentaires Grande penderie dans la chambre des maîtres
Surface rez-de-chaussée 1027 pi²
Finition extérieure Aluminium + Brique + Pierre
Surface étage 1241 pi²
Type de cuisine Forme en U + Îlot
Surface garage 284 pi²
Garage 1
Mur garage 8 pi
Mur rez-de-chaussée 8 pi
Mur étage 8 pi
Inclinaison toit avant/arrière 12/12
Inclinaison toit gauche/droite 12/12

Ces plans de maison pourraient également vous intéresser


Vu récemment