Description
Vous serez charmé par les détails architecturaux de cette attrayante maison à étage, comme les colonnes qui ornent sa façade, les pignons de différentes grandeurs et le revêtement de pierres et d’aluminium. Mesurant 52 pieds 10 pouces de largeur sur 44 pieds 5 pouces de profondeur, ce modèle présente une surface habitable de 2 828 pieds carrés.
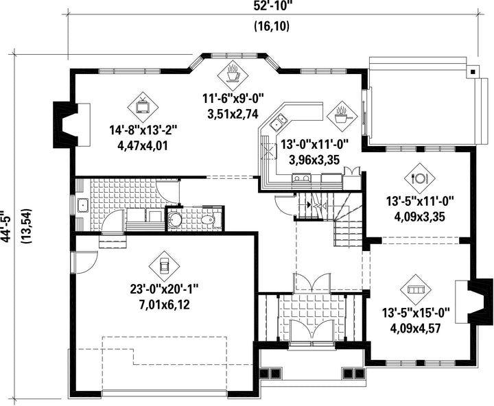
Le rez-de-chaussée de 1 434 pieds carrés compte un grand vestibule, un salon avec foyer, une cuisine avec coin-repas, une salle à manger, une salle familiale avec foyer, une salle d’eau, une buanderie et un garage double de 505 pieds carrés.
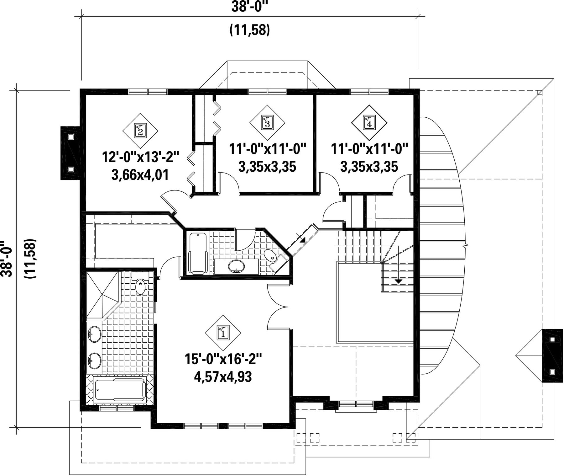
À l’étage, dont la surface s'élève à 1 394 pieds carrés, on retrouve une chambre principale avec une grande penderie et une salle de bains privée, trois chambres supplémentaires et une salle de bains familiale.
Le rez-de-chaussée de 1 434 pieds carrés compte un grand vestibule, un salon avec foyer, une cuisine avec coin-repas, une salle à manger, une salle familiale avec foyer, une salle d’eau, une buanderie et un garage double de 505 pieds carrés.
À l’étage, dont la surface s'élève à 1 394 pieds carrés, on retrouve une chambre principale avec une grande penderie et une salle de bains privée, trois chambres supplémentaires et une salle de bains familiale.
Caractéristiques
Mesures : Impérial| Style d'architecture | Européen |
Coût de construction
Montant approximatif équivalent à celui d'un entrepreneur général (région de la Rive-Sud de Montréal) pour une construction clé en main sans terrain ni infrastructures.
|
627229 $ |
|---|---|---|---|
| Façade | 52 pi 10 po | Surface habitable totale | 2828 pi² |
| Profondeur | 44 pi 5 po | Nombre de salles de bain | 2 |
| Hauteur | 30 pi 2 po | Nombre de chambres | 4 |
| Chambre des maîtres | Baignoire + Douche + Lavabo double + Penderie + Portes doubles + Toilettes | Chambre des maîtres - commentaires | Grande penderie et salle de bain dans la chambre des maîtres |
| Surface rez-de-chaussée | 1434 pi² | Finition extérieure | Aluminium + Pierre |
| Surface étage | 1394 pi² | Type de cuisine | Coin repas + Forme en U + Salle à manger |
| Surface garage | 505 pi² | Garage | 2 |
| Mur garage | 8 pi | Mur rez-de-chaussée | 9 + 10 pi |
| Mur étage | 9 pi | Inclinaison toit avant/arrière | 6/12 |
| Inclinaison toit gauche/droite | 6/12 |
| Style d'architecture | Européen |
|---|---|
|
Coût de construction
Montant approximatif équivalent à celui d'un entrepreneur général (région de la Rive-Sud de Montréal) pour une construction clé en main sans terrain ni infrastructures.
|
627229 $ |
| Façade | 52 pi 10 po |
| Surface habitable totale | 2828 pi² |
| Profondeur | 44 pi 5 po |
| Nombre de salles de bain | 2 |
| Hauteur | 30 pi 2 po |
| Nombre de chambres | 4 |
| Chambre des maîtres | Baignoire + Douche + Lavabo double + Penderie + Portes doubles + Toilettes |
| Chambre des maîtres - commentaires | Grande penderie et salle de bain dans la chambre des maîtres |
| Surface rez-de-chaussée | 1434 pi² |
| Finition extérieure | Aluminium + Pierre |
| Surface étage | 1394 pi² |
| Type de cuisine | Coin repas + Forme en U + Salle à manger |
| Surface garage | 505 pi² |
| Garage | 2 |
| Mur garage | 8 pi |
| Mur rez-de-chaussée | 9 + 10 pi |
| Mur étage | 9 pi |
| Inclinaison toit avant/arrière | 6/12 |
| Inclinaison toit gauche/droite | 6/12 |