Description
    
    	Cette attrayante maison à étage est revêtue de briques et d’aluminium horizontal. La résidence, qui mesure 46 pieds de largeur sur 53 pieds de profondeur, a une surface habitable de 2 906 pieds carrés.
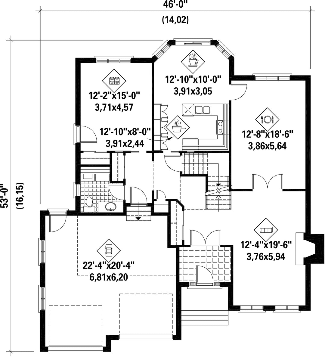
Le rez-de-chaussée occupe 1 403 pieds carrés et comprend un vestibule fermé, un salon avec foyer, une salle à manger, une cuisine avec de nombreux espaces de rangement et un coin-repas, une salle de lecture, une salle d’eau et un garage double de 525 pieds carrés.
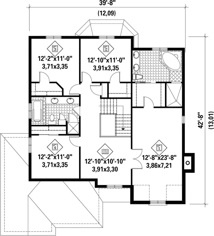
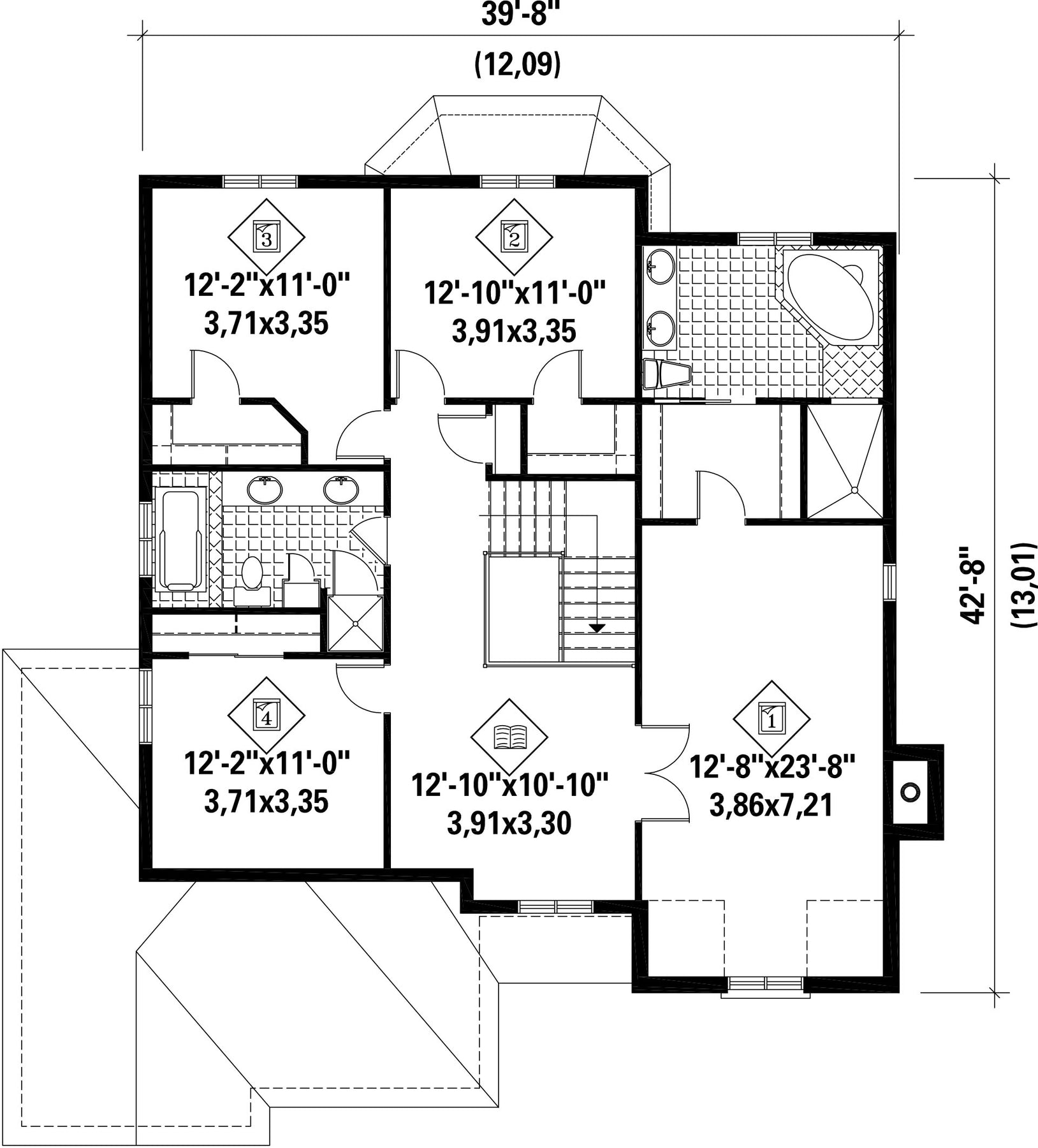
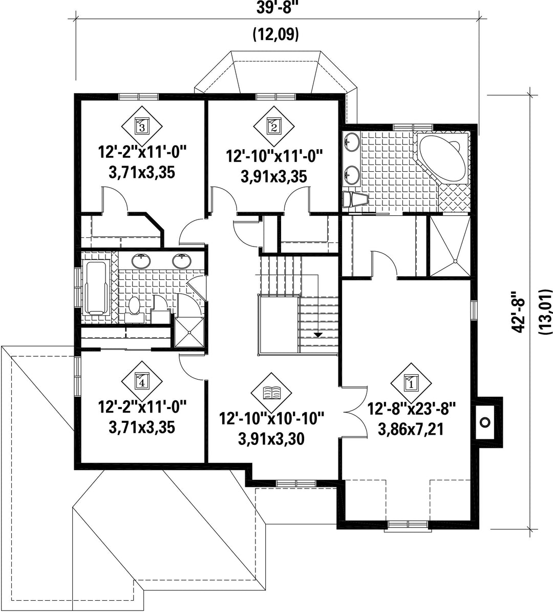
Avec 1 503 pieds carrés de surface habitable l’étage comprend un coin lecture, une salle de bains familiale et quatre chambres, dont une immense chambre principale avec une grande penderie qui communique avec une salle de bains privée.
     
    
  
Le rez-de-chaussée occupe 1 403 pieds carrés et comprend un vestibule fermé, un salon avec foyer, une salle à manger, une cuisine avec de nombreux espaces de rangement et un coin-repas, une salle de lecture, une salle d’eau et un garage double de 525 pieds carrés.
Avec 1 503 pieds carrés de surface habitable l’étage comprend un coin lecture, une salle de bains familiale et quatre chambres, dont une immense chambre principale avec une grande penderie qui communique avec une salle de bains privée.
Caractéristiques
Mesures : Impérial| Style d'architecture | Européen | 
                        
                            Coût de construction 
                             
                                
                                Montant approximatif équivalent à celui d'un entrepreneur général (région de la Rive-Sud de Montréal) pour une construction clé en main sans terrain ni infrastructures.
                             
                        
                        
                     | 
                    617178 $ | 
|---|---|---|---|
| Façade | 46 pi | Surface habitable totale | 2906 pi² | 
| Profondeur | 53 pi | Nombre de salles de bain | 2 | 
| Hauteur | 39 pi 4 po | Nombre de chambres | 4 | 
| Chambre des maîtres | Bain podium + Douche + Lavabo double + Penderie + Portes doubles + Toilettes | Chambre des maîtres - commentaires | Chambre des maîtres sur toute la profondeur de la maison | 
| Surface rez-de-chaussée | 1403 pi² | Finition extérieure | Aluminium + Brique + Écailles de poisson | 
| Surface étage | 1503 pi² | Type de cuisine | Coin repas + Forme en U + Salle à manger | 
| Surface garage | 525 pi² | Garage | 2 | 
| Mur garage | 8 pi | Mur rez-de-chaussée | 8 pi | 
| Mur étage | 8 pi | Inclinaison toit avant/arrière | 12/12 | 
| Inclinaison toit gauche/droite | 14/12 | 
| Style d'architecture | Européen | 
|---|---|
| 
                        
                            Coût de construction 
                             
                                
                                Montant approximatif équivalent à celui d'un entrepreneur général (région de la Rive-Sud de Montréal) pour une construction clé en main sans terrain ni infrastructures.
                             
                        
                        
                     | 
                    617178 $ | 
| Façade | 46 pi | 
| Surface habitable totale | 2906 pi² | 
| Profondeur | 53 pi | 
| Nombre de salles de bain | 2 | 
| Hauteur | 39 pi 4 po | 
| Nombre de chambres | 4 | 
| Chambre des maîtres | Bain podium + Douche + Lavabo double + Penderie + Portes doubles + Toilettes | 
| Chambre des maîtres - commentaires | Chambre des maîtres sur toute la profondeur de la maison | 
| Surface rez-de-chaussée | 1403 pi² | 
| Finition extérieure | Aluminium + Brique + Écailles de poisson | 
| Surface étage | 1503 pi² | 
| Type de cuisine | Coin repas + Forme en U + Salle à manger | 
| Surface garage | 525 pi² | 
| Garage | 2 | 
| Mur garage | 8 pi | 
| Mur rez-de-chaussée | 8 pi | 
| Mur étage | 8 pi | 
| Inclinaison toit avant/arrière | 12/12 | 
| Inclinaison toit gauche/droite | 14/12 |