20903
20903
20903
20903
20903
20903

Jeux de plans - Sets of plans
Prix régulier$1,440.00
/

Ce site est protégé par hCaptcha, et la Politique de confidentialité et les Conditions de service de hCaptcha s’appliquent.

Description

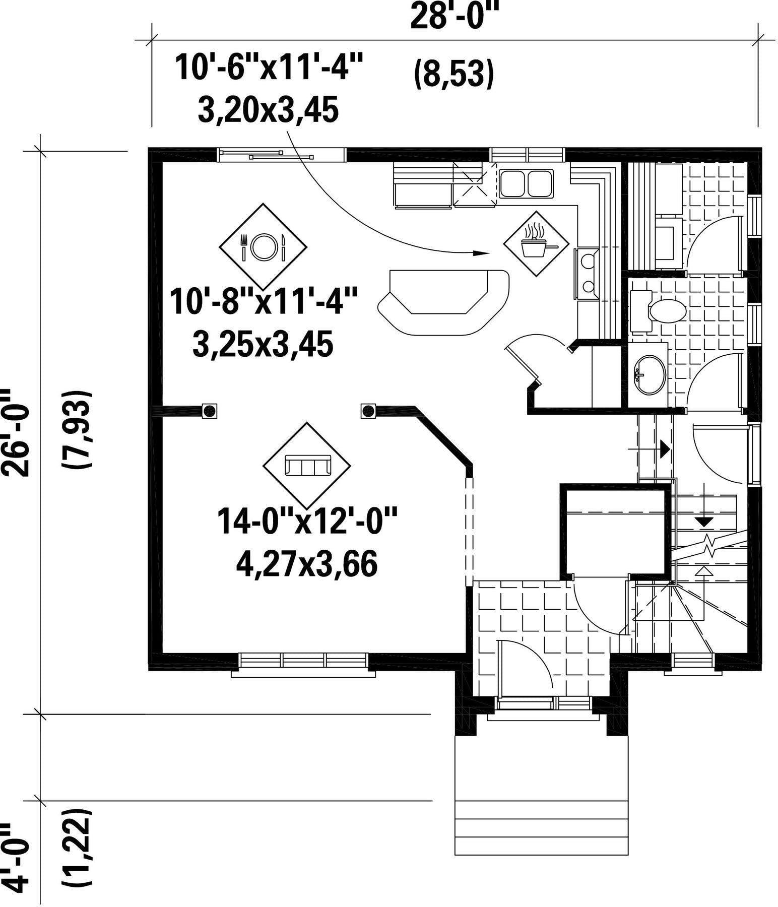
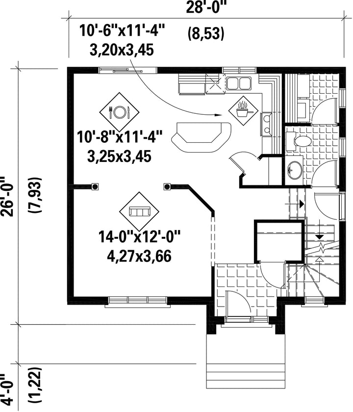
"Pièces semi-fermées Entrée secondaire latérale Penderies dans les chambres #1 et #2 Plafond en pente dans la salle de bain de l'étage Laveuse et sécheuse au rez-de-chaussée"

Caractéristiques

Mesures : Impérial

Style d'architecture Européen Coût de construction 
Montant approximatif équivalent à celui d'un entrepreneur général (région de la Rive-Sud de Montréal) pour une construction clé en main sans terrain ni infrastructures.
254181 $
Façade 28 pi Surface habitable totale 1376 pi²
Profondeur 27 piNombre de salles de bain 1
Hauteur 32 piNombre de chambres 3
Chambre des maîtres Penderie Chambre des maîtres - commentaires Grande fenêtre
Surface rez-de-chaussée 688 pi² Finition extérieure Aluminium + Brique
Surface étage 688 pi² Type de cuisine Comptoir repas + Forme en L + Îlot
Garage 0
Mur rez-de-chaussée 8 pi
Mur étage 8 piInclinaison toit avant/arrière 10/12
Inclinaison toit gauche/droite 12/12
Style d'architecture Européen
Coût de construction 
Montant approximatif équivalent à celui d'un entrepreneur général (région de la Rive-Sud de Montréal) pour une construction clé en main sans terrain ni infrastructures.
254181 $
Façade 28 pi
Surface habitable totale 1376 pi²
Profondeur 27 pi
Nombre de salles de bain 1
Hauteur 32 pi
Nombre de chambres 3
Chambre des maîtres Penderie
Chambre des maîtres - commentaires Grande fenêtre
Surface rez-de-chaussée 688 pi²
Finition extérieure Aluminium + Brique
Surface étage 688 pi²
Type de cuisine Comptoir repas + Forme en L + Îlot
Garage 0
Mur rez-de-chaussée 8 pi
Mur étage 8 pi
Inclinaison toit avant/arrière 10/12
Inclinaison toit gauche/droite 12/12

Ces plans de maison pourraient également vous intéresser


Vu récemment